Haus Augenthaler

Eigenschaften

Wohnfläche

  • KG40,0 m²
  • EG144,0 m²
  • DG61,1 m²
  • Gesamt245,1 m²
  • Außenmaß17,99 m

Gesamtfläche

  • KG146,3 m²
  • EG144,0 m²
  • DG83,7 m²
  • Gesamt374,0 m²
  • Außenmaß10,29 m
  • Kniestock50 cm
  • Dachneigung22°

Traumhaus mit riesigem Platzangebot.

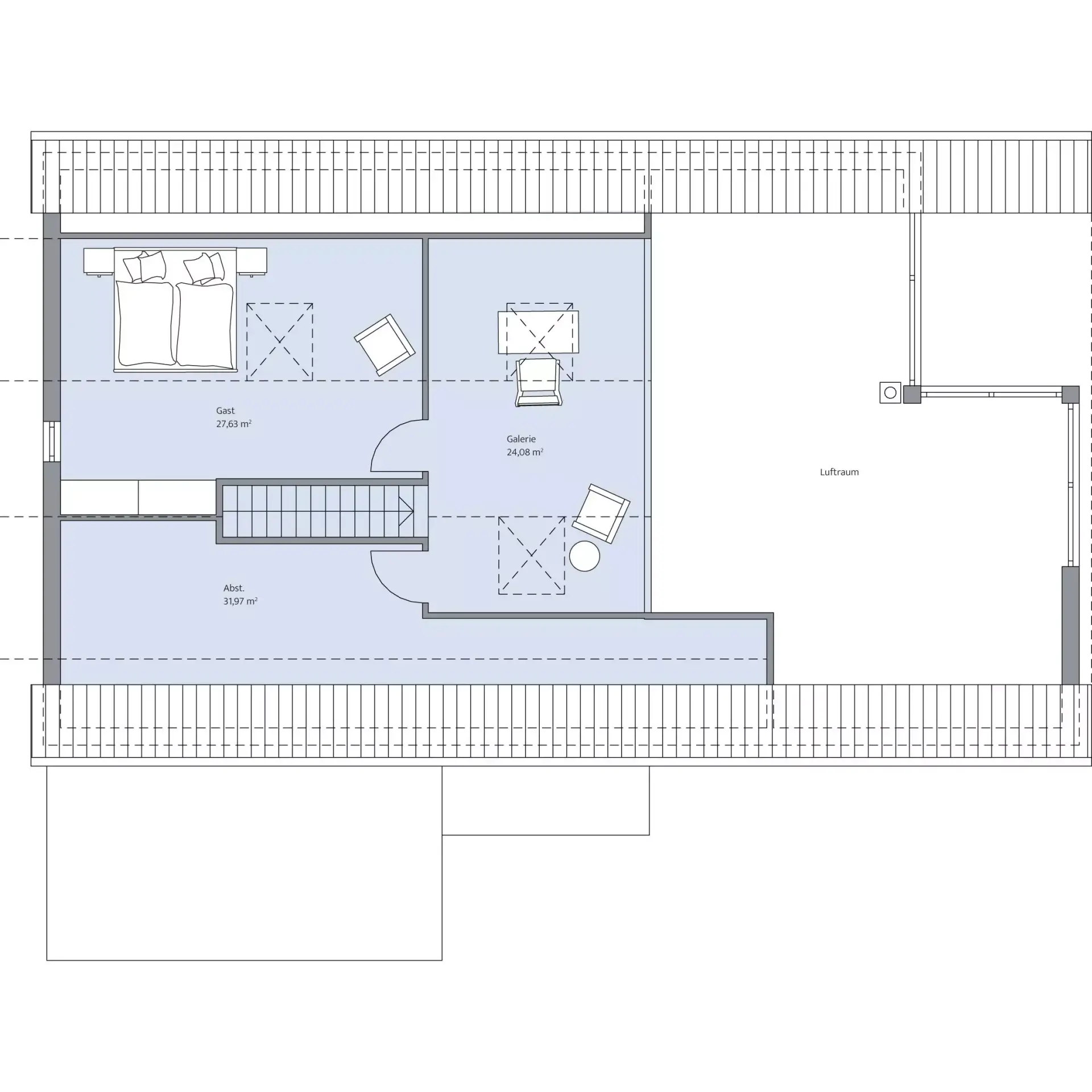
Über drei Etagen erstrecken sich im Haus Augenthaler rund 375 m² hochmoderne Wohn-/ Nutzfläche. Der Keller verfügt neben einer Einliegerwohnung mit drei Zimmern und ein Bad, auch über einen Abstell- sowie einen Technikraum. Flur und Vorraum führen zu fünf Kellerräumen. Auch das Erdgeschoss beeindruckt mit einem lichtdurchfluteten Wohn- und Essbereich mit offener Küche und angrenzender Terrasse, zwei Bädern, zwei Kinderzimmern, einem Schlafzimmer und einem Hauswirtschaftsraum mit Zugang zur Garage. Von der Galerie in der oberen Etage, die auch ein großzügiges Gästezimmer und einen weiteren Abstellraum bietet, hat man einen fantastischen Blick in den Wohnbereich und zusätzlich ins Grüne.

Hinweis zur Flächenberechnung:
Alle dargestellten Flächen und Flächenberechnungen zu Wohnflächen (kurz WF) und Grundflächen (kurz GF) wurden gemäß der Verordnung zur Berechnung der Wohnfläche (Wohnflächenverordnung – Wo FlV) vom 25. November 2003 (BgBl. I S. 2346) ermittelt.

Immer an Ausstattung inklusive

Energie-effizient

Nachhaltig

gebaut

Langlebig & robust

Wert-beständig

Gesundes Raumklima

Zukunftssicher

Grundriss Erdgeschoss

Grundriss Erdgeschoss

Grundriss Dachgeschoss

Grundriss Dachgeschoss

Grundriss Kellergeschoss

Grundriss Kellergeschoss

Weitere Impressionen