Haus Breitenbach

Eigenschaften

Wohnfläche

  • UG63,8 m²
  • EG67,0 m²
  • Gesamt130,8 m²

Gesamtfläche

  • UG65,8 m²
  • EG67,0 m²
  • Gesamt132,8 m²
  • Kniestock
  • Dachneigung

Ein Bekenntnis zur klaren Form.

Geradlinig und klar in der Form, aussagekräftig in der Farbgestaltung, hell und lebendig im Inneren. Das Haus Breitenbach gehört mit seinem Flachdach zu den angesagtesten und modernsten Entwürfen unserer Zeit. Reduziert auf die kubische Grundform braucht es nichts mehr, als nur sich selbst, um den Betrachter in seinen Bann zu ziehen. Hierbei wirkt das Erdgeschoss, sowohl in Farbe und Material abgesetzt, schlank und elegant. Die schicken Fensterflächen über Eck sind optisch ein Blickfang und lassen viel Licht ins Haus. Den ganzen Tag.

Hinweis zur Flächenberechnung:
Alle dargestellten Flächen und Flächenberechnungen zu Wohnflächen (kurz WF) und Grundflächen (kurz GF) wurden gemäß der Verordnung zur Berechnung der Wohnfläche (Wohnflächenverordnung – Wo FlV) vom 25. November 2003 (BgBl. I S. 2346) ermittelt.

Immer an Ausstattung inklusive

Energie-effizient

Nachhaltig

gebaut

Langlebig & robust

Wert-beständig

Gesundes Raumklima

Zukunftssicher

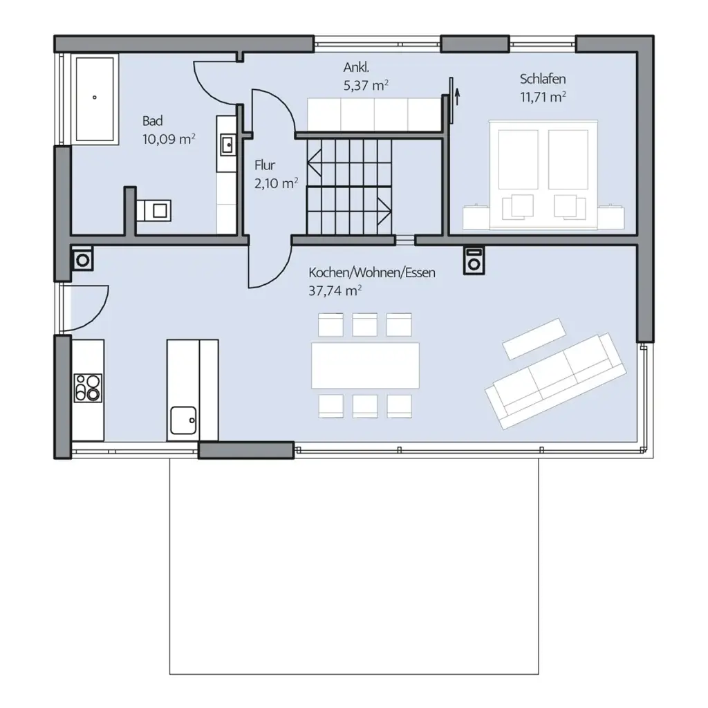
Grundriss Erdgeschoss

Grundriss Erdgeschoss

Grundriss Untergeschoss

Grundriss Untergeschoss

Weitere Impressionen