Haus Carl

Eigenschaften

Wohnfläche

  • EG64,3 m²
  • DG57,4 m²
  • Gesamt121,7 m²

Gesamtfläche

  • EG66,2 m²
  • DG62,7 m²
  • Gesamt128,9 m²
  • Kniestock125 cm
  • Dachneigung45°

Optimale Platznutzung für Familien.

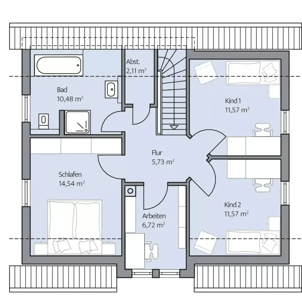
Mit rund 121 m² Wohnfläche ist das Haus der Carls ein kompakter und charmanter Favorit für junge Familien. Denn dieses Haus gibt sich nicht nur mit einer überschaubaren – und somit finanziell attraktiveren – Grundstücksfläche zufrieden, es ist zudem praktisch geplant, ohne die vorzeigbare und zeitgemäße Optik zu vergessen. Elegant kommt das schwarze Satteldach zur weißen Putzfassade, dem anthrazitfarbenen Eingang, den französischen Balkonen und der Übereckverglasung daher. Ein richtiger Hingucker ist zudem der Zwerchgiebel auf der Hausrückseite, der mit seinen zweiflügeligen Glastüren für viel Licht im Familienleben sorgt. Zwei weitere Glastüren sorgen für einen fließenden Übergang zwischen Haus und Garten. Von der Küche wie vom Essplatz ist man so schnell im Grünen. Den zur Straße gerichteten Wohnbereich erhellen Lichtbänder, die gleichzeitig vor unerwünschten Blicken schützen. Das Haus Carl verfügt auf seinen zwei Etagen über viele praktische Nebenräume, wie einer Speisekammer, einem Abstellraum, einem Duschbad, einem Familienbad, einem Arbeitszimmer und auch einem Hauswirtschaftsraum. Neben dem Elternschlafzimmer stehen zwei gleich große Kinderzimmer zur Verfügung. Hier wird jeder Quadratmeter sinnvoll genutzt!

Hinweis zur Flächenberechnung:
Alle dargestellten Flächen und Flächenberechnungen zu Wohnflächen (kurz WF) und Grundflächen (kurz GF) wurden gemäß der Verordnung zur Berechnung der Wohnfläche (Wohnflächenverordnung – Wo FlV) vom 25. November 2003 (BgBl. I S. 2346) ermittelt.

Immer an Ausstattung inklusive

Energie-effizient

Nachhaltig

gebaut

Langlebig & robust

Wert-beständig

Gesundes Raumklima

Zukunftssicher

Grundriss Erdgeschoss

Grundriss Erdgeschoss

Grundriss Dachgeschoss

Grundriss Dachgeschoss

Weitere Impressionen