Haus Dalmann

Eigenschaften

Wohnfläche

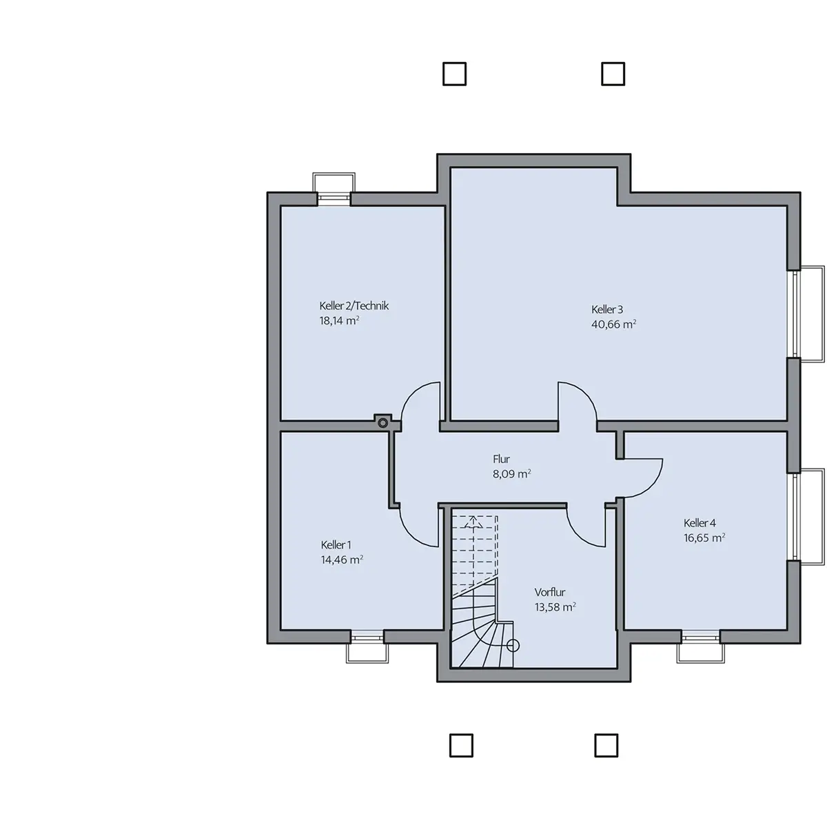
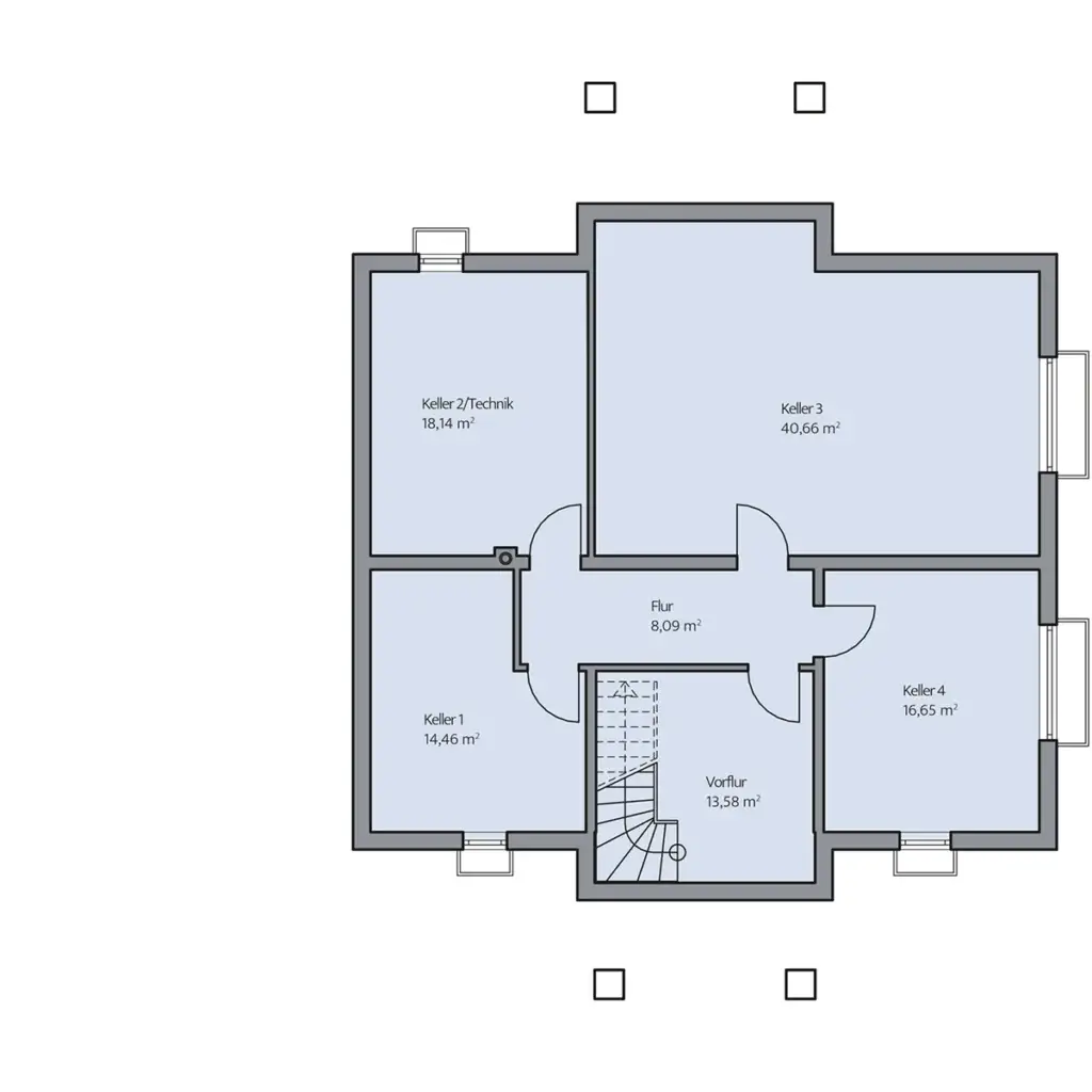
  • KG
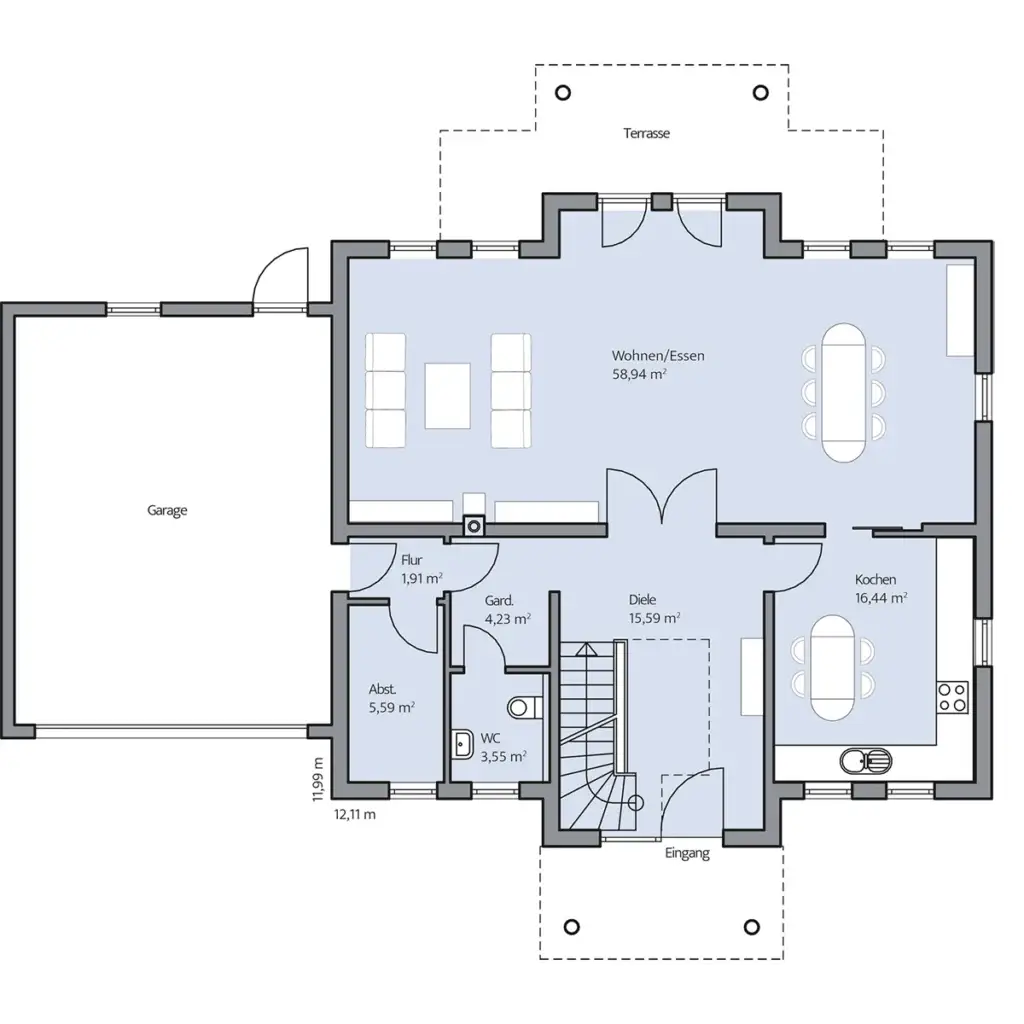
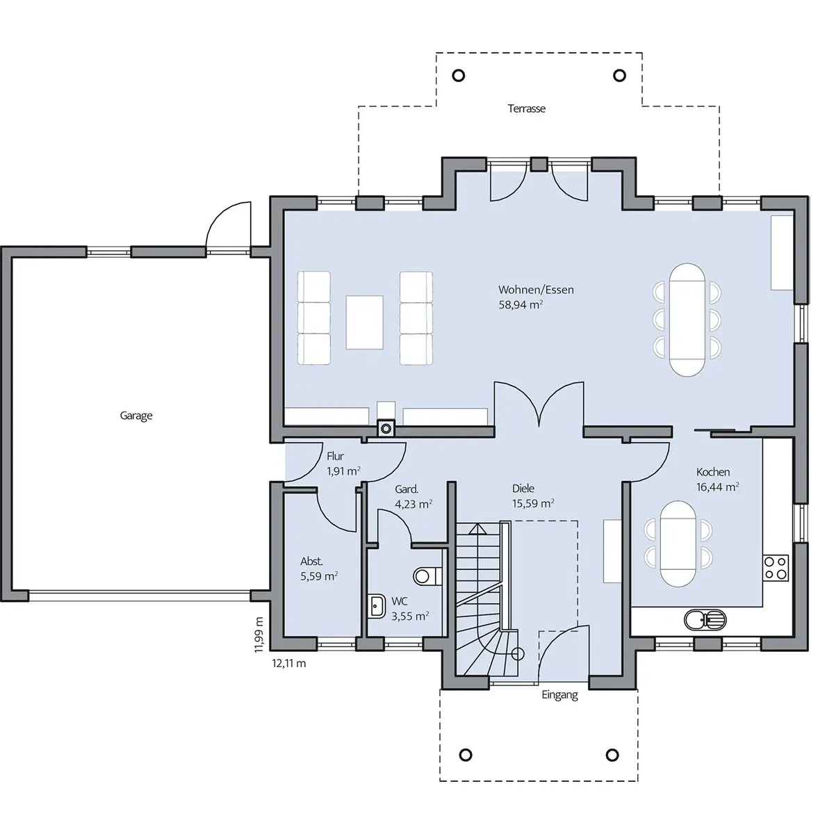
  • EG106,3 m²
  • OG106,9 m²
  • Gesamt213,2 m²

Gesamtfläche

  • KG111,6 m²
  • EG106,3 m²
  • OG117,5 m²
  • Gesamt335,4 m²
  • Kniestock0 cm
  • Dachneigung26°

Mediterraner Charme trifft moderne Elemente.

Optisch angelehnt an die Herrenhäuser des Südens, überzeugt das Haus der Familie Dalmann mit einem stilvollen, modernen Schliff. Die ebenerdige, überdachte Außenfläche sowie der dezent blickdicht gehaltene, auf mediterranen Säulen stehende Terrassenbereich im Obergeschoss sind an lauen Sommerabenden absolut einladend. Auch der rund 60 m² große Wohn- und Essbereich mit seinen großen Flügeltüren im Inneren des Hauses versprüht pure Gastlichkeit. Die Garage hat eine direkte Verbindung zum Haus. Und wird es in der praktisch gelegenen Abstellkammer eng, bieten die vier Kellerräume über 110 m² ausreichend Platz. Ein weiterer Pluspunkt: Das Haus verfügt über drei Bäder. Ein WC im Erdgeschoss sowie zwei komplette Badezimmer für Eltern und Kinder oder Gäste in der oberen Etage.

Hinweis zur Flächenberechnung:
Alle dargestellten Flächen und Flächenberechnungen zu Wohnflächen (kurz WF) und Grundflächen (kurz GF) wurden gemäß der Verordnung zur Berechnung der Wohnfläche (Wohnflächenverordnung – Wo FlV) vom 25. November 2003 (BgBl. I S. 2346) ermittelt.

Immer an Ausstattung inklusive

Energie-effizient

Nachhaltig

gebaut

Langlebig & robust

Wert-beständig

Gesundes Raumklima

Zukunftssicher

Grundriss Erdgeschoss

Grundriss Erdgeschoss

Grundriss Obergeschoss

Grundriss Obergeschoss

Grundriss Kellergeschoss

Grundriss Kellergeschoss

Weitere Impressionen