Haus Daume

Eigenschaften

Wohnfläche

  • EG96,9 m²
  • DG73,1 m²
  • Gesamt170,0 m²
  • Außenmaß11,98 m

Gesamtfläche

  • EG99,1 m²
  • DG77,7 m²
  • Gesamt176,8 m²
  • Außenmaß12,11 m
  • Kniestock115/165 cm
  • Dachneigung35°

Tradition trifft auf Moderne.

Ein Eigenheim mit individuellem Charakter, denn es verbindet das klassische Satteldach mit modernen in Grau abgesetzten kubischen Elementen. Für weitere Akzente sorgen die Glasflächen, deren schwarze Rahmen im Kontrast zur weißen Putzfassade stehen. Mit seinen kompakten Abmaßen von 11,98 x 12,11 m eignet es sich ideal für das Bauen in der Stadt. Das Wohnkonzept ist zeitgemäß: Das Erdgeschoss wurde als offenes Raumensemble konzipiert und ist damit das kommunikative Zentrum des Wohngeschehens. Das Dachgeschoss überzeugt durch Individualräume mit hohem Kniestock und guten Belichtungsmöglichkeiten. Ein Highlight des Objekts ist ohne Frage die ebenfalls in Grau abgesetzte Terrassenüberdachung, einfach ideal fürs gemütliche Beisammensein in der warmen Jahreszeit.

Hinweis zur Flächenberechnung:
Alle dargestellten Flächen und Flächenberechnungen zu Wohnflächen (kurz WF) und Grundflächen (kurz GF) wurden gemäß der Verordnung zur Berechnung der Wohnfläche (Wohnflächenverordnung – Wo FlV) vom 25. November 2003 (BgBl. I S. 2346) ermittelt.

Immer an Ausstattung inklusive

Energie-effizient

Nachhaltig

gebaut

Langlebig & robust

Wert-beständig

Gesundes Raumklima

Zukunftssicher

Grundriss Erdgeschoss

Grundriss Erdgeschoss

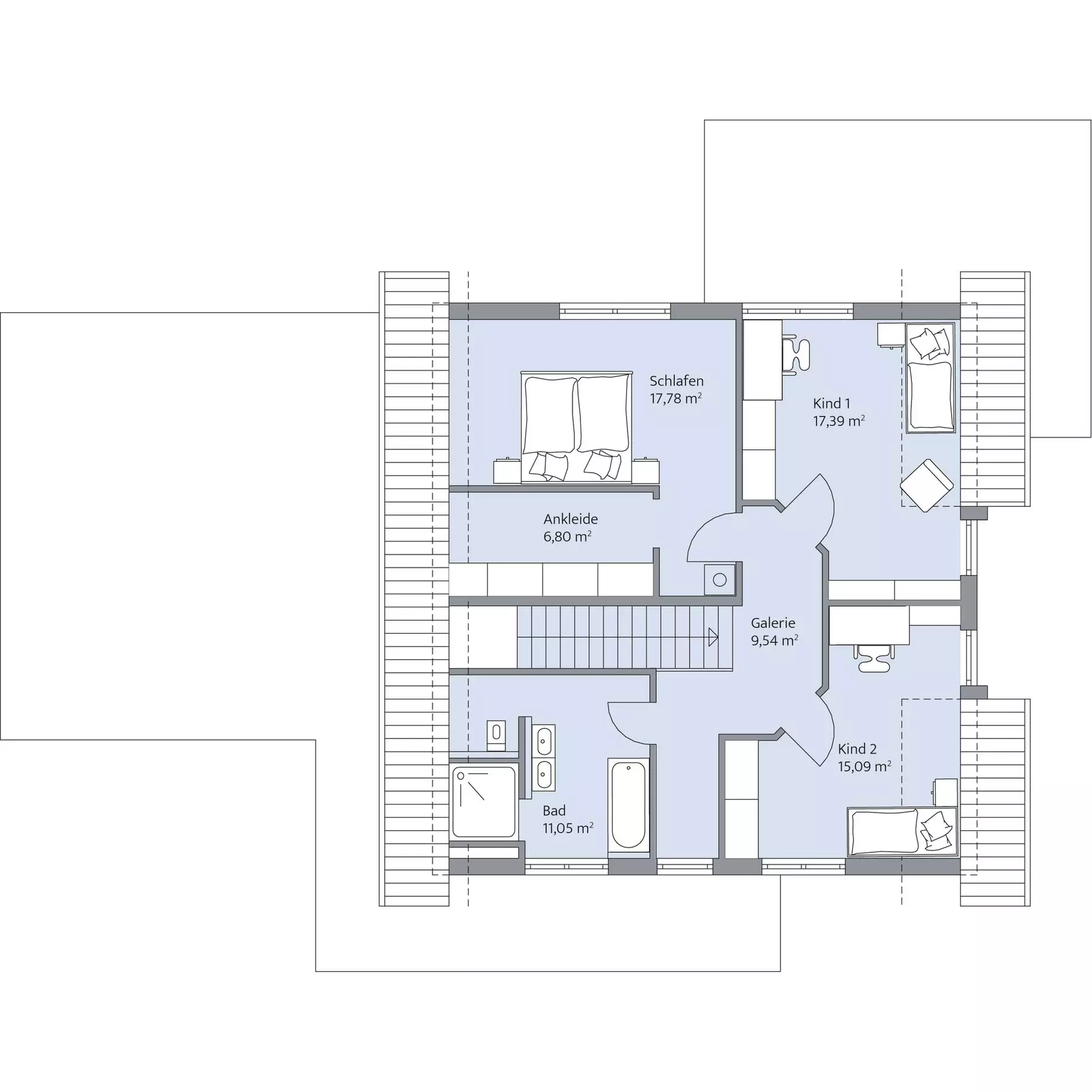
Grundriss Obergeschoss

Grundriss Obergeschoss

Weitere Impressionen