Haus Echterkamp

Eigenschaften

Wohnfläche

  • KG
  • EG84,6 m²
  • DG61,8 m²
  • Gesamt146,4 m²
  • Außenmaß9,50 m

Gesamtfläche

  • KG100,1 m²
  • EG95,5 m²
  • DG70,5 m²
  • Gesamt266,1 m²
  • Außenmaß10,37 m
  • Kniestock80 cm
  • Dachneigung35°/10°

Klassische Bauform mit modernem Esprit.

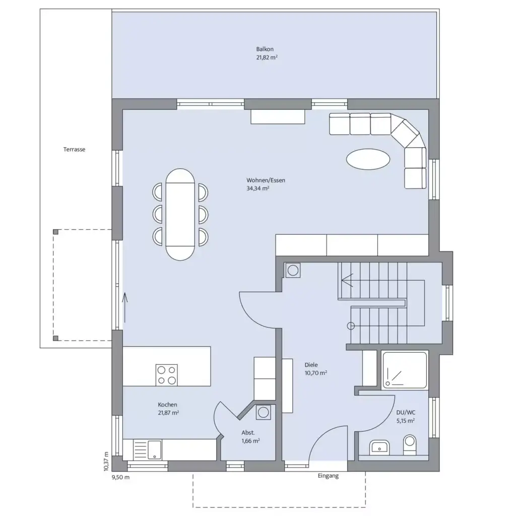
Haus Echterkamp ist ein optimal durchdachtes Familienhaus, in dem sich 146 m² Wohnfläche auf Erdgeschoss und Dachgeschoss verteilen und durch ein Kellergeschoss ergänzt werden. Zeitlos-modern erstrahlt die weiße Hausfassade, abgerundet durch eine Dacheindeckung, Fenster, Türen und das breite Garagentor im Anthrazitton. Der überdachte Balkon und die darunter liegende Terrasse sind ein optisches Highlight. Im Kellergeschoss befinden sich die Garage, ein Technikraum sowie zwei Kellerräume. Rund dreiviertel der fast 85 m² großen Wohnfläche im Erdgeschoss nimmt der helle, großzügige Wohn-/Essbereich mit offener Küche und Abstellraum ein. Im Außenbereich wird der Wohn-/Essbereich umrahmt von einem fast 22 m² großen Balkon, der sich aus dem vorgezogenen Teil der Garage ergibt, mit nahtlosem Übergang in die überdachte Terrasse mit Garten. Des Weiteren verfügt das Erdgeschoss über ein Duschbad mit Gäste-WC. Auf knapp 62 m² sind im Dachgeschoss die Privaträume verteilt. Über einen zentralen Flur gelangt man hier in die beiden jeweils rund 14 m² großen Kinderzimmer, das Familienbad mit Dusche und Badewanne sowie in das Elternschlafzimmer mit eigenem Ankleidebereich und überdachtem Balkon.

Hinweis zur Flächenberechnung:
Alle dargestellten Flächen und Flächenberechnungen zu Wohnflächen (kurz WF) und Grundflächen (kurz GF) wurden gemäß der Verordnung zur Berechnung der Wohnfläche (Wohnflächenverordnung – Wo FlV) vom 25. November 2003 (BgBl. I S. 2346) ermittelt.

Immer an Ausstattung inklusive

Energie-effizient

Nachhaltig

gebaut

Langlebig & robust

Wert-beständig

Gesundes Raumklima

Zukunftssicher

Grundriss Kellergeschoss

Grundriss Kellergeschoss

Grundriss Erdgeschoss

Grundriss Erdgeschoss

Grundriss Dachgeschoss

Grundriss Dachgeschoss

Weitere Impressionen