Haus Eichner

Eigenschaften

Wohnfläche

  • KG
  • EG81,2 m²
  • DG74,5 m²
  • Gesamt155,7 m²

Gesamtfläche

  • KG85,5 m²
  • EG81,2 m²
  • DG83,9 m²
  • Gesamt250,6 m²
  • Kniestock102 cm
  • Dachneigung35°

Gemütlichkeit für die ganze Familie.

Die weiße Fassade im Sockel grau abgesetzt, die Schlagläden und das Dach in einem warmen Rotton: Das Haus der Familie Eichner strahlt bereits außen pure Behaglichkeit aus. Und auch im Innenbereich kann man sich als Familie rundum wohlfühlen. Großzügige Räume im Keller bieten viel Platz, der abgetrennte Koch- und Essbereich im Erdgeschoss lädt zu vielen gemütlichen Stunden ein. Im Obergeschoss gehen vom zentralen Flur ein Arbeitszimmer, das Elternschlafzimmer, die Kinderzimmer und ein Badezimmer ab. Besonders letzteres ist durch die Gaube angenehm lichtdurchflutet. Eine weitere besondere Eigenschaft des Satteldachs ist die herausgezogene Fläche über dem Carport.

Hinweis zur Flächenberechnung:
Alle dargestellten Flächen und Flächenberechnungen zu Wohnflächen (kurz WF) und Grundflächen (kurz GF) wurden gemäß der Verordnung zur Berechnung der Wohnfläche (Wohnflächenverordnung – Wo FlV) vom 25. November 2003 (BgBl. I S. 2346) ermittelt.

Immer an Ausstattung inklusive

Energie-effizient

Nachhaltig

gebaut

Langlebig & robust

Wert-beständig

Gesundes Raumklima

Zukunftssicher

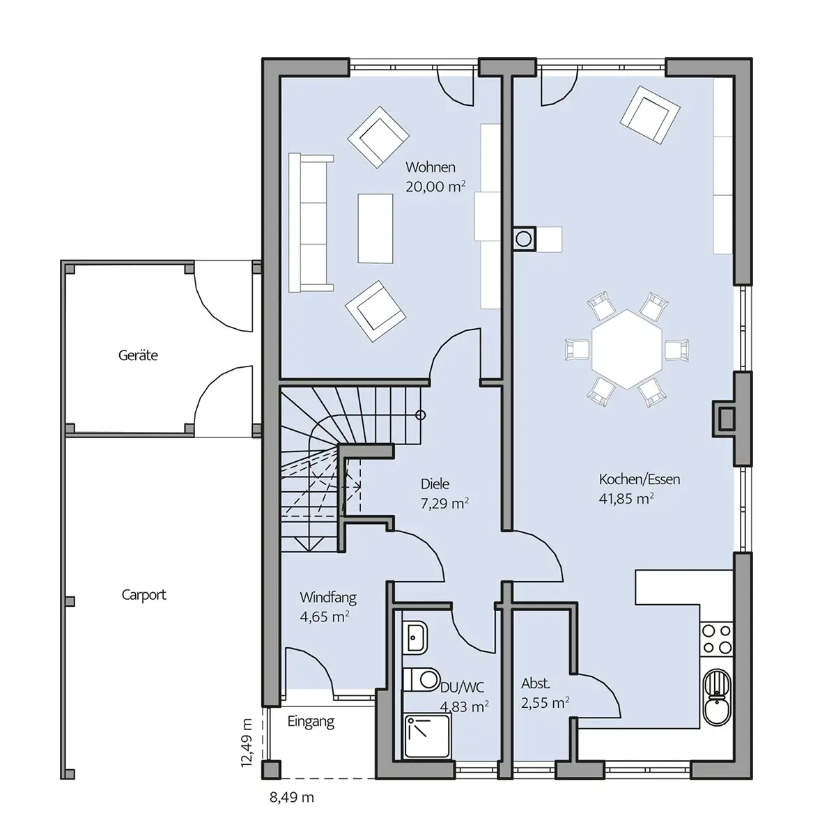
Grundriss Erdgeschoss

Grundriss Erdgeschoss

Grundriss Dachgeschoss

Grundriss Dachgeschoss

Grundriss Kellergeschoss

Grundriss Kellergeschoss

Weitere Impressionen