Haus Engelhardt

Eigenschaften

Wohnfläche

  • KG
  • EG73,4 m²
  • OG59,2 m²
  • Gesamt132,6 m²

Gesamtfläche

  • KG77,3 m²
  • EG73,4 m²
  • OG59,2 m²
  • Gesamt209,9 m²
  • Kniestock0 cm
  • Dachneigung22°

Luftig und kompakt zugleich.

Die moderne Stadtvilla der Familie Engelhardt ist ein wahrer Hingucker und dank ihren kompakten Außenmaßen von 9,75 x 9,75 m auch für typisch urban-teures Bauland attraktiv. Mit der symmetrischen und puristischen Linienführung zeugt das Haus von Stil und Klasse. Die interessante Verschalung aus verzinktem Blech setzt einen Akzent gegen die weiße Putzfassade und die raumhohen Glasflächen. Im Innenraum steht das Haus Engelhardt für ein großzügiges luftiges Wohnambiente, zum Beispiel mit seinem bis unter das Dach offenen Treppenhaus mit Galerie. Der quadratische und schnörkellose Grundriss sorgt für perfekte Möbilierungsmöglichkeiten. Ein Gäste-WC, ein Abstellraum, eine modern große Fernseh- und Lesenische, eine Küche mit Theke sowie ein zentraler Essplatz machen das Erdgeschoss zu einem luxuriösem Lebensumfeld. Im Obergeschoss befinden sich als Highlights zwei Arbeitszimmer, der Schlafraum, ein komfortables Bad sowie großflächige Verglasungen, die für weite Ausblicke sorgen.

Hinweis zur Flächenberechnung:
Alle dargestellten Flächen und Flächenberechnungen zu Wohnflächen (kurz WF) und Grundflächen (kurz GF) wurden gemäß der Verordnung zur Berechnung der Wohnfläche (Wohnflächenverordnung – Wo FlV) vom 25. November 2003 (BgBl. I S. 2346) ermittelt.

Immer an Ausstattung inklusive

Energie-effizient

Nachhaltig

gebaut

Langlebig & robust

Wert-beständig

Gesundes Raumklima

Zukunftssicher

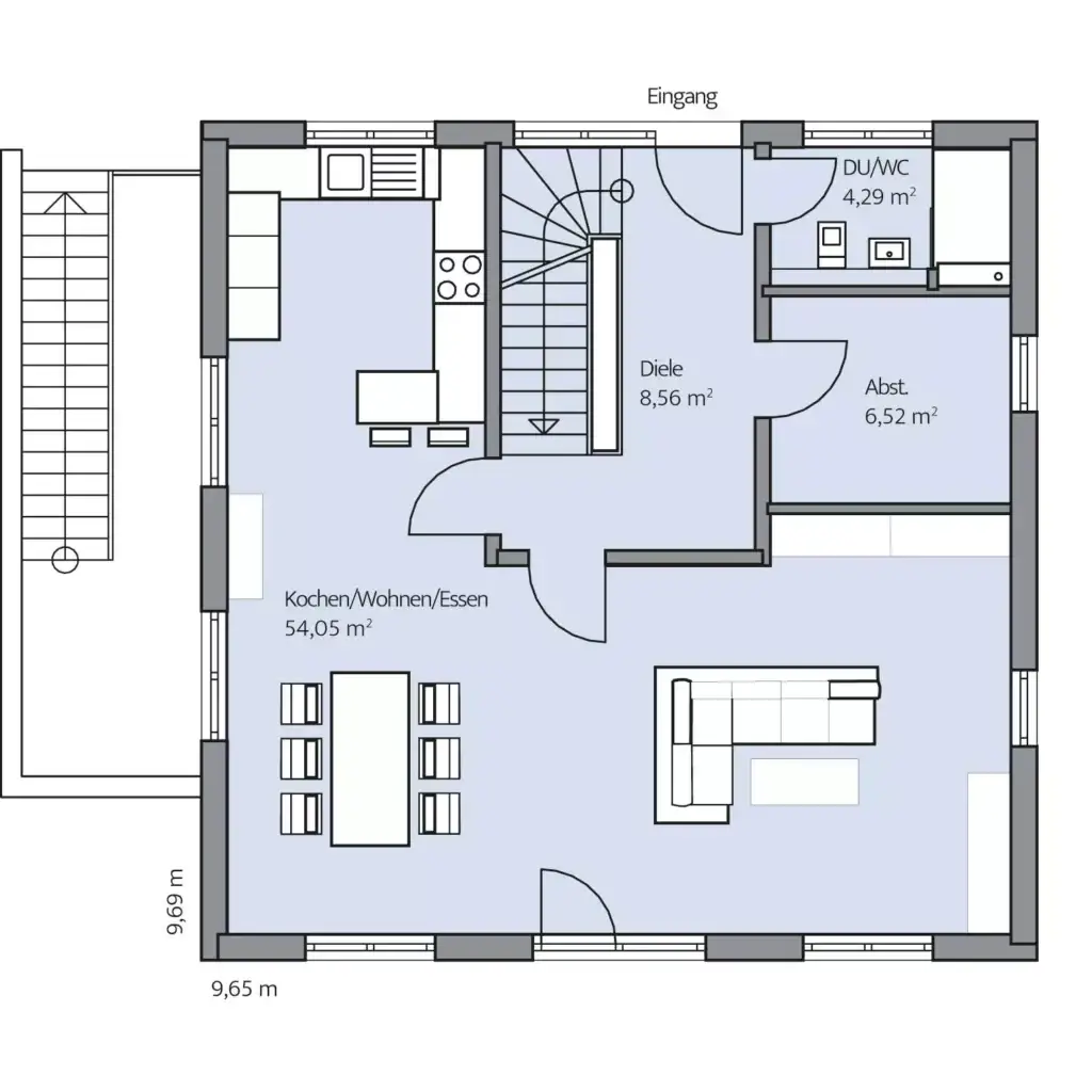
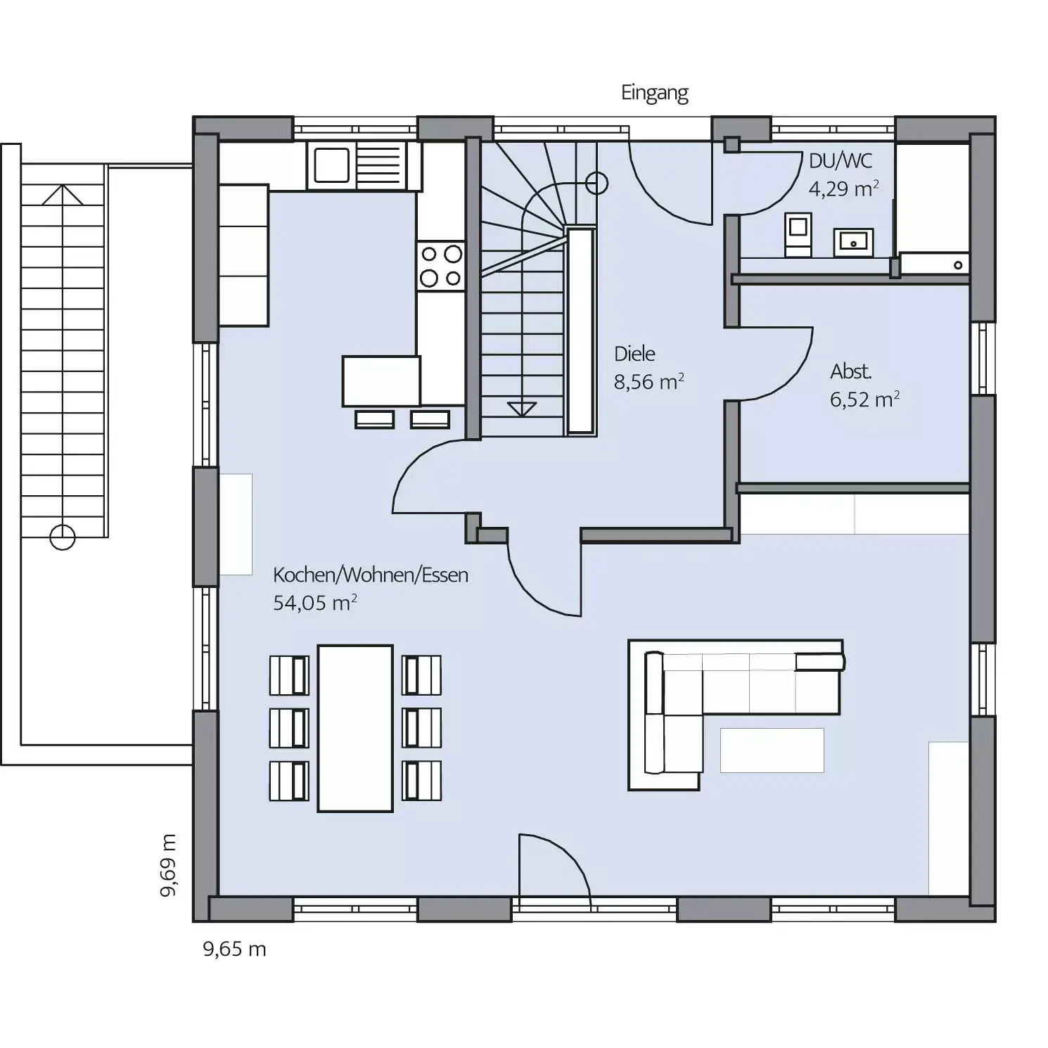
Grundriss Erdgeschoss

Grundriss Erdgeschoss

Grundriss Obergeschoss

Grundriss Obergeschoss

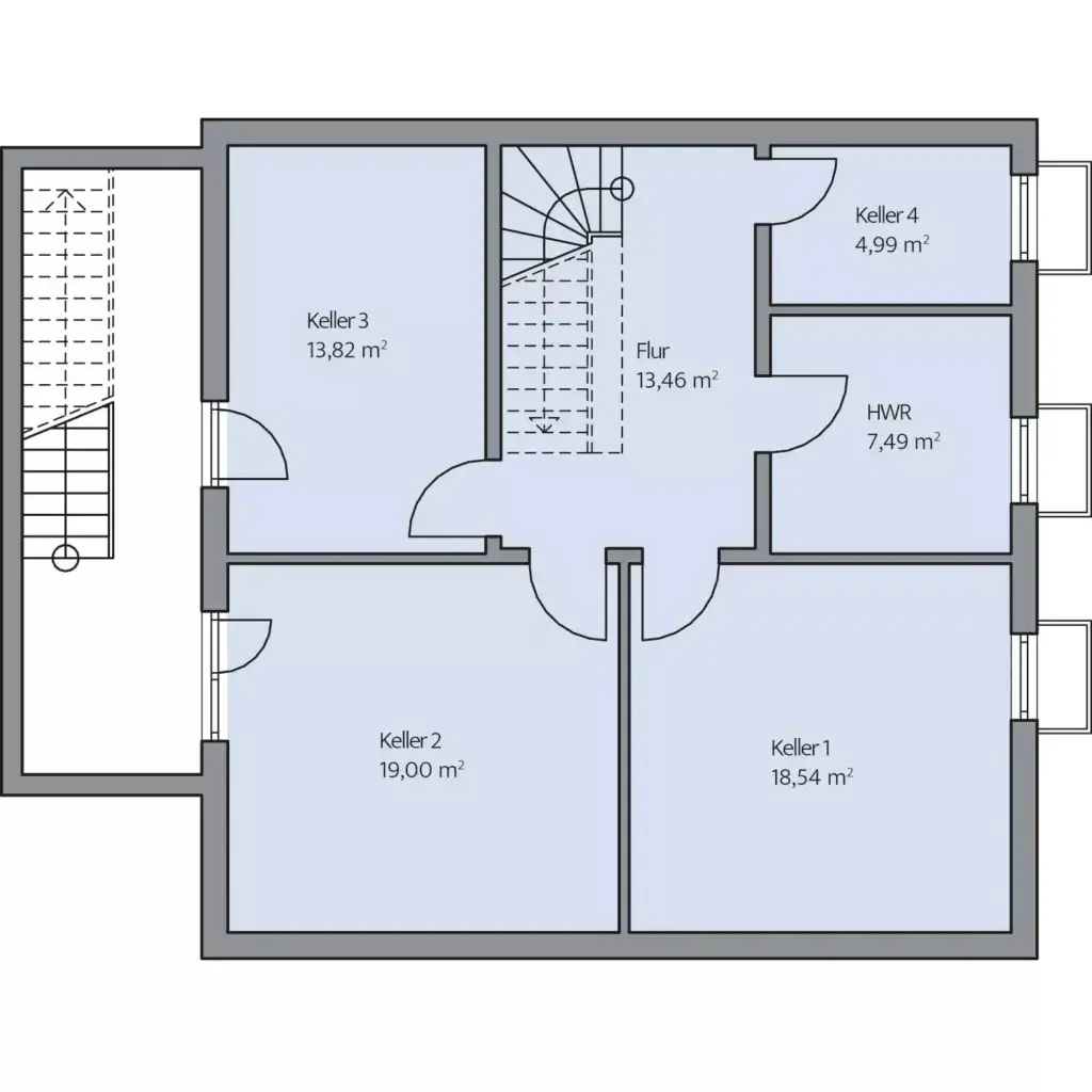
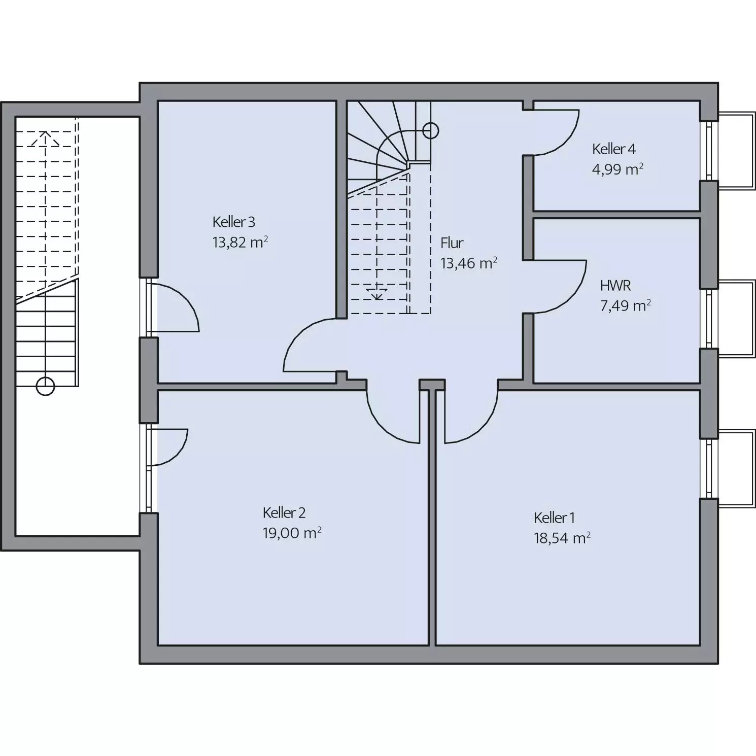
Grundriss Kellergeschoss

Grundriss Kellergeschoss

Weitere Impressionen