Haus Escher

Eigenschaften

Wohnfläche

  • EG60,9 m²
  • DG51,3 m²
  • Gesamt112,2 m²
  • Außenmaß8,24 m

Gesamtfläche

  • EG62,8 m²
  • DG59,5 m²
  • Gesamt122,3 m²
  • Außenmaß9,36 m
  • Kniestock100 cm
  • Dachneigung40°

Viel Raum und Privatsphäre - auf kleinem Grundstück und ohne Keller.

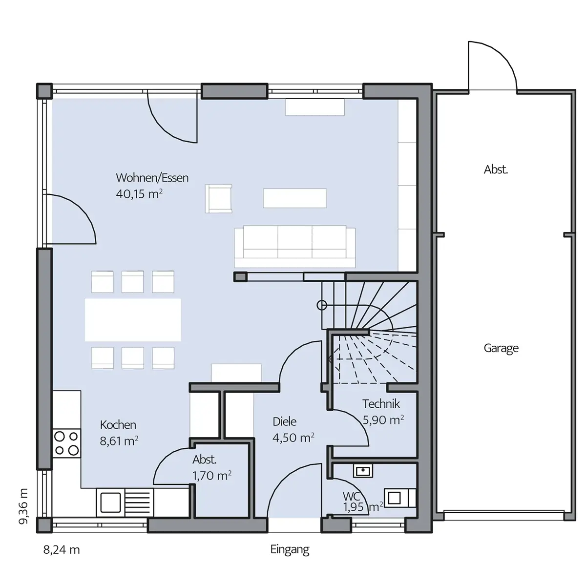
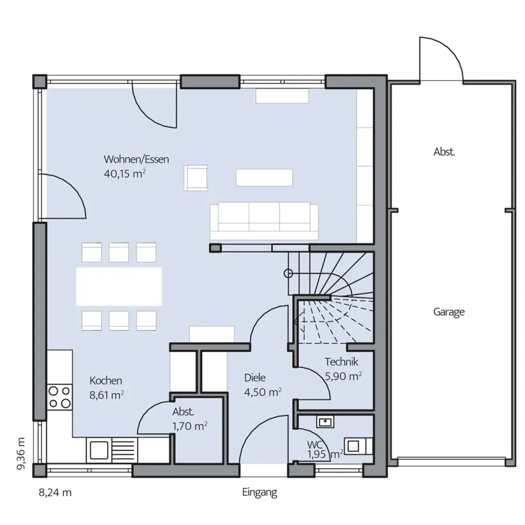
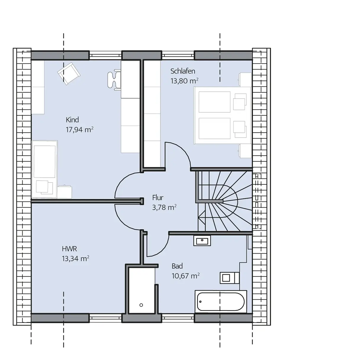
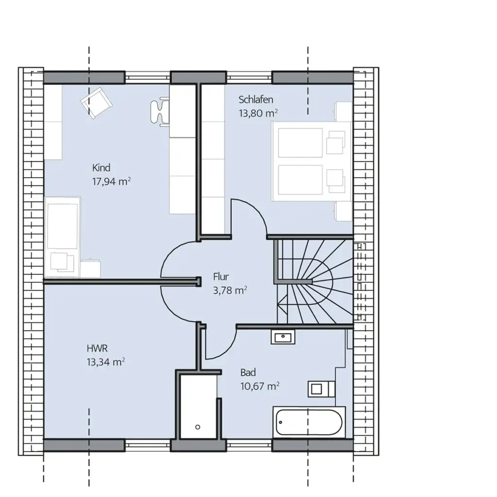
Das Haus der Familie Escher ist mit seinen Außenmaßen von rund 8 x 9 Metern die optimale Lösung für kleine Grundstücke im Stadtbereich. Die puristische Formsprache, die klaren Farben, Übereck-Verglasungen sowie der weitgehende Verzicht auf Dachüberstände runden außerdem den modernen, aber zeitlosen Wohnstil ab. Im Erdgeschoss gibt ein offenes Raumkonzept den Ton an. Auf nur rund 60 m² finden Bewohner und Gäste dank der L-förmigen Anordnung der Bereiche Weiträumigkeit, wie Privatsphäre zugleich. Auch das Obergeschoss präsentiert sich dank seines Kniestocks von 100 cm und der Dachneigung von 40 Grad überraschend großzügig. Hier findet eine dreiköpfige Familie ausreichend Wohnraum – und auch eine vierte Person kann ein eigenes Zimmer bekommen, wenn der Hauswirtschaftsraum einfach umfunktioniert wird. Mit einer Fußbodenheizung, einer Luft-Wasser-Wärmepumpe sowie einer integrierten Lüftungsanlage in allen Räumen, hat das Haus der Familie Escher auch technisch die Nase vorn.

Hinweis zur Flächenberechnung:
Alle dargestellten Flächen und Flächenberechnungen zu Wohnflächen (kurz WF) und Grundflächen (kurz GF) wurden gemäß der Verordnung zur Berechnung der Wohnfläche (Wohnflächenverordnung – Wo FlV) vom 25. November 2003 (BgBl. I S. 2346) ermittelt.

Immer an Ausstattung inklusive

Energie-effizient

Nachhaltig

gebaut

Langlebig & robust

Wert-beständig

Gesundes Raumklima

Zukunftssicher

Grundriss Erdgeschoss

Grundriss Erdgeschoss

Grundriss Dachgeschoss

Grundriss Dachgeschoss

Weitere Impressionen