Haus Falkenberg

Eigenschaften

Wohnfläche

  • KG
  • EG84,0 m²
  • DG69,5 m²
  • Gesamt153,5 m²
  • Außenmaß10,37 m

Gesamtfläche

  • KG82,7 m²
  • EG84,0 m²
  • DG74,9 m²
  • Gesamt241,6 m²
  • Außenmaß10,87 m
  • Kniestock60 cm
  • Dachneigung35°

Klassischer Stil für vier Personen.

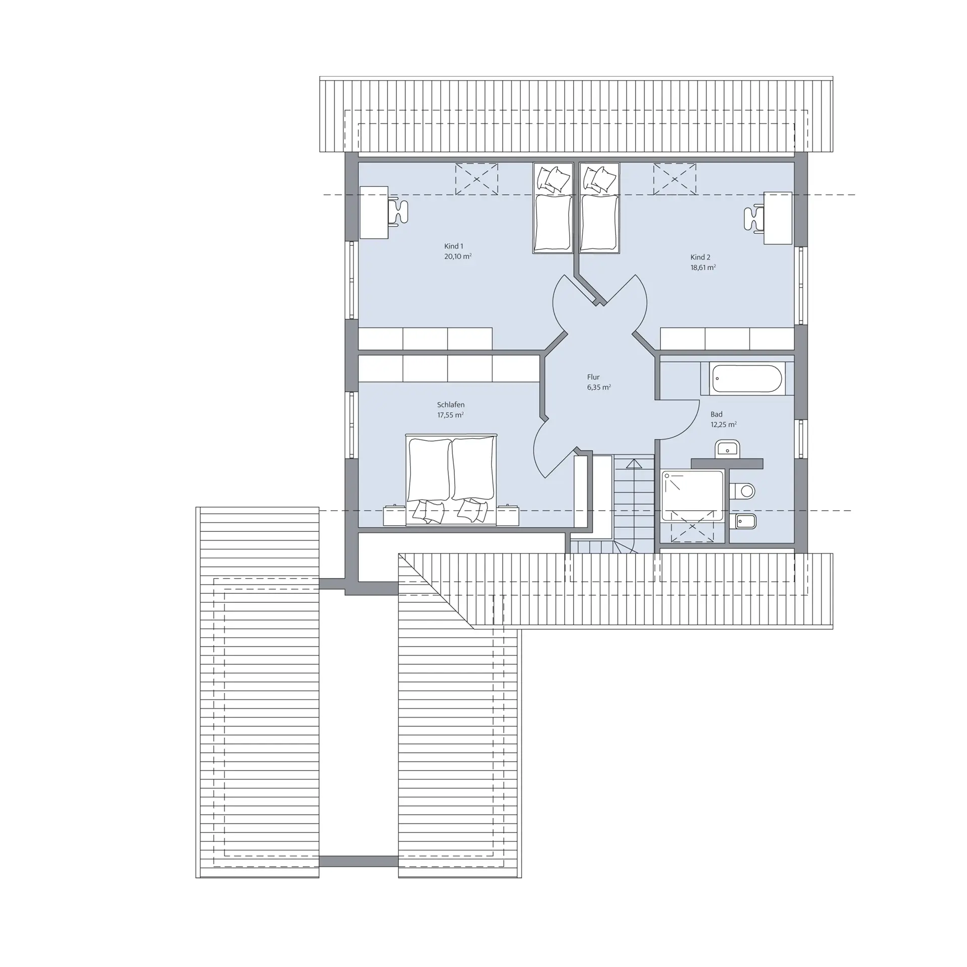
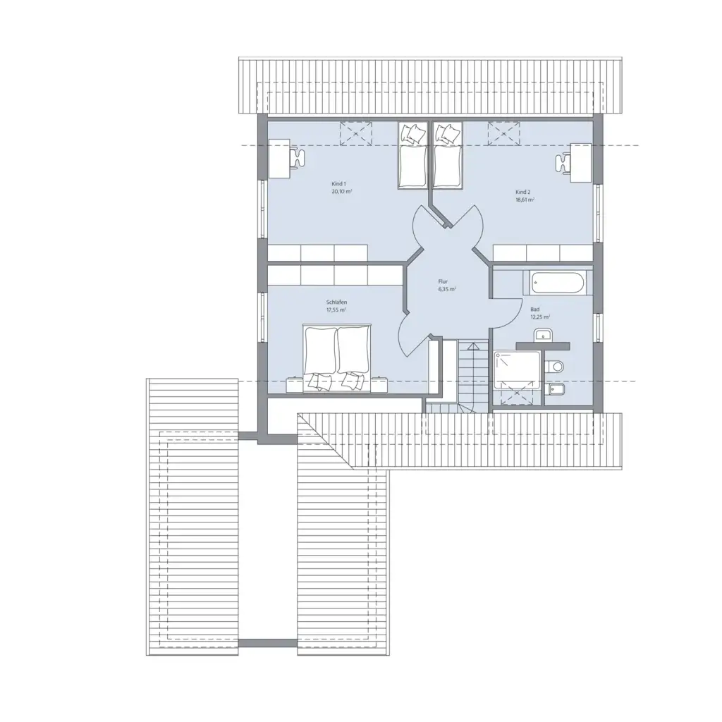
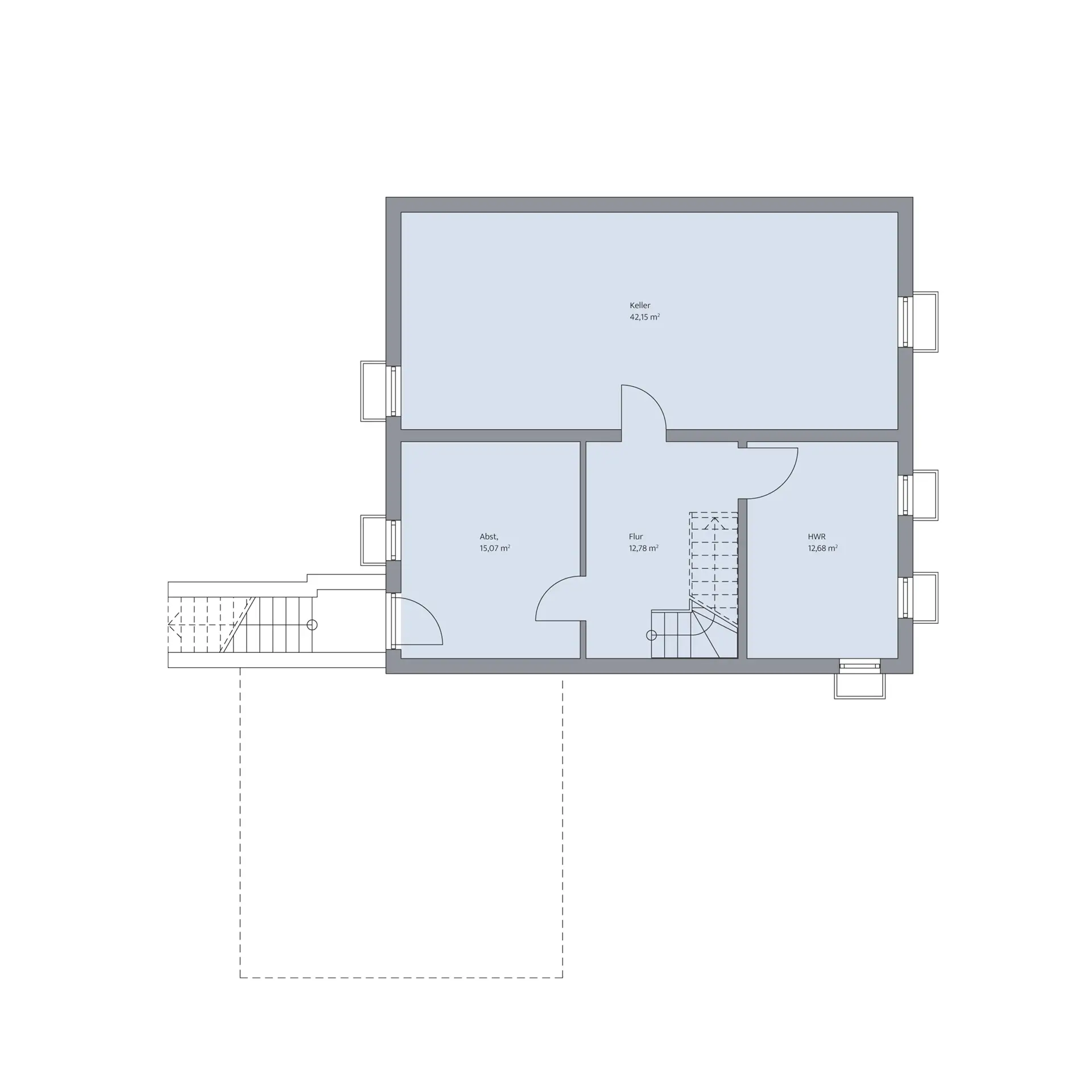
Nach Hause kommen und wohlfühlen – im Haus Falkenberg kein Problem. Denn das klassische Satteldach-Haus steht für modern interpretierte, zeitlose Behaglichkeit. Es umfasst eine Wohnfläche von rund 154 m² und verfügt über drei Schlafzimmer, ein Gästezimmer, zwei Badezimmer und ein Kellergeschoss mit Stau- oder Hobbyraum, einem Abstellraum sowie dem Hauswirtschaftsraum. Im Erdgeschoss gibt es einen großen Wohn-/Essbereich von rund 48 m², mit Zugang zu Terrasse und Garten. Direkt angeschlossen, offen und großzügig ist die Küche. Über die Diele gelangt man in das Duschbad und das über 12 m² große Gästezimmer. Im Dachgeschoss führt ein sternförmiger Flur zu den drei Privaträumen sowie zu einem weiteren Bad mit Dusche und Badewanne.

Hinweis zur Flächenberechnung:
Alle dargestellten Flächen und Flächenberechnungen zu Wohnflächen (kurz WF) und Grundflächen (kurz GF) wurden gemäß der Verordnung zur Berechnung der Wohnfläche (Wohnflächenverordnung – Wo FlV) vom 25. November 2003 (BgBl. I S. 2346) ermittelt.

Immer an Ausstattung inklusive

Energie-effizient

Nachhaltig

gebaut

Langlebig & robust

Wert-beständig

Gesundes Raumklima

Zukunftssicher

Grundriss Erdgeschoss

Grundriss Erdgeschoss

Grundriss Dachgeschoss

Grundriss Dachgeschoss

Grundriss Kellergeschoss

Grundriss Kellergeschoss

Weitere Impressionen