Haus Fuchs

Eigenschaften

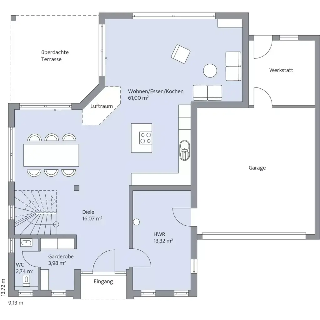
Wohnfläche

  • EG95,0 m²
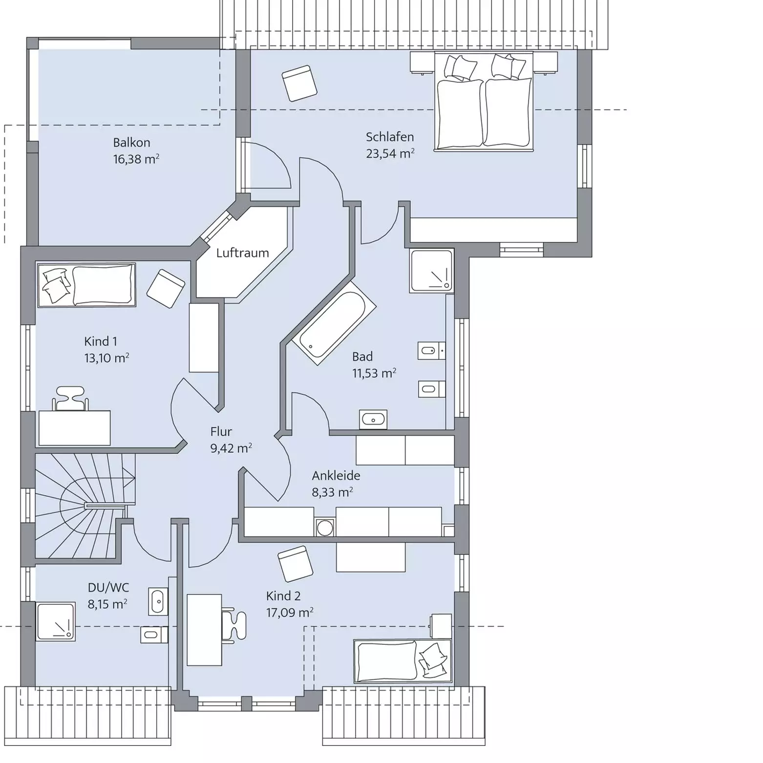
  • DG91,3 m²
  • Gesamt186,3 m²
  • Außenmaß11,63 m

Gesamtfläche

  • EG97,1 m²
  • DG107,5 m²
  • Gesamt204,6 m²
  • Außenmaß13,72 m
  • Kniestock100 cm
  • Dachneigung34°

Gelungene Balance aus Tradition und Moderne.

Als individuell geplantes Satteldachhaus überzeugt Haus Fuchs schon auf den ersten Blick durch seine elegante Symmetrie, schlanken Lichtbänder auf der Eingangsseite und asymmetrische Dachgeometrie auf den Giebelseiten. Der Kontrast zwischen Weiß und Anthrazit betont das klare und edle Erscheinungsbild zusätzlich. Am Ostgiebel befindet sich ein großer Balkon mit Teilüberdachung und darunter eine geschützte Terrasse. Offenheit und viel Licht prägen auch den Grundriss im Erdgeschoss: Eingangsbereich, Diele, Garderobe und Treppe sind ins offene Wohnensemble integriert. Das Dachgeschoss ist für vier Personen ausgelegt und bietet ausreichend große Individualräume und viel Komfort. So verfügt der Elterntrakt über ein Bad mit Dusche und Wanne sowie eine Ankleide, die auch von den Kinderzimmern aus genutzt werden könnte.

Sie sehen gerade einen Platzhalterinhalt von YouTube. Um auf den eigentlichen Inhalt zuzugreifen, klicken Sie auf die Schaltfläche unten. Bitte beachten Sie, dass dabei Daten an Drittanbieter weitergegeben werden.

Mehr Informationen

Hinweis zur Flächenberechnung:
Alle dargestellten Flächen und Flächenberechnungen zu Wohnflächen (kurz WF) und Grundflächen (kurz GF) wurden gemäß der Verordnung zur Berechnung der Wohnfläche (Wohnflächenverordnung – Wo FlV) vom 25. November 2003 (BgBl. I S. 2346) ermittelt.

Immer an Ausstattung inklusive

Energie-effizient

Nachhaltig

gebaut

Langlebig & robust

Wert-beständig

Gesundes Raumklima

Zukunftssicher

Grundriss Erdgeschoss

Grundriss Erdgeschoss

Grundriss Dachgeschoss

Grundriss Dachgeschoss

Weitere Impressionen