Haus Götze

Eigenschaften

Wohnfläche

  • EG136,4 m²
  • DG100,5 m²
  • SBP25,9 m²
  • Gesamt262,8 m²
  • Außenmaß13,42 m

Gesamtfläche

  • EG137,9 m²
  • DG120,0 m²
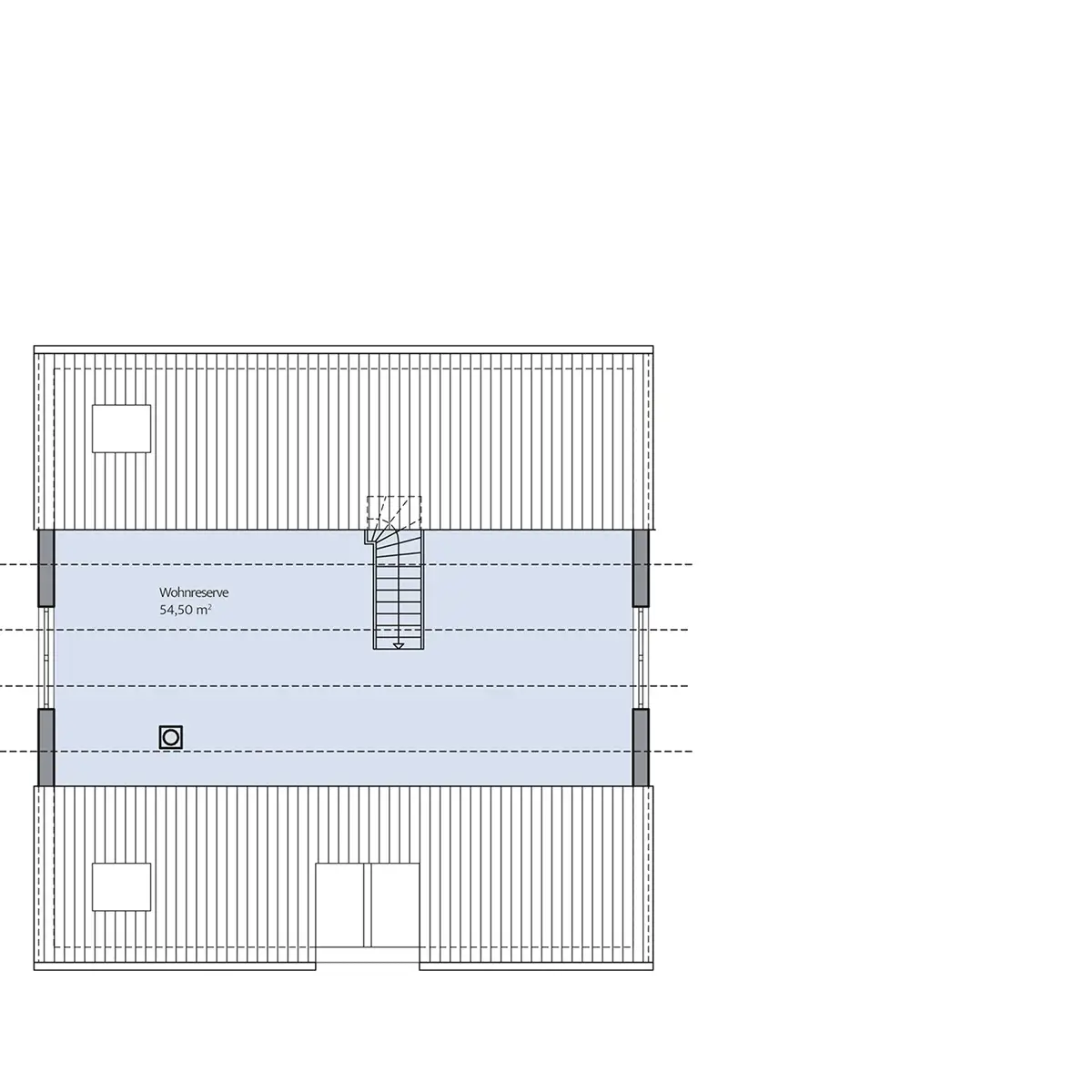
  • SBP54,5 m²
  • Gesamt312,5 m²
  • Außenmaß13,42 m
  • Kniestock75 cm
  • Dachneigung38°

Ein klares Statement für Stil.

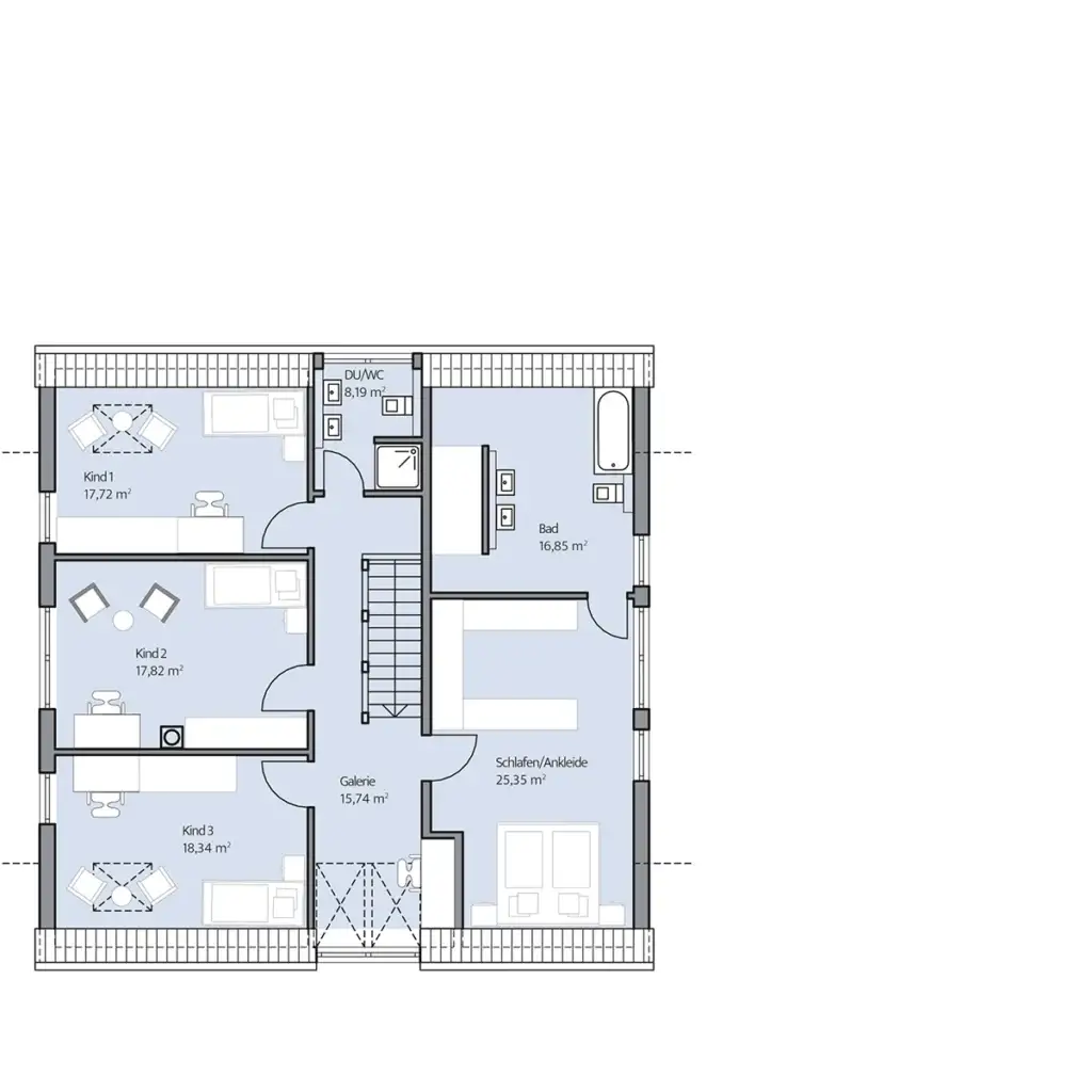
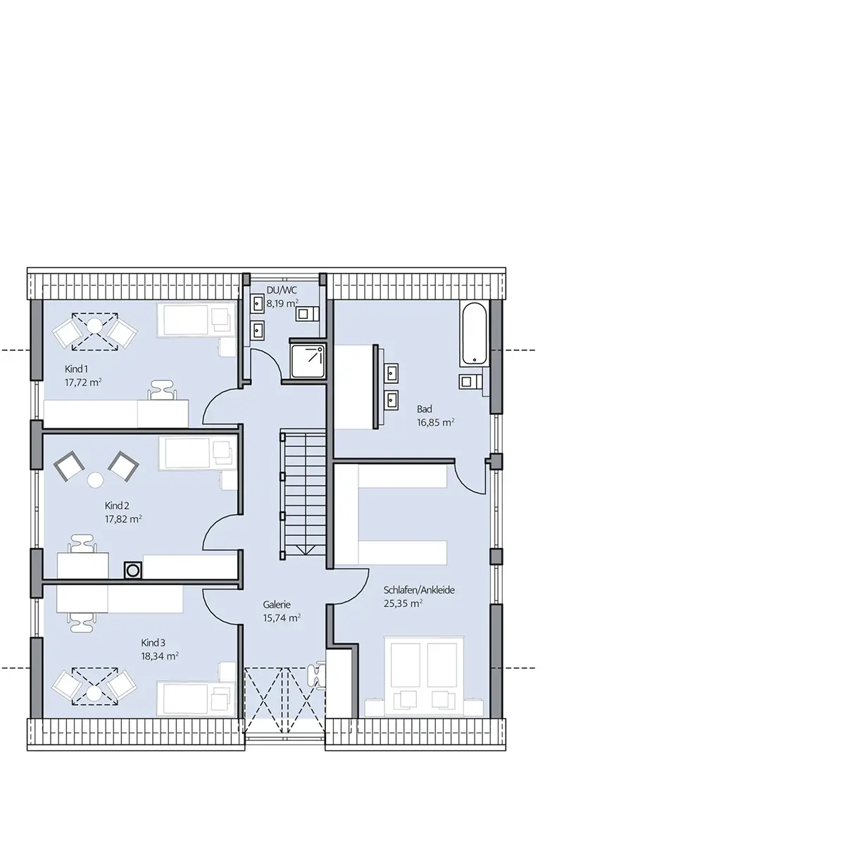
Das Haus der Familie Götze ist der Stein auf Stein gebaute Beweis dafür, dass weniger manchmal mehr ist. Dieses modern-puristische Stilkonzept verzichtet gänzlich auf Dachüberstände und setzt auf die gelungene Kombination von weißer Putzfassade, Dachsteinen in Anthrazit und einem dunklen Fassadenstreifen mit Dachflächenverglasung. Diese Reduktion aufs Wesentliche wird ergänzt durch unterschiedliche Fensterformate sowie geschickt positionierten Glasflächen, die nach vorne blickschützend sind, jedoch zum Garten hin großzügig und transparent. Dieses Heim im individuellen Bauhausstil verfügt, um den Baugenehmigungsvorschriften nachzukommen, bewusst nicht über ein Flachdach sondern über ein Satteldach. Im Inneren kann sich Familie Götze über 263 m² Wohnfläche freuen, die sich mit offenen Übergängen und halboffenen Wandsegmenten in luftiger Architektur präsentiert. Dennoch gibt es eine optische Grenze zwischen Rückzugs- und Arbeitsbereich. Im Dachgeschoss finden fünf Familienmitglieder komfortabel Platz. Das Elternschlafzimmer verfügt über einen Ankleidebereich sowie ein privates Bad. Zu den drei Kinderzimmern gehört ein separater Dusch- und WC-Bereich. Eine sparsame, solarunterstützte Gastherme sorgt für Wärme.

Hinweis zur Flächenberechnung:
Alle dargestellten Flächen und Flächenberechnungen zu Wohnflächen (kurz WF) und Grundflächen (kurz GF) wurden gemäß der Verordnung zur Berechnung der Wohnfläche (Wohnflächenverordnung – Wo FlV) vom 25. November 2003 (BgBl. I S. 2346) ermittelt.

Immer an Ausstattung inklusive

Energie-effizient

Nachhaltig

gebaut

Langlebig & robust

Wert-beständig

Gesundes Raumklima

Zukunftssicher

Grundriss Erdgeschoss

Grundriss Erdgeschoss

Grundriss Dachgeschoss

Grundriss Dachgeschoss

Grundriss Spitzboden

Grundriss Spitzboden

Weitere Impressionen