Haus Haas

Eigenschaften

Wohnfläche

  • KG
  • EG68,8 m²
  • DG56,8 m²
  • Gesamt125,6 m²

Gesamtfläche

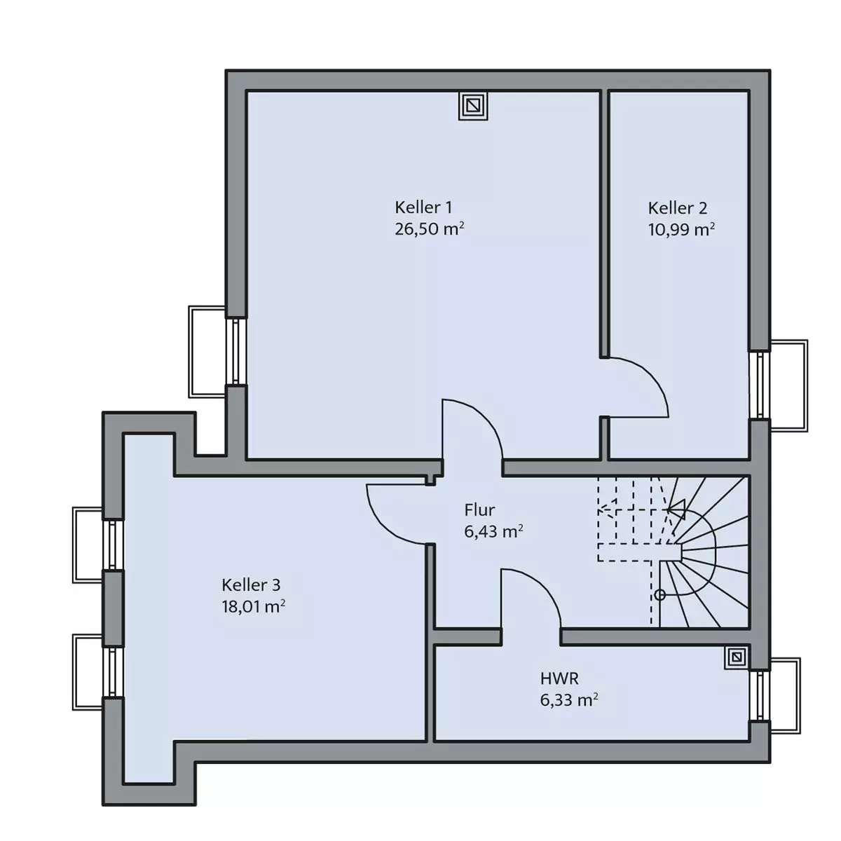
  • KG68,3 m²
  • EG68,8 m²
  • DG71,8 m²
  • Gesamt208,9 m²
  • Kniestock125 cm
  • Dachneigung42°

Ein Klassiker mit modernem Gesicht.

Geometrische Formen und reduzierte Linienführung demonstrieren eindrucksvoll die Richtung gegenwärtiger Architektur. Die klare Gestaltung wird auch im Inneren konsequent fortgeführt. Von zukunftsorientiertem Wohndesign zeugen eine multifunktionale Kücheninsel und helle Wohnräume mit fließenden Übergängen. Die moderne, geschmackvolle Ausstattung verleiht diesem Zuhause seine persönliche Note.

Hinweis zur Flächenberechnung:
Alle dargestellten Flächen und Flächenberechnungen zu Wohnflächen (kurz WF) und Grundflächen (kurz GF) wurden gemäß der Verordnung zur Berechnung der Wohnfläche (Wohnflächenverordnung – Wo FlV) vom 25. November 2003 (BgBl. I S. 2346) ermittelt.

Immer an Ausstattung inklusive

Energie-effizient

Nachhaltig

gebaut

Langlebig & robust

Wert-beständig

Gesundes Raumklima

Zukunftssicher

Grundriss Erdgeschoss

Grundriss Erdgeschoss

Grundriss Dachgeschoss

Grundriss Dachgeschoss

Grundriss Kellergeschoss

Grundriss Kellergeschoss

Weitere Impressionen