Haus Hallmann

Eigenschaften

Wohnfläche

  • EG116,1 m²
  • DG93,6 m²
  • Gesamt209,7 m²
  • Außenmaß11,24 m

Gesamtfläche

  • EG118,0 m²
  • DG108,7 m²
  • Gesamt226,7 m²
  • Außenmaß13,33 m
  • Kniestock100 cm
  • Dachneigung45°

Unikat mit modernster Technik.

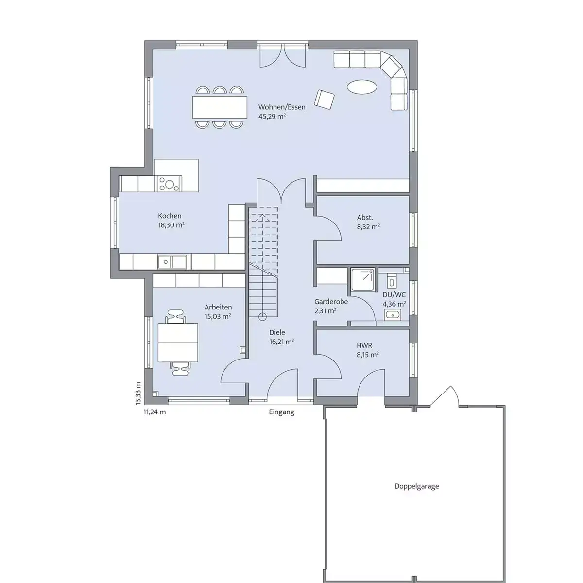
Haus Hallmann ist ein Entwurf mit unverwechselbarem Äußeren. Die typisch norddeutsche Klinkerschalung in Anthrazit wird durch weiße Putzfassaden und ein Satteldach in kräftigem Rot ergänzt. Blickfang auf der Vorderseite des Hauses ist der weiße Zwerchgiebel, der in beiden Geschossen mit einem zweiflügeligen Glaselement ausgestattet ist. Auch auf den anderen Hausseiten schaffen große Glasflächen transparente Übergänge zu Terrasse und Garten. Der Grundriss zeigt auf 116 m² ein cleveres Raumangebot. Die Wohnräume im Erdgeschoss werden von der Diele aus über eine zweiflügelige Glastür erschlossen. Sie bieten alles, was man sich heute wünschen kann: offene Übergänge und eine Gliederung in L-Form mit Küchenblock als Trennlinie zwischen Arbeitsbereich und Essplatz. Dank einem Kniestock von 100 cm geht es unter dem steilen Satteldach sehr geräumig zu. Als Wärmequelle fungiert eine Erdwärmepumpe, die von einer kontrollierten Lüftung mit Wärmerückgewinnung unterstützt wird. Die Photovoltaikanlage liefert einen Großteil des benötigten Stroms.

Sie sehen gerade einen Platzhalterinhalt von YouTube. Um auf den eigentlichen Inhalt zuzugreifen, klicken Sie auf die Schaltfläche unten. Bitte beachten Sie, dass dabei Daten an Drittanbieter weitergegeben werden.

Mehr Informationen

Hinweis zur Flächenberechnung:
Alle dargestellten Flächen und Flächenberechnungen zu Wohnflächen (kurz WF) und Grundflächen (kurz GF) wurden gemäß der Verordnung zur Berechnung der Wohnfläche (Wohnflächenverordnung – Wo FlV) vom 25. November 2003 (BgBl. I S. 2346) ermittelt.

Immer an Ausstattung inklusive

Energie-effizient

Nachhaltig

gebaut

Langlebig & robust

Wert-beständig

Gesundes Raumklima

Zukunftssicher

Grundriss Erdgeschoss

Grundriss Erdgeschoss

Grundriss Dachgeschoss

Grundriss Dachgeschoss

Weitere Impressionen