Haus Heuberger

Eigenschaften

Wohnfläche

  • UG72,9 m²
  • EG76,0 m²
  • DG70,8 m²
  • Gesamt219,7 m²

Gesamtfläche

  • UG129,8 m²
  • EG76,0 m²
  • DG80,7 m²
  • Gesamt286,5 m²
  • Kniestock100 cm
  • Dachneigung35°

Zukunftsgerecht mit Einliegerwohnung.

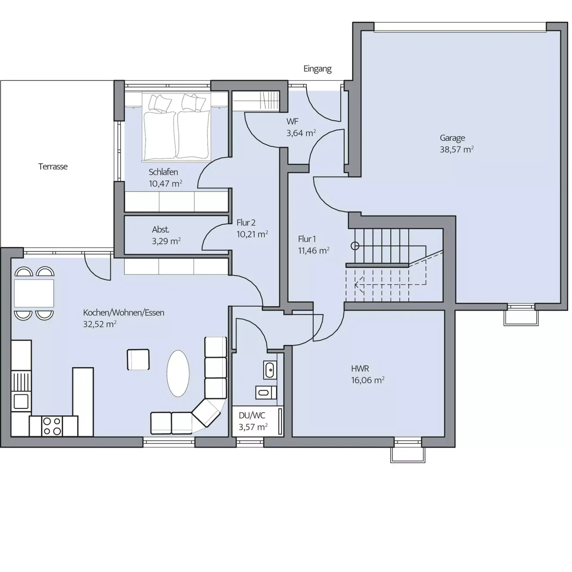
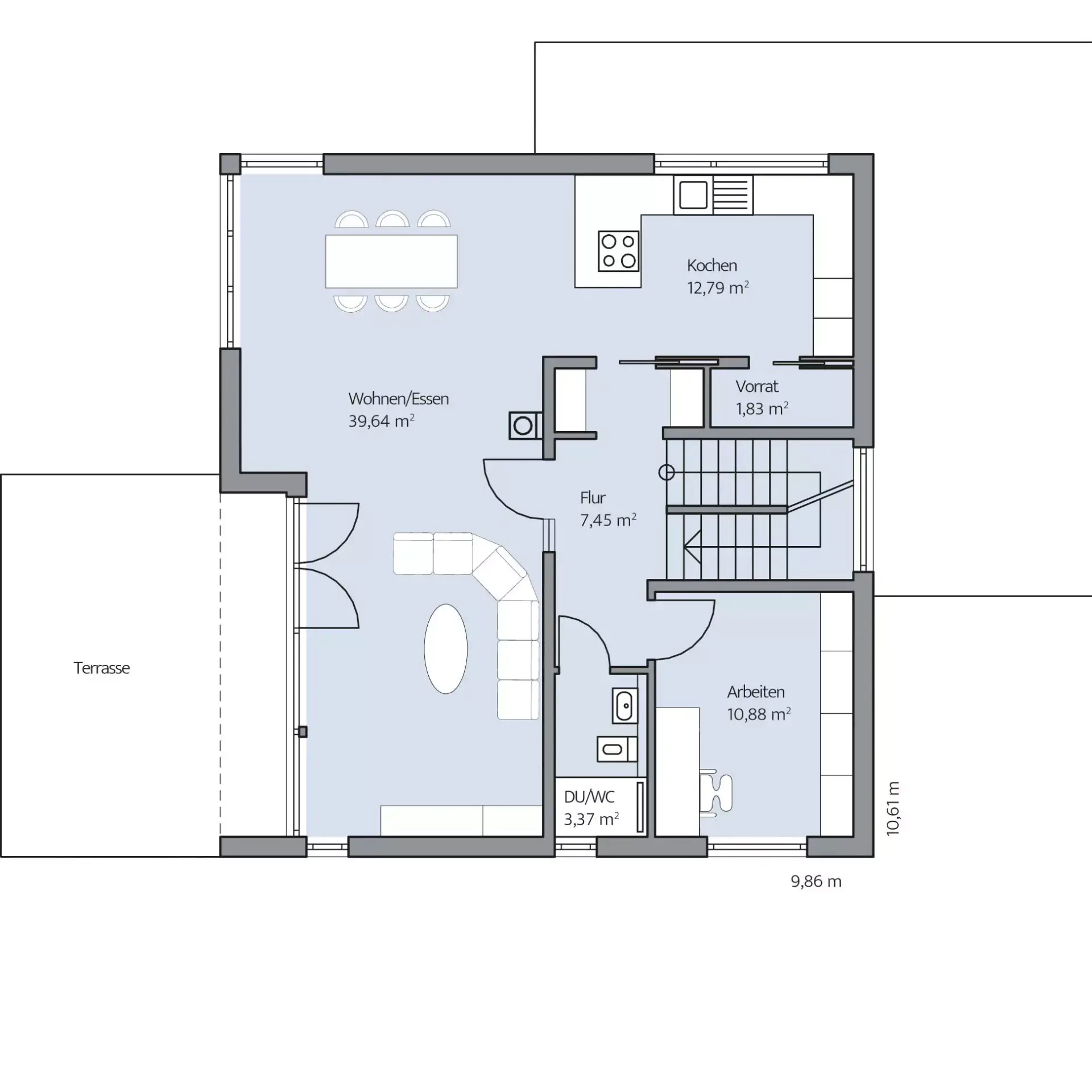
Das Satteldachhaus der Familie Heuberger ist der Klassiker in Neubaugebieten, der nicht nur unkompliziert genehmigungsfähig ist, sondern auch an die Zukunft denkt. Praktisch und optisch ansprechend zugleich fällt es mit klaren Linien, weißer Putzfassade, dunkler Dacheindeckung mit energiesparender Photovoltaikanlage, den symmetrischen Giebeldreiecken und den asymmetrisch geteilten Fenstern, ergänzt durch schmale Lichtbänder, angenehm ins Auge. Über der in den Hang gebauten Garage passt sich der überdachte Eingang optimal an die eine Etage höher gelegene Terrasse an. Im Erdgeschoss befinden sich zwei durch eigene Eingänge getrennte, aber dennoch intern über einen Windfang miteinander verbundene Wohneinheiten. So eignet sich die Einliegerwohnung optimal und ganz flexibel als Wohnraum für ein älteres Kind, als ebenerdiger Alterssitz oder als Unterkunft für eine Pflegeperson, während die Besitzer in der Hauptwohnung wohnen bleiben. Die Einliegerwohnung umfasst einen Flur, den Schlafraum, eine Abstellkammer, ein Duschbad sowie natürlich einen Wohnraum und die Küche. Die Hauptwohnung wird dominiert durch einen großzügigen Essplatz mit bodentiefen Glasflächen, die komfortable Küche, einen privaten Wohnbereich mit Blick in den Garten, ein Reserveraum (z.B. nutzbar als Gäste- oder Arbeitszimmer) sowie ein Dusch-WC. Im Obergeschoss befinden sich neben dem Elternschlafzimmer mit separater Ankleide ein großzügiges Bad sowie zwei lichtverwöhnte Kinderzimmer. Optimal macht sich in allen Räumen der 100 cm hohe Kniestock bemerkbar.

Hinweis zur Flächenberechnung:
Alle dargestellten Flächen und Flächenberechnungen zu Wohnflächen (kurz WF) und Grundflächen (kurz GF) wurden gemäß der Verordnung zur Berechnung der Wohnfläche (Wohnflächenverordnung – Wo FlV) vom 25. November 2003 (BgBl. I S. 2346) ermittelt.

Immer an Ausstattung inklusive

Energie-effizient

Nachhaltig

gebaut

Langlebig & robust

Wert-beständig

Gesundes Raumklima

Zukunftssicher

Grundriss Erdgeschoss

Grundriss Erdgeschoss

Grundriss Dachgeschoss

Grundriss Dachgeschoss

Grundriss Kellergeschoss

Grundriss Kellergeschoss

Weitere Impressionen