Haus Illner

Eigenschaften

Wohnfläche

  • KG
  • EG87,4 m²
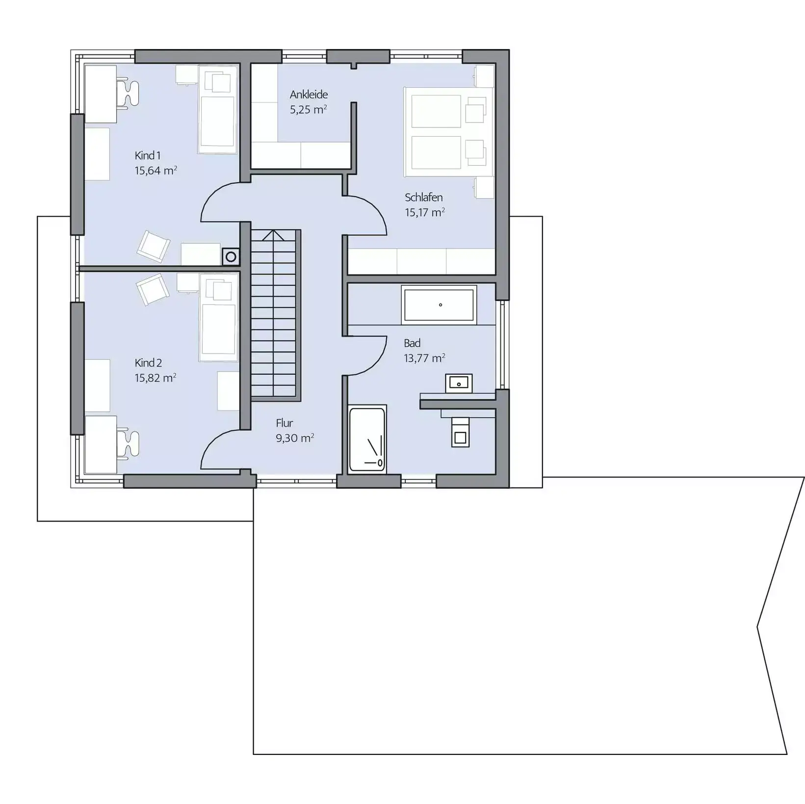
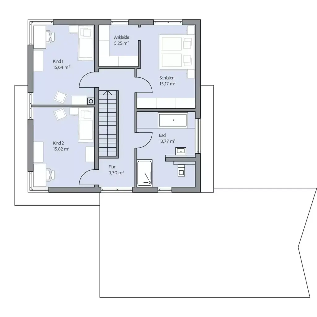
  • OG75,0 m²
  • Gesamt162,4 m²

Gesamtfläche

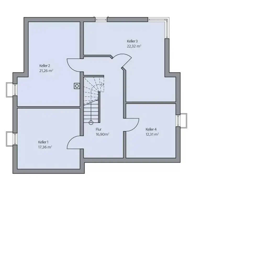
  • KG90,2 m²
  • EG87,4 m²
  • OG75,0 m²
  • Gesamt252,6 m²
  • Kniestock0 cm
  • Dachneigung26°

Großzügigkeit ohne Raumverlust.

Aus der Stadtvilla der Familie Illner wurde das Maximum an Wohnfläche herausgeholt – zum Beispiel, weil durch das flache Zeltdach kein Platz durch Dachschrägen genommen wird. So ist es ein optimales Haus für teuren urbanen Baugrund und ein Ausdruck modern puristischen Lebensgefühls. Der kubische in grau abgesetzte Anbau bringt Bauhaus-Stil mit und sorgt für ein Plus an Wohnfläche zusätzlich zum fast quadratischen Baukörper. Die zahlreichen Übereckverglasungen sowie die bodentiefen französischen „Balkone“ sorgen für Licht an den richtigen Stellen. So zum Beispiel im großzügigen Wohnbereich mit seinem beidseitig verglasten Kamin oder auf den Essplatz, der großartige Blicke in den Garten bietet und sich direkt an die moderne Küche angliedert. Ebenso stehen eine repräsentative Diele, ein Gäste-WC sowie ein Hauswirtschaftsraum zur Verfügung. Dieser ließe sich bei Bedarf auch in ein kleines Schlafzimmer verwandeln, so dass ein ebenerdiges Wohnen im Alter möglich ist. Der obere Bereich wird gestaltet von einem Elternschlafzimmer mit angegliedeter Ankleide, einem großen Bad sowie zwei rund 16 m2 großen Kinderzimmern. Ein platzreicher Luxus, den die Dachform möglich macht.

Hinweis zur Flächenberechnung:
Alle dargestellten Flächen und Flächenberechnungen zu Wohnflächen (kurz WF) und Grundflächen (kurz GF) wurden gemäß der Verordnung zur Berechnung der Wohnfläche (Wohnflächenverordnung – Wo FlV) vom 25. November 2003 (BgBl. I S. 2346) ermittelt.

Immer an Ausstattung inklusive

Energie-effizient

Nachhaltig

gebaut

Langlebig & robust

Wert-beständig

Gesundes Raumklima

Zukunftssicher

Grundriss Erdgeschoss

Grundriss Erdgeschoss

Grundriss Obergeschoss

Grundriss Obergeschoss

Grundriss Kellergeschoss

Grundriss Kellergeschoss

Weitere Impressionen