Haus Junker

Eigenschaften

Wohnfläche

  • EG73,3 m²
  • DG63,7 m²
  • Gesamt137,0 m²
  • Außenmaß19,98 m

Gesamtfläche

  • EG74,8 m²
  • DG68,9 m²
  • Gesamt143,7 m²
  • Außenmaß8,48 m
  • Kniestock100 cm
  • Dachneigung45°

Wunderschönes Traumhaus für eine vierköpfige Familie.

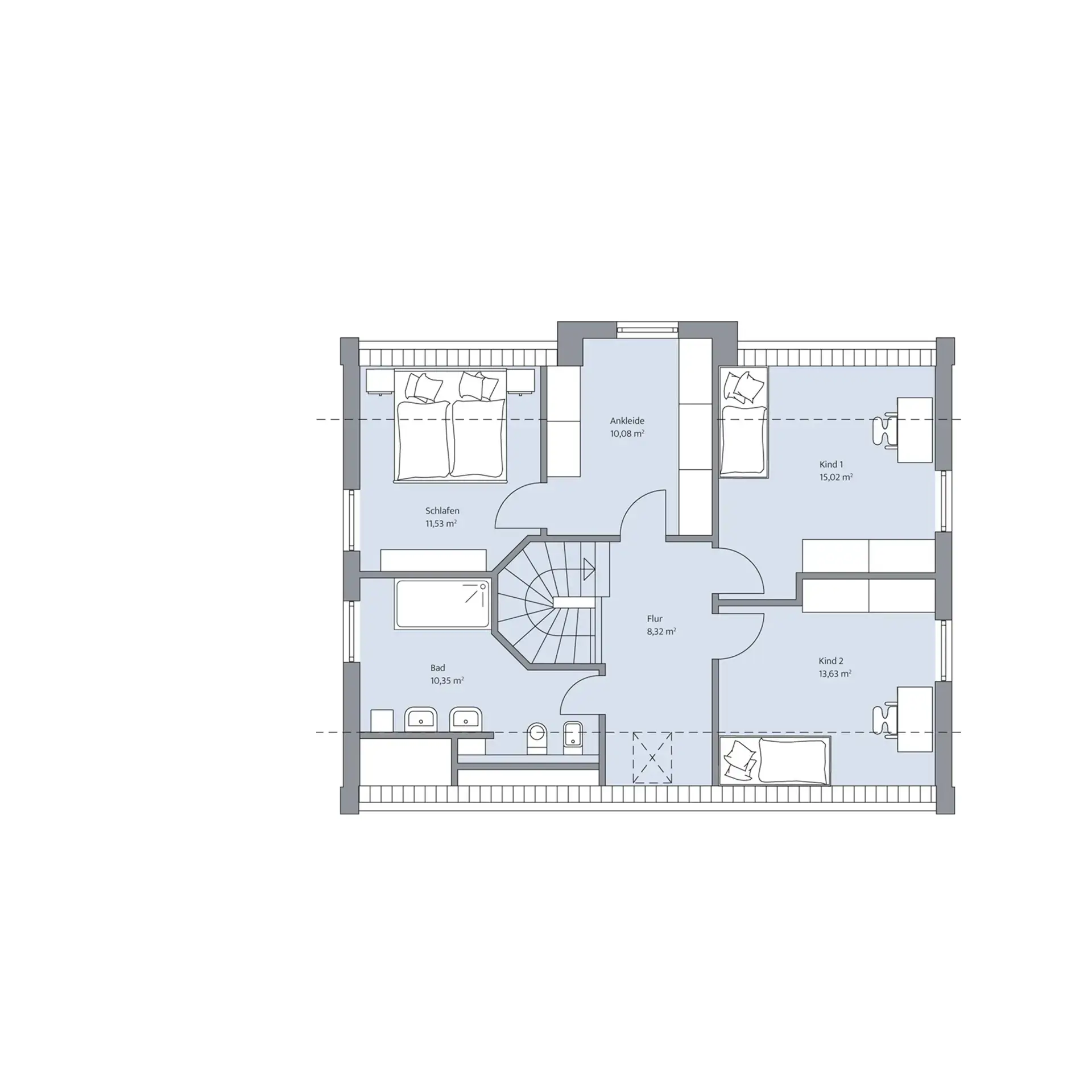
Das klassische Haus Junker mit seinen klaren Linien, dem imposanten Zwerchgiebel, den farblich changierenden Verblendsteinen und der grünen Landhaustür ist Wohngefühl pur. Vier Personen genießen hier den Platz auf 137 m² Wohnfläche, verteilt auf Erdgeschoss und Dachgeschoss. Ausreichend Raum in einem Haus, das auch auf kleineren Grundstücken realisierbar ist. Hinzu kommen ein Carport und ein außenliegender Abstellraum, der auch vom Garten aus zugänglich ist. Das Erdgeschoss kann durch die Haustür oder direkt durch den Carport betreten werden. Es umfasst einen Hauswirtschaftsraum, eine offene Küche und einen Wohn-/Essbereich mit Gartenzugang. Ein Kaminofen, ein Gäste-WC sowie die geschwungene, im modernen Grau gehaltene Treppe hinauf ins Dachgeschoss runden die untere Etage ab. Oben befinden sich zwei Kinderzimmer, das Familienbad sowie das Elternschlafzimmer mit separatem Ankleideraum.

Hinweis zur Flächenberechnung:
Alle dargestellten Flächen und Flächenberechnungen zu Wohnflächen (kurz WF) und Grundflächen (kurz GF) wurden gemäß der Verordnung zur Berechnung der Wohnfläche (Wohnflächenverordnung – Wo FlV) vom 25. November 2003 (BgBl. I S. 2346) ermittelt.

Immer an Ausstattung inklusive

Energie-effizient

Nachhaltig

gebaut

Langlebig & robust

Wert-beständig

Gesundes Raumklima

Zukunftssicher

Grundriss Erdgeschoss

Grundriss Erdgeschoss

Grundriss Dachgeschoss

Grundriss Dachgeschoss

Weitere Impressionen