Haus Klose

Eigenschaften

Wohnfläche

  • KG
  • EG83,6 m²
  • OG68,3 m²
  • Gesamt151,9 m²

Gesamtfläche

  • KG82,7 m²
  • EG83,6 m²
  • OG68,3 m²
  • Gesamt234,6 m²
  • Kniestock
  • Dachneigung25°

Eine Stadtvilla lädt zum Verweilen ein.

Man kann sich gar nicht entscheiden, wo denn nun der Lieblingsplatz sein soll. In dem Licht durchfluteten Essbereich? Im Anbau mit der extra großen Fensterfront? Oder auf der Terrasse, die wie ein breiter Steg den Pool einfasst. Der farbig abgesetzte Anbau mit seinem Flachdach trennt sich äußerlich optisch vom Haus und wirkt als eigener Baukörper. Von innen gesehen hingegen vereint er sich mit der Terrasse und vergrößert den Wohnbereich.

Hinweis zur Flächenberechnung:
Alle dargestellten Flächen und Flächenberechnungen zu Wohnflächen (kurz WF) und Grundflächen (kurz GF) wurden gemäß der Verordnung zur Berechnung der Wohnfläche (Wohnflächenverordnung – Wo FlV) vom 25. November 2003 (BgBl. I S. 2346) ermittelt.

Immer an Ausstattung inklusive

Energie-effizient

Nachhaltig

gebaut

Langlebig & robust

Wert-beständig

Gesundes Raumklima

Zukunftssicher

Grundriss Erdgeschoss

Grundriss Erdgeschoss

Grundriss Obergeschoss

Grundriss Obergeschoss

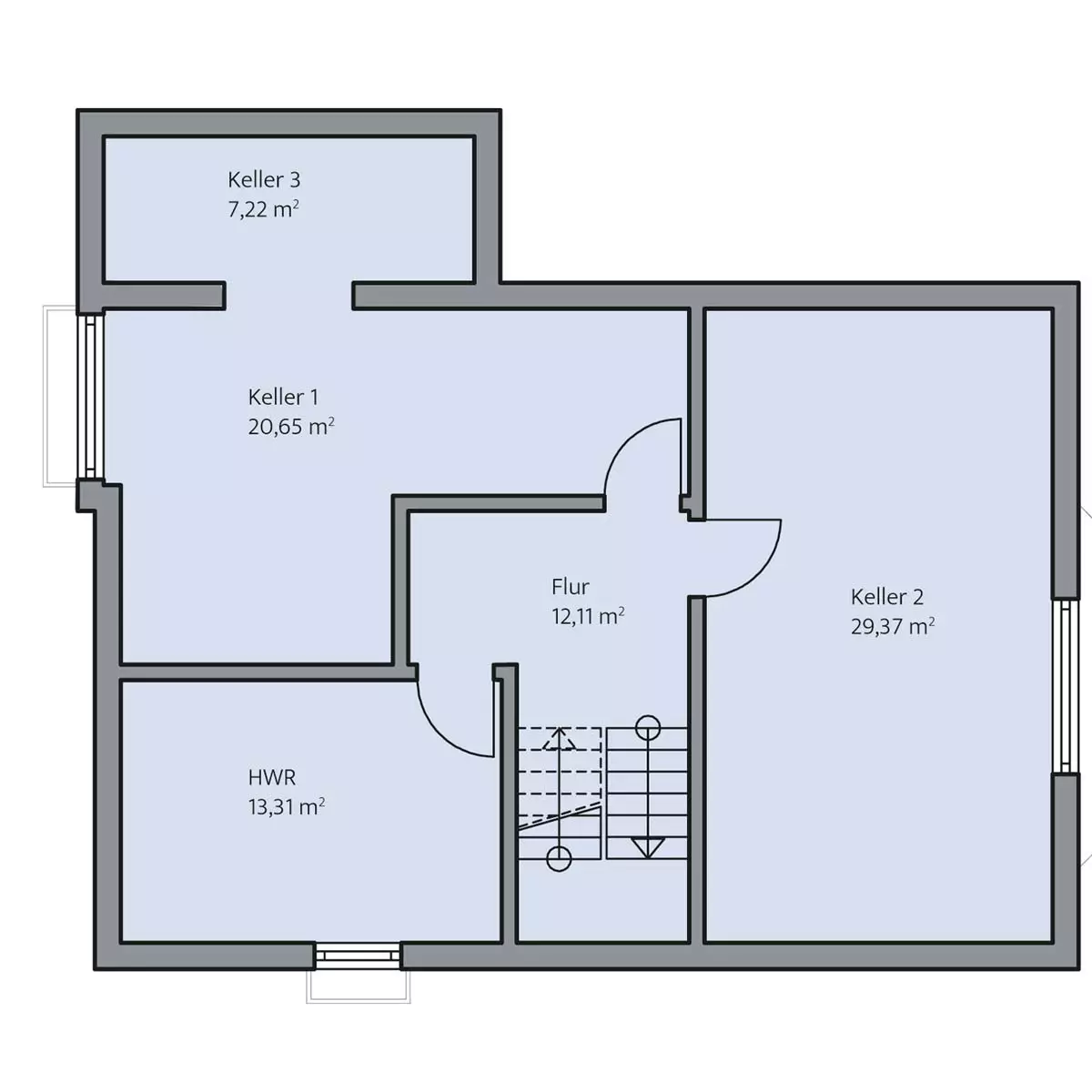
Grundriss Kellergeschoss

Grundriss Kellergeschoss

Weitere Impressionen