Haus Kramer

Eigenschaften

Wohnfläche

  • EG92,9 m²
  • DG68,5 m²
  • Gesamt161,4 m²
  • Außenmaß12,58 m

Gesamtfläche

  • EG93,7 m²
  • DG79,9 m²
  • Gesamt173,6 m²
  • Außenmaß9,46 m
  • Kniestock123 cm
  • Dachneigung45°

Ein Klassiker modern interpretiert.

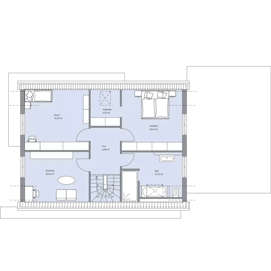
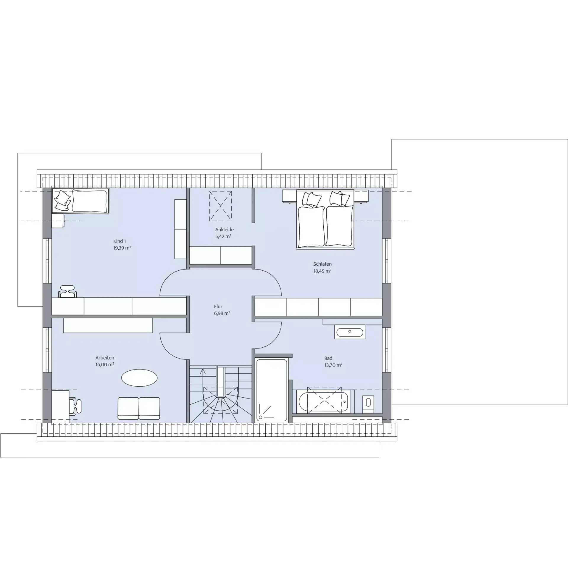
Zeitlosigkeit und zukunftsgerechtes Wohnen kombiniert das Einfamilienhaus Kramer von BAUMEISTER-HAUS auf rund 174 m² Grundfläche perfekt. Zur weißen Putzfassade wurden tiefrote Tonziegeln sowie anthrazitfarbene Fenster und Türen kombiniert. Ebenfalls in anthrazit gehalten ist das besonders modern-elegante Vordach. Von der Doppelgarage aus gelangt man trockenen Fußes in den Hauswirtschaftsraum des hell und freundlich gestalteten Erdgeschosses. Hier befinden sich auch das Gästezimmer mit angrenzendem Duschbad, der offene Wohn-/Essbereich sowie die mit Schiebetüren abtrennbare Küche. Im Dachgeschoss haben das Elternschlafzimmer mit begehbarer Ankleide, das Kinderzimmer, das Arbeitszimmer sowie ein Bad mit großzügigem Duschbereich und Badewanne ausreichend Platz.

Hinweis zur Flächenberechnung:
Alle dargestellten Flächen und Flächenberechnungen zu Wohnflächen (kurz WF) und Grundflächen (kurz GF) wurden gemäß der Verordnung zur Berechnung der Wohnfläche (Wohnflächenverordnung – Wo FlV) vom 25. November 2003 (BgBl. I S. 2346) ermittelt.

Immer an Ausstattung inklusive

Energie-effizient

Nachhaltig

gebaut

Langlebig & robust

Wert-beständig

Gesundes Raumklima

Zukunftssicher

Grundriss Erdgeschoss

Grundriss Erdgeschoss

Grundriss Dachgeschoss

Grundriss Dachgeschoss

Weitere Impressionen