Haus Lindner

Eigenschaften

Wohnfläche

  • KG
  • EG77,9 m²
  • OG76,8 m²
  • Gesamt154,7 m²
  • Außenmaß9,74 m

Gesamtfläche

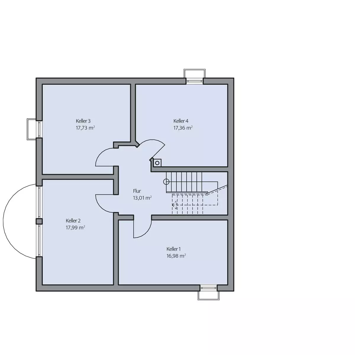
  • KG83,1 m²
  • EG77,9 m²
  • OG76,8 m²
  • Gesamt237,8 m²
  • Außenmaß10,49 m
  • Kniestock
  • Dachneigung27,5°

Mediterrane Wohnlichkeit mit modernen Akzenten.

Haus Lindner ist eine repräsentative Stadtvilla im mediterranen Stil, ideal für eine vierköpfige Familie. Das Haus kombiniert mediterrane Architektur und traditionelle Stilelemente mit zeitgemäßen Akzenten. Dazu gehören schlanke, elegante Fenster mit asymmetrischen Sprossen, große Glasflächen in Richtung Garten und ein modernes Eingangselement, das eine harmonische Verbindung mit dem traditionellen Walmdach mit seinen sichtbaren Pfettenköpfen und weißen Dachuntersichten eingeht. Innen bietet die Stadtvilla behagliches Wohnen der gediegenen Art: Der Wohnbereich und Essplatz sind zu einer knapp 38 m² großen Einheit zusammengefasst, die sich zum Garten hin über große Glasflächen öffnet. Die Küche ist klassisch als separater Raum konzipiert. Im Obergeschoss machen Fenster auf allen Hausseiten großzügiges Wohnen ohne Dachschrägen möglich. Zeitgemäße Details setzen dabei das Kinderbad und ein separater Elterntakt, der aus einem 14 m² großen Schlafraum mit Blick in den Garten, einer Ankleide und einem modernen Wohnbad inklusive Whirlpool besteht.

Hinweis zur Flächenberechnung:
Alle dargestellten Flächen und Flächenberechnungen zu Wohnflächen (kurz WF) und Grundflächen (kurz GF) wurden gemäß der Verordnung zur Berechnung der Wohnfläche (Wohnflächenverordnung – Wo FlV) vom 25. November 2003 (BgBl. I S. 2346) ermittelt.

Immer an Ausstattung inklusive

Energie-effizient

Nachhaltig

gebaut

Langlebig & robust

Wert-beständig

Gesundes Raumklima

Zukunftssicher

Grundriss Erdgeschoss

Grundriss Erdgeschoss

Grundriss Obergeschoss

Grundriss Obergeschoss

Grundriss Kellergeschoss

Grundriss Kellergeschoss

Weitere Impressionen