Haus Markus

Eigenschaften

Wohnfläche

  • EG110,7 m²
  • DG90,3 m²
  • Gesamt201,0 m²

Gesamtfläche

  • EG112,7 m²
  • DG96,5 m²
  • Gesamt209,2 m²
  • Kniestock138/188 cm
  • Dachneigung30°

Klinkerfassade und Putz in harmonischem Dialog.

Welch gelungenes Zusammenspiel aus zwei so unterschiedlichen Materialien. Wer hätte das gedacht? Die beiden Baukörper, so verschieden sie in Form und Material auch sein mögen, gehören doch unumstritten zusammen. Überzeugende Kontraste, die einmal mehr beweisen, dass traditionelle Klinkeroptik sehr wohl zeitgemäß und mit anderen modernen Elementen wunderbar zu kombinieren ist.

Hinweis zur Flächenberechnung:
Alle dargestellten Flächen und Flächenberechnungen zu Wohnflächen (kurz WF) und Grundflächen (kurz GF) wurden gemäß der Verordnung zur Berechnung der Wohnfläche (Wohnflächenverordnung – Wo FlV) vom 25. November 2003 (BgBl. I S. 2346) ermittelt.

Immer an Ausstattung inklusive

Energie-effizient

Nachhaltig

gebaut

Langlebig & robust

Wert-beständig

Gesundes Raumklima

Zukunftssicher

Grundriss Erdgeschoss

Grundriss Erdgeschoss

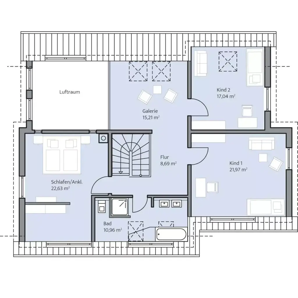
Grundriss Dachgeschoss

Grundriss Dachgeschoss

Weitere Impressionen