Haus Niedermayer

Eigenschaften

Wohnfläche

  • KG
  • EG77,0 m²
  • DG76,1 m²
  • Gesamt153,1 m²
  • Außenmaß11,75 m

Gesamtfläche

  • KG81,9 m²
  • EG77,0 m²
  • DG87,5 m²
  • Gesamt246,4 m²
  • Außenmaß9,50 m
  • Kniestock150 cm
  • Dachneigung30°

Ein Hoch auf die Gemütlichkeit.

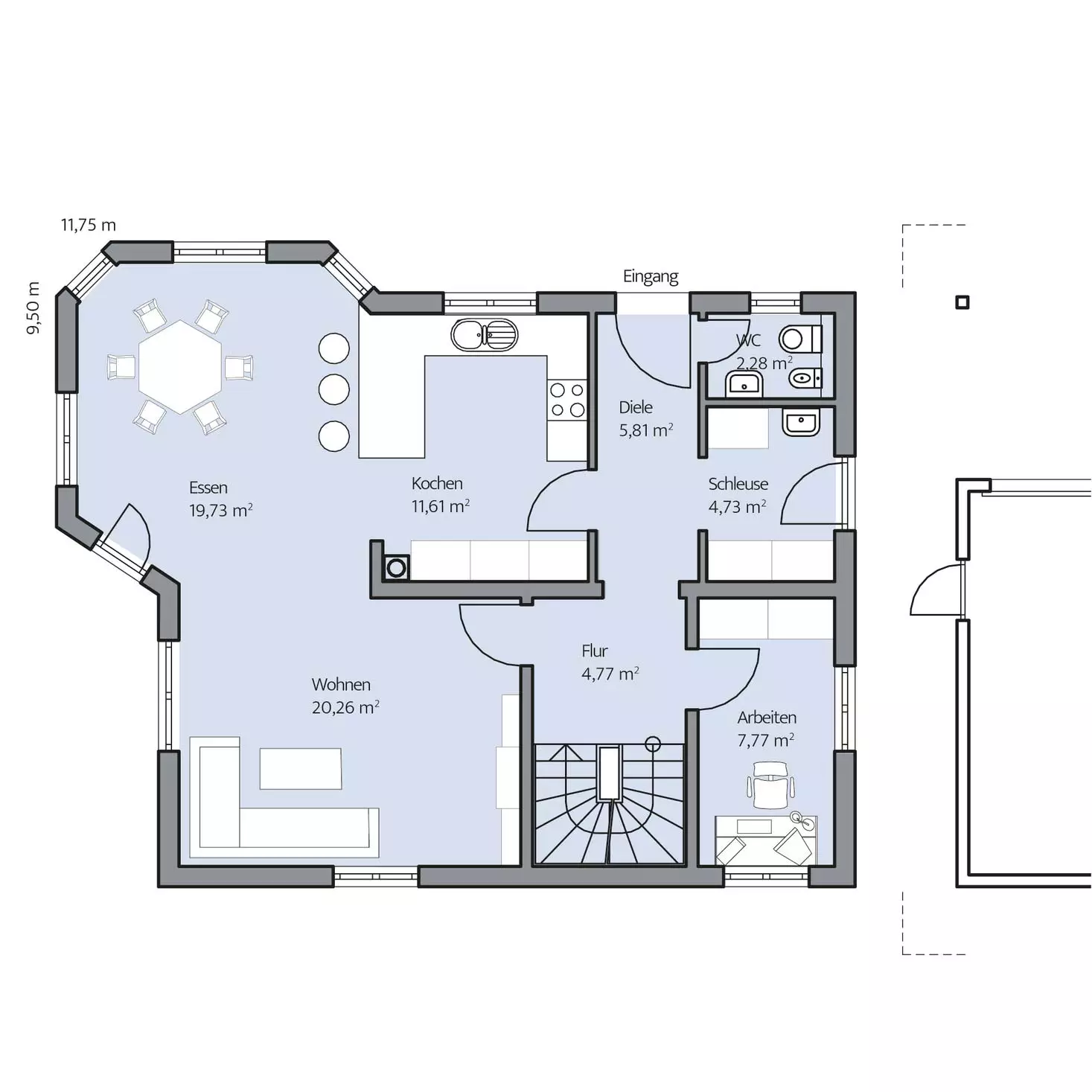
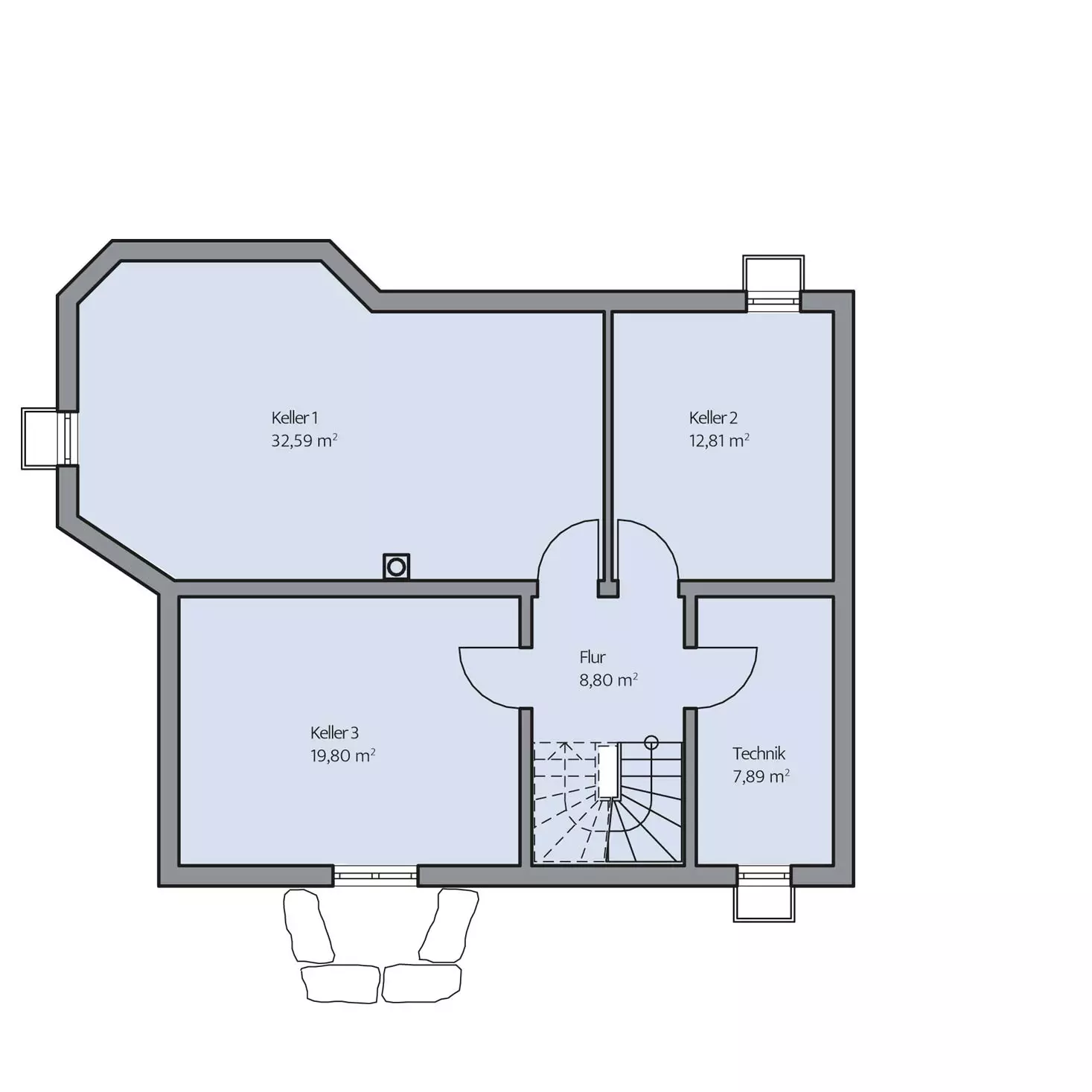
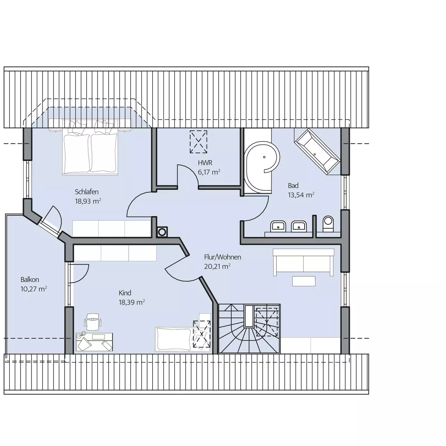
Ländliche, regionaltypische Behaglichkeit und gleichzeitig modern: Das ist das Haus der Familie Niedermeyer. Stilprägend sind die breiten Giebel mit flachem Satteldach und schützenden Dachüberständen, besonders auf der Terrassenseite. Und natürlich beeindrucken auch der weit vorspringende Achteck-Segmenterker und die Loggia mit rustikalem Holzgeländer. Vor den Sprossenfenstern mit Klappläden lässt es sich gemütlich verweilen und auch der fahrbare Untersatz hat in der großzügigen Doppelgarage mit überdachtem Stellplatz ausreichend Raum. Ein witterungsgeschützter Zugang zur Schmutzschleuse ermöglicht den unkomplizierten Wechsel von Arbeitskleidung ohne Schmutz ins Haus zu tragen. Auf den rund 153 m² Wohnfläche erstrecken sich das großzügige Wohnensemble aus Küche mit Frühstücksbar, Essplatz und Wohnbereich sowie ein Kaminofen mit beheizter Bank, die Diele, Nebenräume, Arbeitszimmer und das Gäste-WC. Im Keller befinden sich große Lagerräume, während das Dachgeschoss einen weiteren, ganz privaten und komfortablen Wohnbereich, das Schlafzimmer, einen Arbeitszimmer sowie ein weiteres Bad bietet.

Hinweis zur Flächenberechnung:
Alle dargestellten Flächen und Flächenberechnungen zu Wohnflächen (kurz WF) und Grundflächen (kurz GF) wurden gemäß der Verordnung zur Berechnung der Wohnfläche (Wohnflächenverordnung – Wo FlV) vom 25. November 2003 (BgBl. I S. 2346) ermittelt.

Immer an Ausstattung inklusive

Energie-effizient

Nachhaltig

gebaut

Langlebig & robust

Wert-beständig

Gesundes Raumklima

Zukunftssicher

Grundriss Erdgeschoss

Grundriss Erdgeschoss

Grundriss Dachgeschoss

Grundriss Dachgeschoss

Grundriss Kellergeschoss

Grundriss Kellergeschoss

Weitere Impressionen