Haus Ohlig

Eigenschaften

Wohnfläche

  • UG
  • EG95,5 m²
  • DG98,1 m²
  • Gesamt193,6 m²
  • Außenmaß13,64 m

Gesamtfläche

  • UG104,6 m²
  • EG104,7 m²
  • DG111,4 m²
  • Gesamt320,7 m²
  • Außenmaß9,74 m
  • Kniestock138 cm
  • Dachneigung22°

Bewusst anders, bewusst individuell.

Keine Frage, das Haus von Familie Ohlig fällt auf. Hebt es sich doch in so vielen Punkten vom Mainstream zeitgenössischer Architektur ab und bietet so seinen Bewohnern einen rundum passenden, individuellen Wohnkomfort. Dieses Unikat strahlt mit seinen minimalen Dachüberständen und der schlichten Linienführung schnörkellosen Purismus aus. Oben unterbrechen Fensterreihen mit schwarzen Putzflächen den Giebel, unten durchbrechen sie Symmetrieachsen und erzeugen so doch ein absolut stimmiges Bild. Darin fügt sich auch der Kontrast durch die Holzfunierverkleidung ein, den man so sicherlich nicht erwartet hätte. Auf der Süd- und Westseite des Hauses ermöglichen geschützte Freiflächen ein aktives Leben im Freien und bewirken zusätzlich eine im Sommer wohltuende Beschattung. Die Räume auf insgesamt rund 194 m² Wohnfläche sind in extrovertierte Kommunikationsbereiche und introvertierte Rückzugsbereiche unterteilt. Viel Platz und die offene Gestaltung laden zum Durchatmen ein. Und auch das über ein geradläufiges Faltwerk mit Geländer erschlossene Obergeschoss präsentiert sich als durchgeplante Ebene. Ein Elternschlafzimmer, drei gut geschnittene Kinderzimmer sowie zwei Bäder finden hier Platz.

Hinweis zur Flächenberechnung:
Alle dargestellten Flächen und Flächenberechnungen zu Wohnflächen (kurz WF) und Grundflächen (kurz GF) wurden gemäß der Verordnung zur Berechnung der Wohnfläche (Wohnflächenverordnung – Wo FlV) vom 25. November 2003 (BgBl. I S. 2346) ermittelt.

Immer an Ausstattung inklusive

Energie-effizient

Nachhaltig

gebaut

Langlebig & robust

Wert-beständig

Gesundes Raumklima

Zukunftssicher

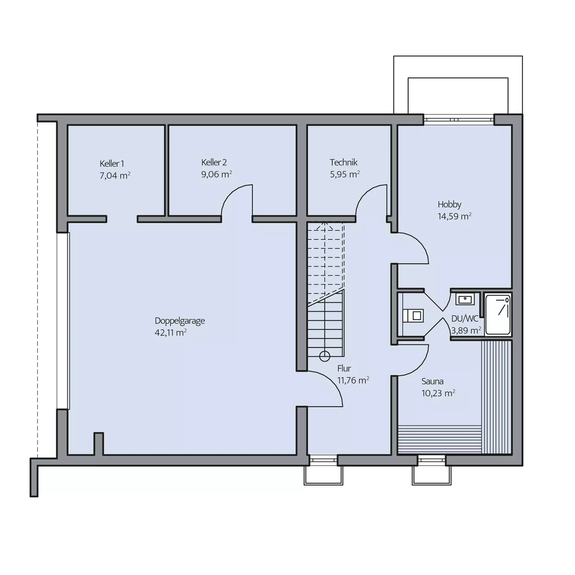
Grundriss Untergeschoss

Grundriss Untergeschoss

Grundriss Erdgeschoss

Grundriss Erdgeschoss

Grundriss Dachgeschoss

Grundriss Dachgeschoss

Weitere Impressionen