Haus Opitz

Eigenschaften

Wohnfläche

  • EG109,4 m²
  • DG39,8 m²
  • Gesamt149,2 m²

Gesamtfläche

  • EG109,5 m²
  • DG53,0 m²
  • Gesamt162,5 m²
  • Kniestock0/2.875 cm
  • Dachneigung30°/32,5°

Hochmoderne Split-Level-Bauweise.

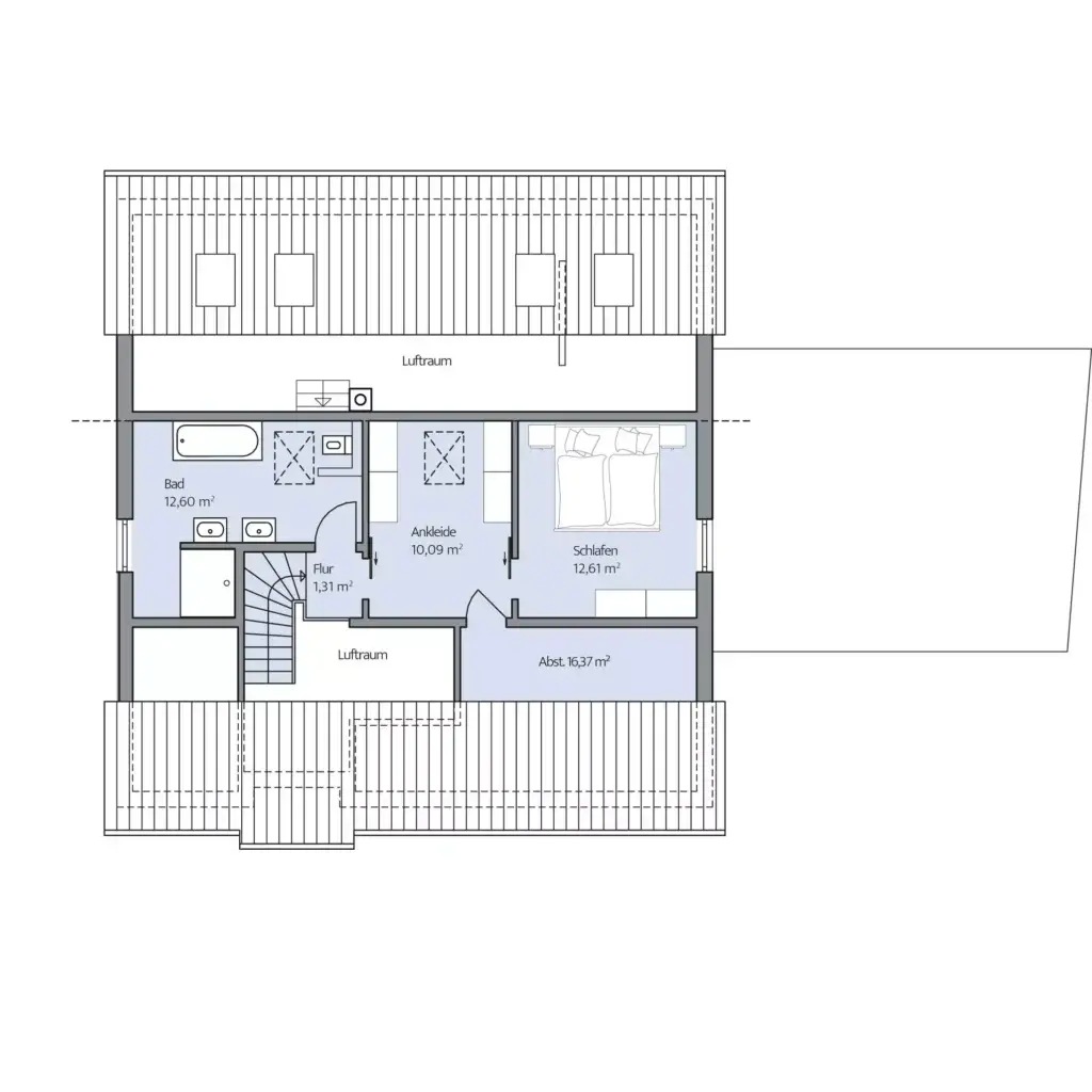
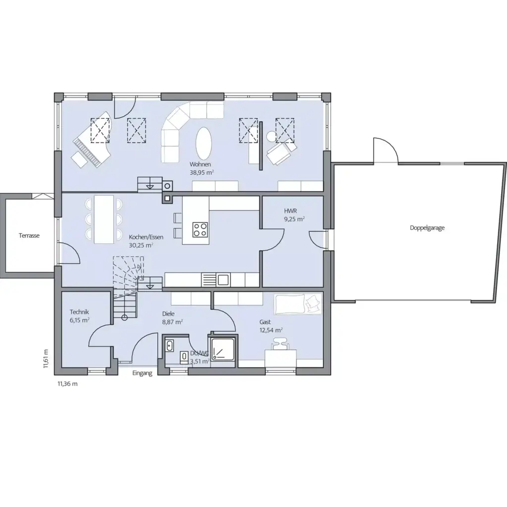
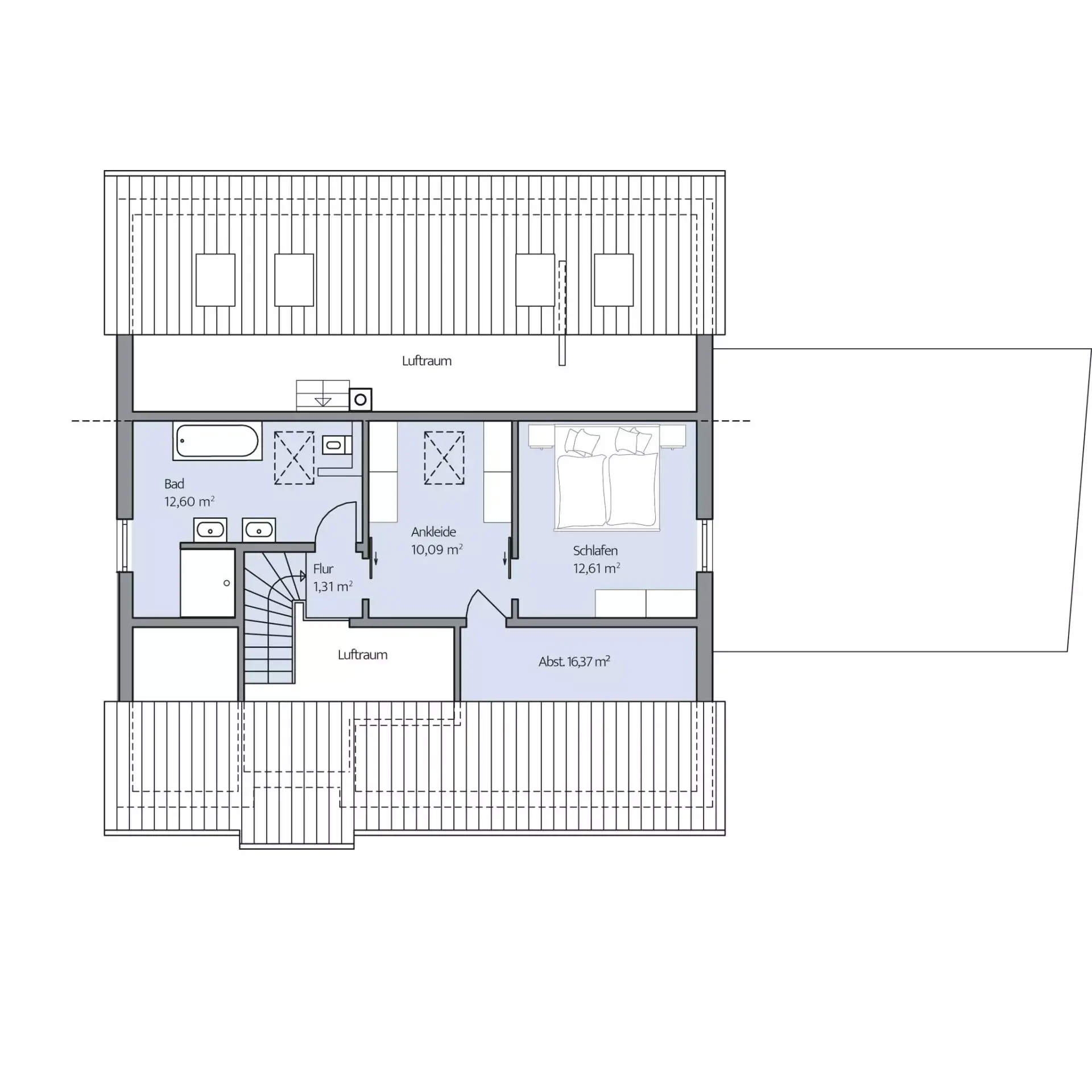
Das klassische Satteldachhaus der Familie Opitz überzeugt auf einer Grundfläche von rund 12 x 12 m mit einem eleganten Farbkonzept und einer zeitgemäße Formgebung. Die Giebelseiten zieren französische Balkone sowie moderne Lichtbänder im Erdgeschoss, an der Westseite des Hauses befindet sich eine Terrasse mit zweiflügeliger Glastür. Die Hanglage des Hauses wurde durchdacht für eine Split-Level-Bauweise genutzt. Das Erdgeschoss überrascht direkt auf den ersten Blick mit einer angenehmen Luftigkeit. Hier finden eine Diele, der an die 30 m² große Küche angegliederte Essbereich, ein Arbeits- oder Gästezimmer mit Dusch-WC, der Technikraum sowie – hochmodern drei Stufen tiefer gelegen – eine 39 m² große Wohnfläche mit Sitz- und Lesenische sowie Kaminofen ihren Platz. Eine bis unter das Dach offene Decke sorgt für Weite, der direkte Zugang zur Terrasse ebenso. Im Obergeschoss befinden sich in gemütlicher Atmosphäre an die Galerie angegliedert ein Schlafzimmer, eine große Ankleide sowie ein komfortables Badezimmer.

Hinweis zur Flächenberechnung:
Alle dargestellten Flächen und Flächenberechnungen zu Wohnflächen (kurz WF) und Grundflächen (kurz GF) wurden gemäß der Verordnung zur Berechnung der Wohnfläche (Wohnflächenverordnung – Wo FlV) vom 25. November 2003 (BgBl. I S. 2346) ermittelt.

Immer an Ausstattung inklusive

Energie-effizient

Nachhaltig

gebaut

Langlebig & robust

Wert-beständig

Gesundes Raumklima

Zukunftssicher

Grundriss Erdgeschoss

Grundriss Erdgeschoss

Grundriss Dachgeschoss

Grundriss Dachgeschoss

Weitere Impressionen