Haus Overrath

Eigenschaften

Wohnfläche

  • EG86,3 m²
  • OG75,4 m²
  • Gesamt161,7 m²
  • Außenmaß11,11 m

Gesamtfläche

  • EG87,4 m²
  • OG75,4 m²
  • Gesamt162,8 m²
  • Außenmaß9,99 m
  • Kniestock
  • Dachneigung25°

Stadtvilla mit modernen Details.

Mit seinem zweigeschossigen, nahezu quadratischen Baukörper, flachem Zeltdach und bodentiefen Glasflächen im Obergeschoss weist Haus Overrath die wichtigsten stilprägenden Merkmale einer Stadtvilla auf. Hinzu kommen moderne Details wie ein kubischer, farblich abgesetzter Anbau auf der Gartenseite, Fensterrahmen in Anthrazit und schlanke Lichtbänder auf der Eingangsseite, die in Treppenhaus und Obergeschoss-Flur für eine gute Belichtung sorgen. Zu den weiteren Highlights gehören das verglaste Terrassendach und der Pool im Garten. Innen profitieren die Hausbewohner von der zweigeschossigen Bauweise, die trotz der kompakten Außenmaße des Grundbaukörpers (11,11 x 9,99 m) die Planung großzügiger, gut belichteter Individualräume möglich macht. Dank Abstellkammern, Fahrrad- und Geräteschuppen, einem Wirtschaftsraum und dem ausgebauten Spitzboden kann man auf den Keller gut verzichten. Ein weiteres Plus: die gut gedämmte Außenhülle, die zusammen mit einer Gas-Brennwerttherme spielend die Vorgaben der EnEV erfüllt.

Hinweis zur Flächenberechnung:
Alle dargestellten Flächen und Flächenberechnungen zu Wohnflächen (kurz WF) und Grundflächen (kurz GF) wurden gemäß der Verordnung zur Berechnung der Wohnfläche (Wohnflächenverordnung – Wo FlV) vom 25. November 2003 (BgBl. I S. 2346) ermittelt.

Immer an Ausstattung inklusive

Energie-effizient

Nachhaltig

gebaut

Langlebig & robust

Wert-beständig

Gesundes Raumklima

Zukunftssicher

Grundriss Erdgeschoss

Grundriss Erdgeschoss

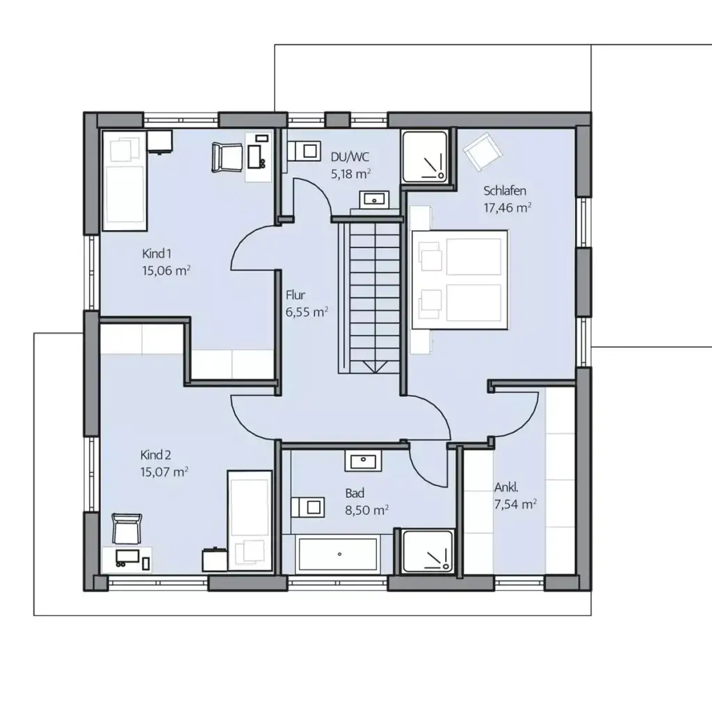
Grundriss Obergeschoss

Grundriss Obergeschoss

Weitere Impressionen