Haus Philipp

Eigenschaften

Wohnfläche

  • KG
  • EG93,9 m²
  • DG81,6 m²
  • Gesamt175,5 m²
  • Außenmaß8,86 m

Gesamtfläche

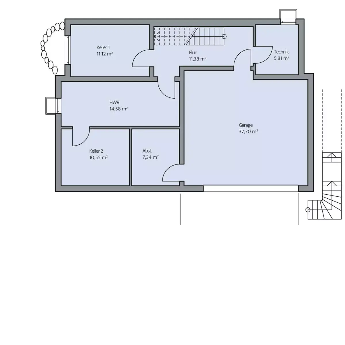
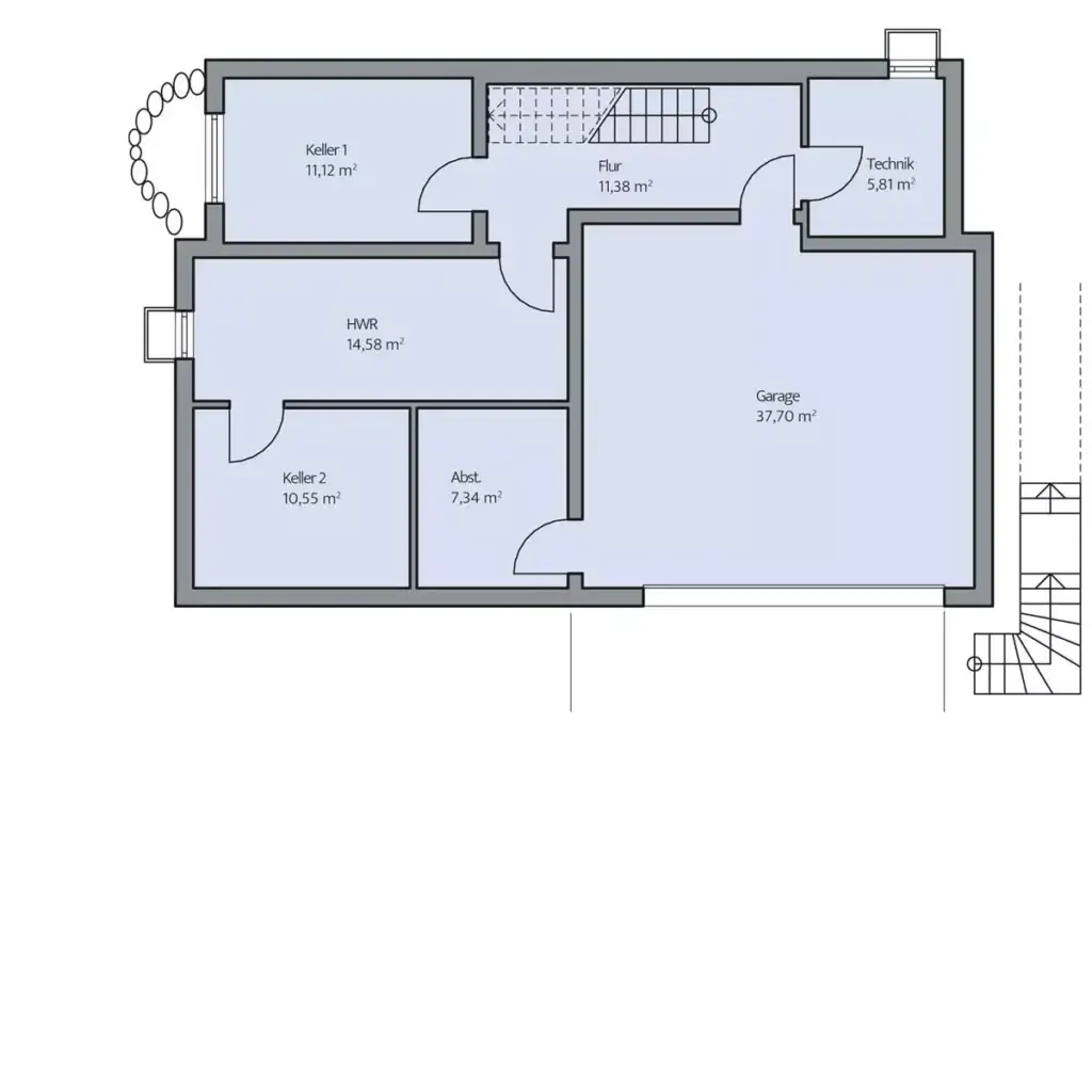
  • KG98,5 m²
  • EG93,9 m²
  • DG81,6 m²
  • Gesamt274,0 m²
  • Außenmaß13,36 m
  • Kniestock200 cm
  • Dachneigung21°

Das perfekte Domizil für zwei Personen.

Mit seinem schlankem Baukörper und zwei Vollgeschossen eignet sich Haus Philipp zum Beispiel für eine Lückenbebauung im urbanen Bereich oder für Hanggrundstücke mit Süderschließung. Für zwei Personen geplant, hält das Haus einen weiträumigen Wohnbereich mit Ausblick und jede Menge Komfort bereit. Dem Hauseingang gegenüber führt eine geradläufige Treppe hinauf ins Obergeschoss, links geht es durch einen offenen Eingang in das ca. 67,5 m² große Wohnensemble. Die Funktionsbereiche staffeln sich längs des Baukörpers, dessen Blickachsen einen weiten, luftigen Raumeindruck vermitteln. Wie es dem Geschmack der Zeit entspricht, ist der Essplatz als kommunikatives Zentrum der Diele zugeordnet, so dass hier alle Wege im Haus zusammenlaufen. Die Sitzecke liegt in einer gemütlichen Nische mit Aussicht und hat einen direkten Zugang zum Freisitz neben dem Haus. Das Obergeschoss ist für ein allein lebendes Paar ausgelegt. Bei Außenmaßen von 8,86 x 13,36 m und einer zweigeschossigen Bauweise gibt es auf dieser Ebene also reichlich Spielraum für komfortable Lösungen und praktische Reserveräume.

Hinweis zur Flächenberechnung:
Alle dargestellten Flächen und Flächenberechnungen zu Wohnflächen (kurz WF) und Grundflächen (kurz GF) wurden gemäß der Verordnung zur Berechnung der Wohnfläche (Wohnflächenverordnung – Wo FlV) vom 25. November 2003 (BgBl. I S. 2346) ermittelt.

Immer an Ausstattung inklusive

Energie-effizient

Nachhaltig

gebaut

Langlebig & robust

Wert-beständig

Gesundes Raumklima

Zukunftssicher

Grundriss Erdgeschoss

Grundriss Erdgeschoss

Grundriss Dachgeschoss

Grundriss Dachgeschoss

Grundriss Kellergeschoss

Grundriss Kellergeschoss

Weitere Impressionen