Haus Quirin

Eigenschaften

Wohnfläche

  • KG
  • EG80,9 m²
  • OG85,5 m²
  • Gesamt166,4 m²
  • Außenmaß10,02 m

Gesamtfläche

  • KG43,7 m²
  • EG80,9 m²
  • OG85,5 m²
  • Gesamt210,1 m²
  • Außenmaß10,82 m
  • Kniestock
  • Dachneigung22°

Die stilvolle Stadtvilla mit geringem Grundstücksbedarf.

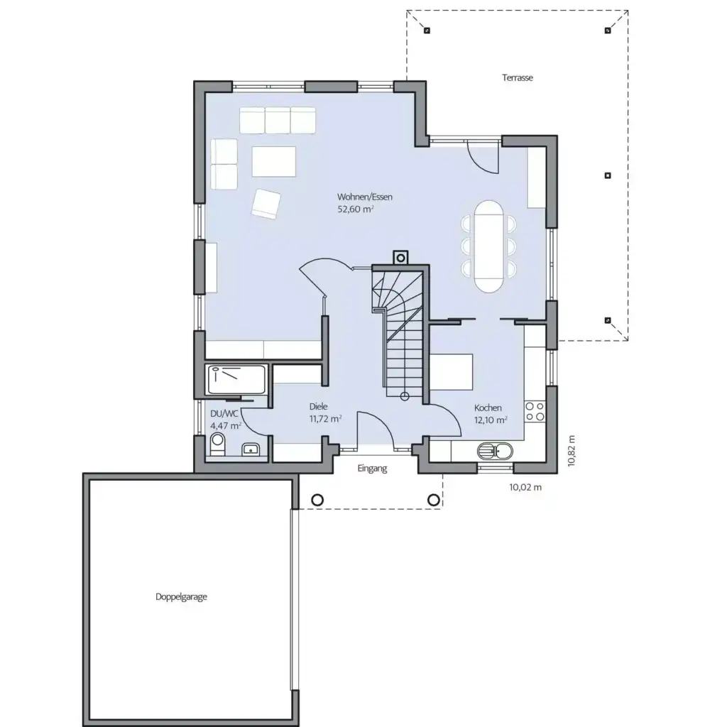
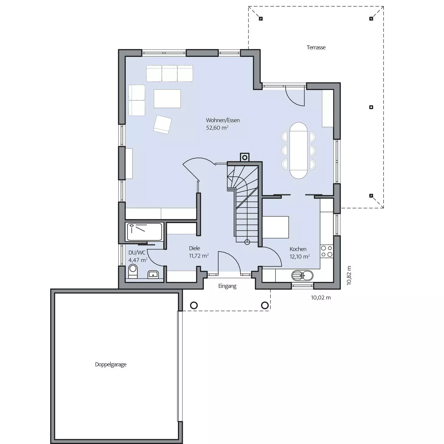
Der rechteckige Grundriss und die zwei Vollgeschosse machen das Haus der Familie Quirin zum wahren Platzwunder. Und das abgerundet durch südländischen Charme. Das erdige Pastellgelb der Fassade, das flache Walmdach, Sprossenfenster und Säulen sowie die Vordächer am Eingang bringen mediterranen Stil in jedes Neubaugebiet. Eine Garage in passenden Farben ergänzt das ansprechende Bild. Harmonisch, warm und großzügig präsentiert sich auch der Innenbereich auf insgesamt rund 167 m² Wohnfläche. Der Wohnbereich setzt sich aus einer repräsentativen Sitzecke, viel Stellfläche für das geschmackvolle Mobiliar und einem verputzten Kaminofen zusammen. Der Essplatz liegt in einer Verbindungsachse zwischen Küche und Terrasse. Schiebeglastüren zur Küche verhindern die Ausbreitung von Gerüchen, trennen den Bereich aber trotzdem nicht komplett vom Wohnraum. Abgerundet wird das Erdgeschoss durch eine repräsentative Diele, ein Gäste-WC mit Dusche und einer gut begehbaren Treppe ins Obergeschoss. Dort befinden sich der Schlafraum mit integrierter Ankleide, zwei Bäder sowie das Kinder- oder Arbeitszimmer. Eine Sole-Wasser-Wärmepumpe, eine Lüftung mit Wärmerückgewinnung sowie die exzellent gedämmte Gebäudehülle sorgen für kontrollierte Heizkosten.

Hinweis zur Flächenberechnung:
Alle dargestellten Flächen und Flächenberechnungen zu Wohnflächen (kurz WF) und Grundflächen (kurz GF) wurden gemäß der Verordnung zur Berechnung der Wohnfläche (Wohnflächenverordnung – Wo FlV) vom 25. November 2003 (BgBl. I S. 2346) ermittelt.

Immer an Ausstattung inklusive

Energie-effizient

Nachhaltig

gebaut

Langlebig & robust

Wert-beständig

Gesundes Raumklima

Zukunftssicher

Grundriss Erdgeschoss

Grundriss Erdgeschoss

Grundriss Obergeschoss

Grundriss Obergeschoss

Grundriss Kellergeschoss

Grundriss Kellergeschoss

Weitere Impressionen