Haus Schwarz

Eigenschaften

Wohnfläche

  • KG
  • EG73,6 m²
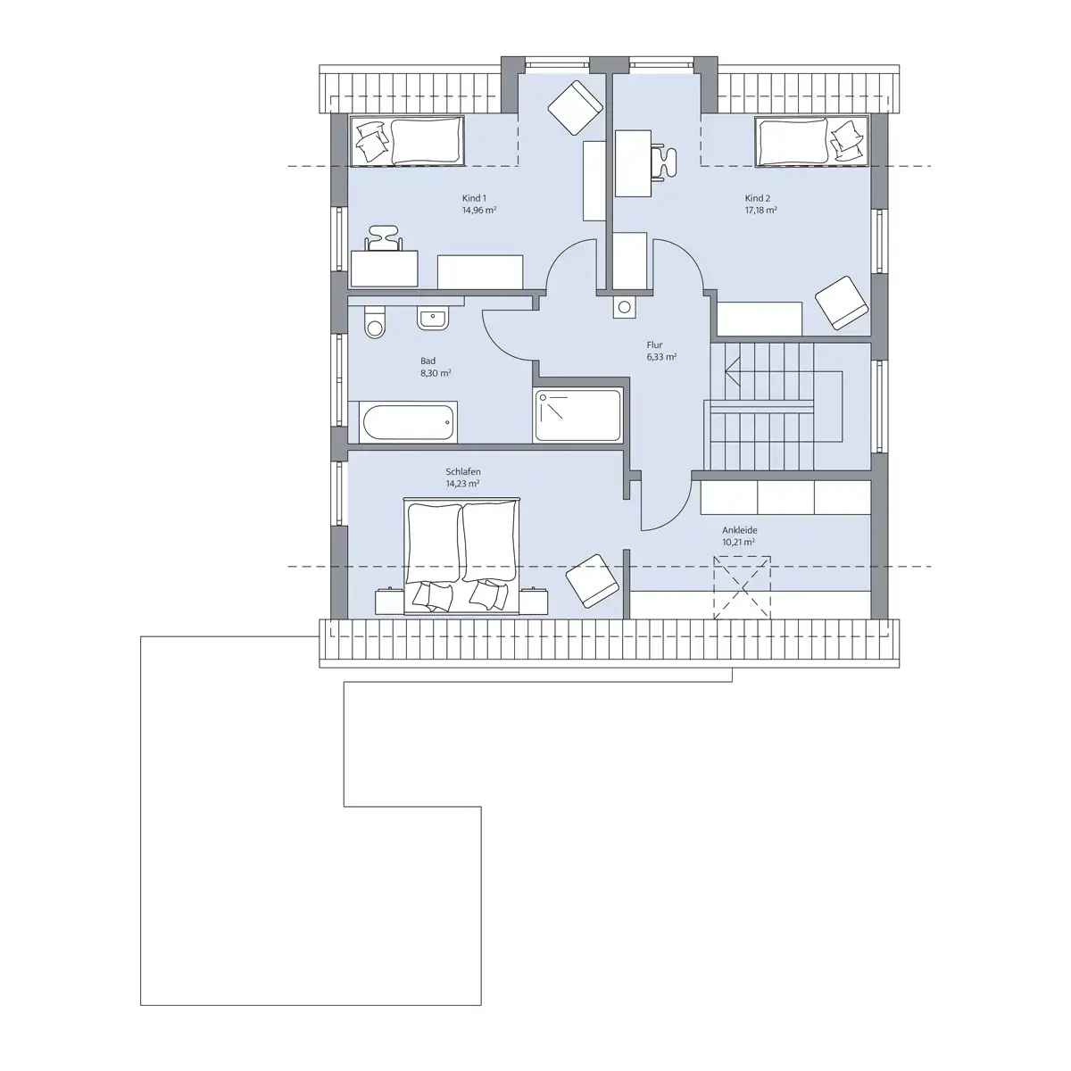
  • OG64,3 m²
  • Gesamt137,9 m²
  • Außenmaß9,82 m

Gesamtfläche

  • KG80,0 m²
  • EG73,6 m²
  • OG71,2 m²
  • Gesamt224,8 m²
  • Außenmaß10,22 m
  • Kniestock122 cm
  • Dachneigung40°

Klassische Eleganz trifft moderne Architektur.

Haus Schwarz, ein klassisch-modernes Einfamilienhaus, bietet eine perfekte Mischung aus traditionellem Charme und zeitgemäßem Wohnkomfort auf einer Wohnfläche von rund 138 m² über zwei Stockwerke. Mit einer Fassade aus dunklem Klinker und hellem Putz sowie einem Satteldach und symmetrisch angeordneten, hohen Fenstern verbindet es architektonische Prägnanz mit ästhetischer Ausstrahlung. Im Erdgeschoss befindet sich der offene Wohn-/Essbereich von über 34 m², der das Zentrum des familiären Lebens darstellt. Große Fensterfronten schaffen eine Verbindung zur großzügigen Terrasse und zum Garten. Eine offene Küche, ein separates Arbeitszimmer und ein Gäste-WC komplettieren das Raumangebot. Das Obergeschoss bietet ein großzügiges Elternschlafzimmer mit Ankleide, zwei Kinderzimmer und ein modern ausgestattetes Bad. Eine Stahlbetontreppe verbindet beide Ebenen. Haus Schwarz ist als Effizienzhaus mit Erdwärmepumpe und Fußbodenheizung ausgestattet. Die 3-fach-Verglasung der Fenster unterstützt die Energieeffizienz. Im Außenbereich lädt ein Garten mit Terrasse, Pergola und modernem Swimmingpool zur Erholung ein. Eine Garage mit angrenzendem Abstellraum rundet das Angebot ab. Das Haus der Familie Schwarz steht für einen Lebensraum im Einklang mit Natur und Komfort und bietet einen idealen Rahmen für das Familienleben.

Hinweis zur Flächenberechnung:
Alle dargestellten Flächen und Flächenberechnungen zu Wohnflächen (kurz WF) und Grundflächen (kurz GF) wurden gemäß der Verordnung zur Berechnung der Wohnfläche (Wohnflächenverordnung – Wo FlV) vom 25. November 2003 (BgBl. I S. 2346) ermittelt.

Immer an Ausstattung inklusive

Energie-effizient

Nachhaltig

gebaut

Langlebig & robust

Wert-beständig

Gesundes Raumklima

Zukunftssicher

Grundriss Erdgeschoss

Grundriss Erdgeschoss

Grundriss Kellergeschoss

Grundriss Kellergeschoss

Grundriss Dachgeschoss

Grundriss Dachgeschoss

Weitere Impressionen