Haus Tengelmann

Eigenschaften

Wohnfläche

  • KG
  • EG95,5 m²
  • SPG61,7 m²
  • Gesamt157,2 m²
  • Außenmaß11,61 m

Gesamtfläche

  • KG99,5 m²
  • EG95,5 m²
  • SPG80,5 m²
  • Gesamt275,5 m²
  • Außenmaß12,37 m
  • Kniestock0 cm
  • Dachneigung42°

Der Raumwunder-Bungalow für Zwei.

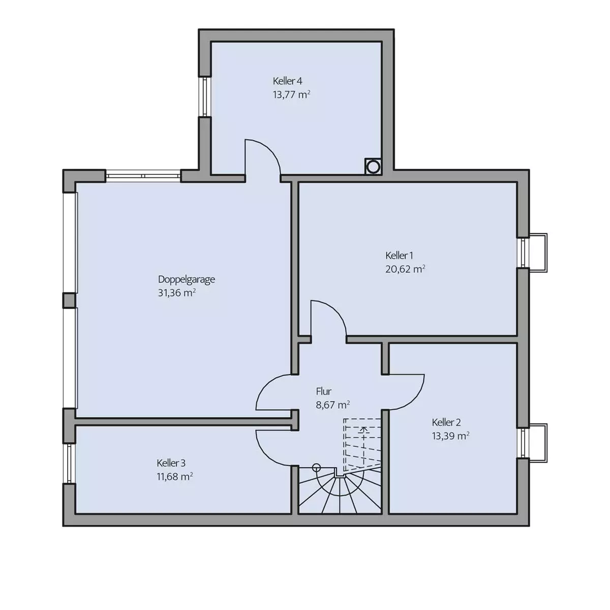
Der unterkellerte Bungalow der Familie Tengelmann bietet seinen Bewohnern mit 156 m² Wohnfläche ein großzügiges Wohnambiente, zu dem auch eine ins Untergeschoss integrierte Doppelgarage sowie ein Haustechnikraum gehören. Durch die Hanglage ist das Untergeschoss auf einer Seite ebenerdig. Die hellgelbe Fassade und das dunkelgraue Dach verleihen dem Haus ein elegantes Aussehen. Auf der Gartenseite wird das Haus durch einen Anbau erweitert: Links spart das Dach die entstandene Nische aus, die andere ist voll überdacht und dient als windgeschützte Terrasse. Bodentiefe Fenster und Fenstertüren sorgen für viel Licht, aber ohne viele Einblicke zu gewähren. Das großzügige Erdgeschoss wird geprägt durch das helle Wohnzimmer, einer Küche mit Schiebetür, Badezimmer, Gäste-WC, Schlafzimmer sowie ein Arbeits- oder Gästezimmer. Der Zugang zur Terrasse ist sowohl vom Wohnzimmer als auch von der Küche aus möglich. Weitere Raumreserven stehen in den Kellerräumen zur Verfügung und wären darüber hinaus durch einen Ausbau des Spitzbodens noch erweiterungsfähig. So könnte aus dem Paradies für zwei Personen auch ein Heim für eine größere Familie werden. Für ein behagliches Wohnklima sorgt die durch eine Sole-Wasser-Wärmepumpe gespeiste Fußbodenheizung.

Hinweis zur Flächenberechnung:
Alle dargestellten Flächen und Flächenberechnungen zu Wohnflächen (kurz WF) und Grundflächen (kurz GF) wurden gemäß der Verordnung zur Berechnung der Wohnfläche (Wohnflächenverordnung – Wo FlV) vom 25. November 2003 (BgBl. I S. 2346) ermittelt.

Immer an Ausstattung inklusive

Energie-effizient

Nachhaltig

gebaut

Langlebig & robust

Wert-beständig

Gesundes Raumklima

Zukunftssicher

Grundriss Erdgeschoss

Grundriss Erdgeschoss

Grundriss Spitzboden

Grundriss Spitzboden

Grundriss Kellergeschoss

Grundriss Kellergeschoss

Weitere Impressionen