Haus Thiel

Eigenschaften

Wohnfläche

  • UG38,9 m²
  • EG77,3 m²
  • DG52,3 m²
  • Gesamt168,5 m²
  • Außenmaß10,11 m

Gesamtfläche

  • UG67,5 m²
  • EG87,0 m²
  • DG62,4 m²
  • Gesamt216,9 m²
  • Außenmaß9,11 m
  • Kniestock113 cm
  • Dachneigung38°

Kräftige Farbakzente und zeitgemäßes Wohnkonzept.

Auf den rund 169 m² Wohnfläche im Innenbereich platzieren sich im Erdgeschoss wohlgeordnet und durchdacht konzipiert eine Garderobennische, ein Arbeits- oder Gästezimmer, ein Gäste-WC, eine Speisekammer sowie ein offener Wohn-, Ess- und Küchenbereich. Das offene Wohnen ist hier möglich ohne die Privatsphäre einzubüßen. Das Obergeschoss mit Privatbad bietet ebenfalls viel Raum für bis zu vier Personen.

Hinweis zur Flächenberechnung:
Alle dargestellten Flächen und Flächenberechnungen zu Wohnflächen (kurz WF) und Grundflächen (kurz GF) wurden gemäß der Verordnung zur Berechnung der Wohnfläche (Wohnflächenverordnung – Wo FlV) vom 25. November 2003 (BgBl. I S. 2346) ermittelt.

Immer an Ausstattung inklusive

Energie-effizient

Nachhaltig

gebaut

Langlebig & robust

Wert-beständig

Gesundes Raumklima

Zukunftssicher

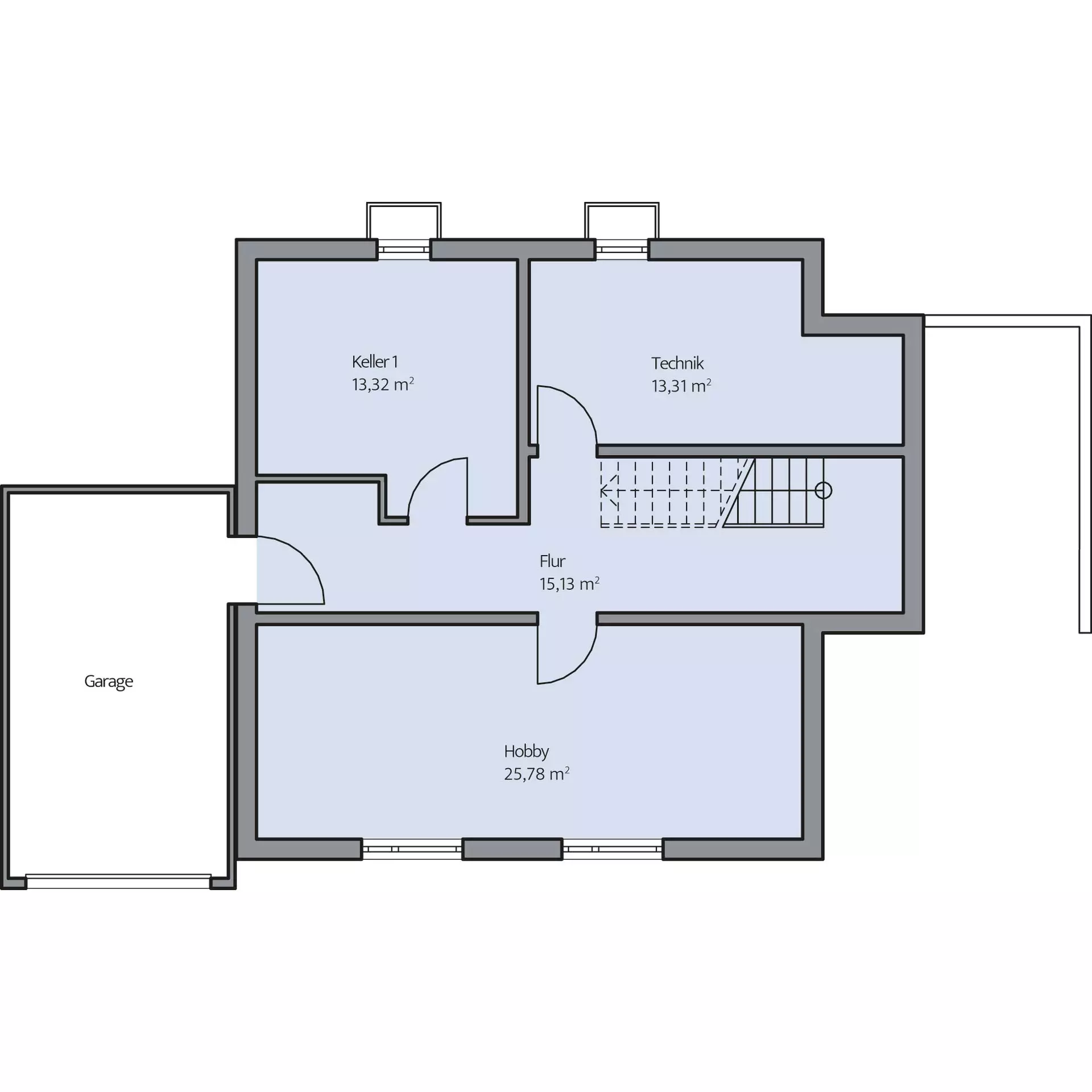
Grundriss Untergeschoss

Grundriss Untergeschoss

Grundriss Erdgeschoss

Grundriss Erdgeschoss

Grundriss Dachgeschoss

Grundriss Dachgeschoss

Weitere Impressionen