Haus Töpfer

Eigenschaften

Wohnfläche

  • KG
  • EG136,1 m²
  • OG122,0 m²
  • Gesamt258,1 m²
  • Außenmaß13,69 m

Gesamtfläche

  • KG135,9 m²
  • EG136,1 m²
  • OG122,0 m²
  • Gesamt394,0 m²
  • Außenmaß12,69 m
  • Kniestock
  • Dachneigung22°

Das Traumhaus für alle Familienmitglieder.

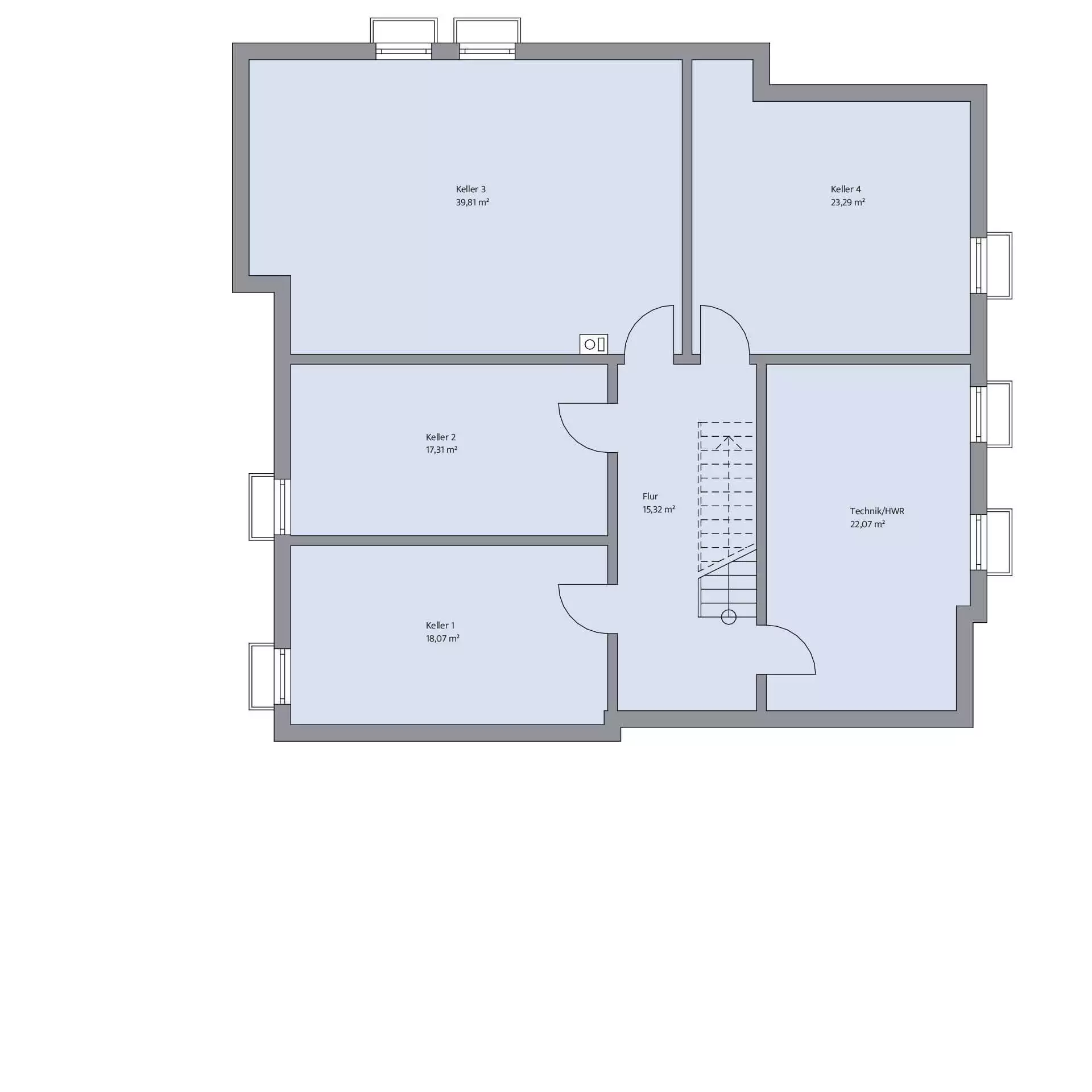
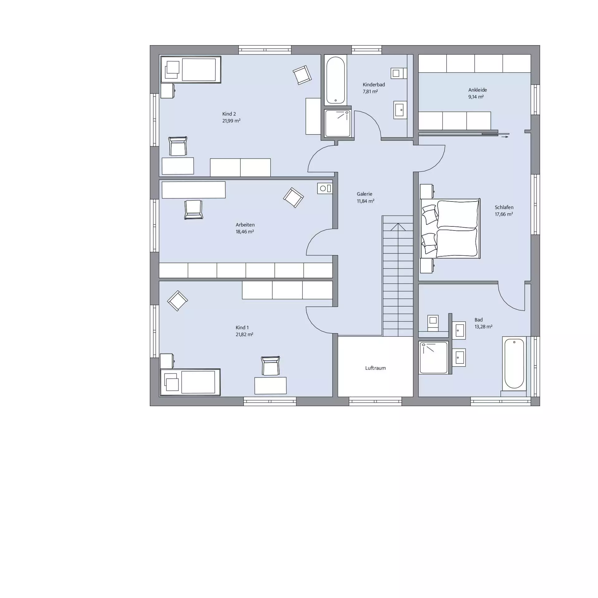
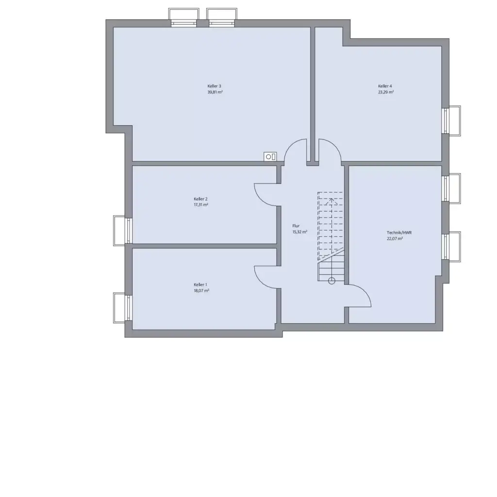
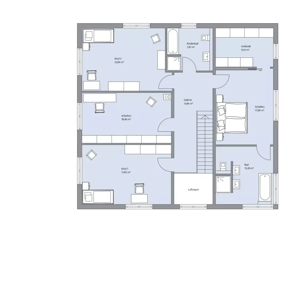
Mit stolzen 258 m² Wohnfläche und zusätzlich noch einem Kellergeschoss hat Haus Töpfer wahrlich Einiges zu bieten. Die moderne Stadtvilla mit der geschmackvoll-schlichten Fassade nutzt den Platz optimal aus und wird so zum absoluten Traumhaus. Unter dem Wohnbereich befinden sich hier vier große Kellerräume. Wovon einer als separates Spielzimmer und ein anderer als privates Fitnessstudio genutzt wird. Hell, freundlich und stilvoll ist das 136 m² umfassende Erdgeschoss des luxuriösen Einfamilienhauses. Eines seiner großen Highlights ist sicherlich die weitläufige Küche, die offen in den 67 m² großen Wohn-/Essbereich übergeht. Der Holzboden und die Einrichtung im skandinavischen Stil lassen die Räume trotz ihrer großen Maße rundum gemütlich wirken. Weiterhin zum Erdgeschoss gehören ein Gästezimmer, ein Garderobenbereich und ein Gäste-WC. Im 122 m² großen Obergeschoss erwarten die Familie zwei jeweils rund 22 m² große Kinderzimmer mit eigenem Kinderbad sowie ein Elternbereich mit Schlafzimmer, Ankleide und Privatbad. Ein Arbeitszimmer rundet dieses Traumhaus ab.

Hinweis zur Flächenberechnung:
Alle dargestellten Flächen und Flächenberechnungen zu Wohnflächen (kurz WF) und Grundflächen (kurz GF) wurden gemäß der Verordnung zur Berechnung der Wohnfläche (Wohnflächenverordnung – Wo FlV) vom 25. November 2003 (BgBl. I S. 2346) ermittelt.

Immer an Ausstattung inklusive

Energie-effizient

Nachhaltig

gebaut

Langlebig & robust

Wert-beständig

Gesundes Raumklima

Zukunftssicher

Grundriss Kellergeschoss

Grundriss Kellergeschoss

Grundriss Erdgeschoss

Grundriss Erdgeschoss

Grundriss Obergeschoss

Grundriss Obergeschoss

Weitere Impressionen