Haus Ulrich

Eigenschaften

Wohnfläche

  • EG77,3 m²
  • DG64,1 m²
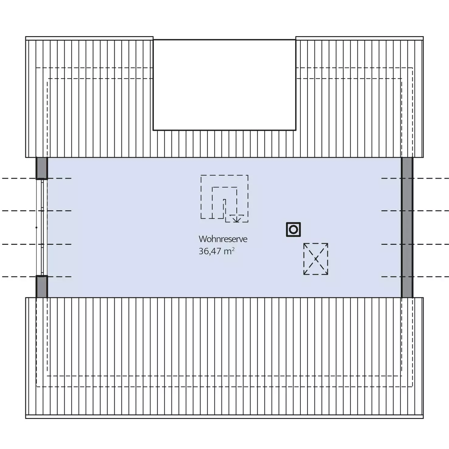
  • SPG17,0 m²
  • Gesamt158,4 m²
  • Außenmaß10,44 m

Gesamtfläche

  • EG79,5 m²
  • DG71,6 m²
  • SPG36,5 m²
  • Gesamt187,6 m²
  • Außenmaß9,62 m
  • Kniestock65 cm
  • Dachneigung48°

Geräumiger und außergewöhnlicher Klassiker.

Das Haus der Familie Ulrich ist die optimale Lösung für großen Platzbedarf auf wenig Baufläche, denn auf rund 10 x 11 m erstreckt sich hier ein absolutes Raumwunder, das sich später für komfortables Wohnen auf einer Ebene eignet. Mit seiner geradlinigen Gestaltung, dem steilen Hausgiebel mit „Uhlenflug“ und der eleganten Farbgebung wurde das klassische Satteldachhaus in ein individuelles Unikat verwandelt. Auch der Dacherker, der sich über zwei Stockwerke erstreckt, bricht mit dem traditionellen Bild und vermittelt einen Eindruck der Größe, die das Hausinnere bietet. Mittelpunkt des Hauses ist der großzügig offene Bereich im Erdgeschoss, der Küche mit durchdacht angeschlossenem Hauswirtschaftsraum, Essecke und Wohnzimmer umschließt. Drei zweiflüglige Türen führen hinaus auf die Terrasse. An die Küche schließt sich durchdacht der Hauswirtschaftsraum an. Zusätzlich auf dieser Ebene befinden sich ein Arbeits- oder Gästezimmer sowie ein Gäste-WC mit Dusche. Im Dachgeschoss gibt es drei Kinderzimmer, das Elternschlafzimmer und das Familienbad. Für genügend Platz und Kopffreiheit in allen Räumen sorgt die Dachneigung von 48°. Und sollte es trotzdem noch eng werden, so ist der Spitzboden noch ausbaufähig.

Hinweis zur Flächenberechnung:
Alle dargestellten Flächen und Flächenberechnungen zu Wohnflächen (kurz WF) und Grundflächen (kurz GF) wurden gemäß der Verordnung zur Berechnung der Wohnfläche (Wohnflächenverordnung – Wo FlV) vom 25. November 2003 (BgBl. I S. 2346) ermittelt.

Immer an Ausstattung inklusive

Energie-effizient

Nachhaltig

gebaut

Langlebig & robust

Wert-beständig

Gesundes Raumklima

Zukunftssicher

Grundriss Erdgeschoss

Grundriss Erdgeschoss

Grundriss Dachgeschoss

Grundriss Dachgeschoss

Grundriss Spitzboden

Grundriss Spitzboden

Weitere Impressionen