Haus Urban

Eigenschaften

Wohnfläche

  • EG63,5 m²
  • DG52,5 m²
  • Gesamt116,0 m²
  • Außenmaß7,87 m

Gesamtfläche

  • EG64,9 m²
  • DG59,1 m²
  • Gesamt124,0 m²
  • Außenmaß10,37 m
  • Kniestock100 cm
  • Dachneigung42°

Landhaus trifft auf elegantes Flair.

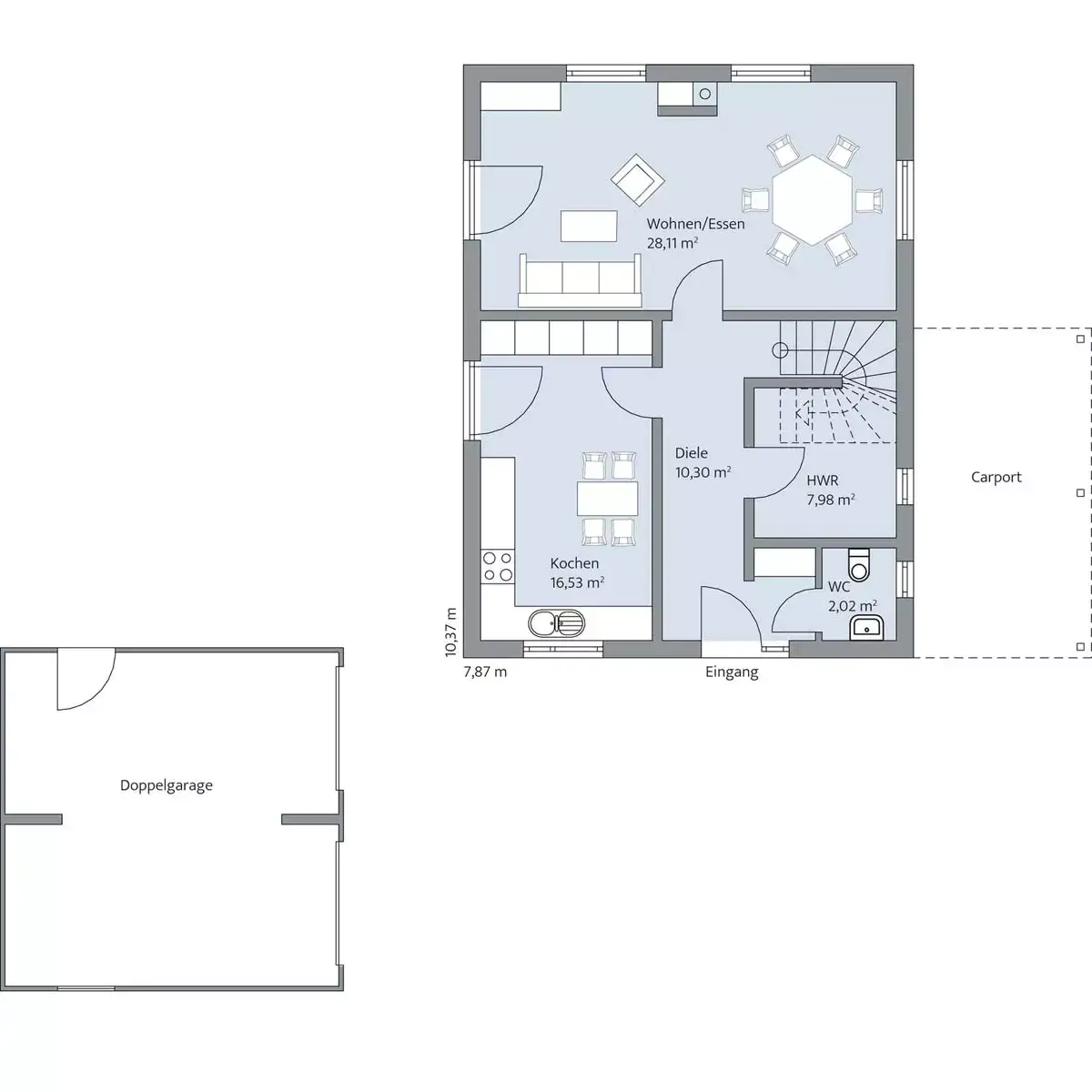
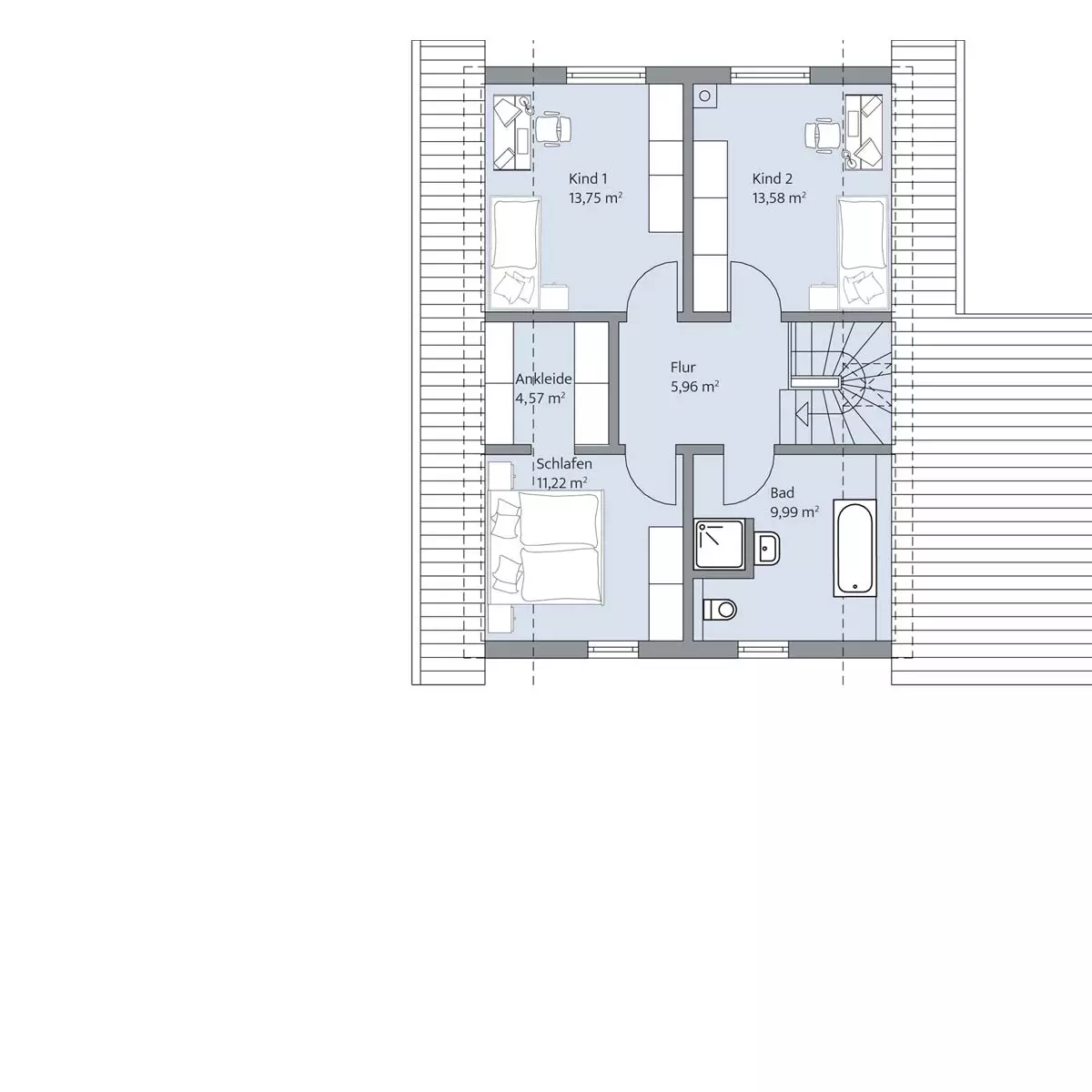
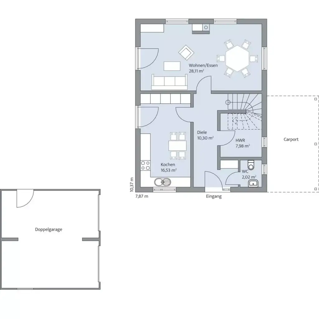
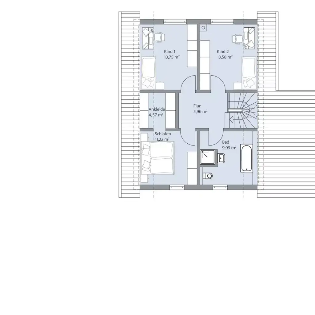
Das Haus Urban wirkt mit seiner roten Fassade und dem Satteldach auf den ersten Blick wie ein Landhaus. Doch anthrazitfarbene Tore, Türen und Fenster und französische Balkone verströmen ein elegantes Flair und machen das Objekt zu einem ganz besonderen Familiennest. Außergewöhnlich ist auch die separate, rechtwinkelig angeordnete Doppelgarage mit Satteldach, die den Stil des Wohnhauses souverän fortführt. Der Grundriss ist bewusst klassisch gehalten. Das Erdgeschoss verfügt über eine Trennung zwischen Küche und Wohnbereich mit Essplatz, die sich im Alltag oft als praktische Lösung erweist. Ein Kachelofen zwischen Wohnbereich und Essplatz sorgt für Behaglichkeit. Unterm Dach ist genügend Platz für eine vierköpfige Familie, wobei besonderes Augenmerk auf die Kinderzimmer gelegt wurde, die mit jeweils rund 12,00 m² Wohnfläche sehr geräumig sind.

Hinweis zur Flächenberechnung:
Alle dargestellten Flächen und Flächenberechnungen zu Wohnflächen (kurz WF) und Grundflächen (kurz GF) wurden gemäß der Verordnung zur Berechnung der Wohnfläche (Wohnflächenverordnung – Wo FlV) vom 25. November 2003 (BgBl. I S. 2346) ermittelt.

Immer an Ausstattung inklusive

Energie-effizient

Nachhaltig

gebaut

Langlebig & robust

Wert-beständig

Gesundes Raumklima

Zukunftssicher

Grundriss Erdgeschoss

Grundriss Erdgeschoss

Grundriss Dachgeschoss

Grundriss Dachgeschoss

Weitere Impressionen