Haus Verhoeven

Eigenschaften

Wohnfläche

  • EG74,0 m²
  • DG58,0 m²
  • Gesamt132,0 m²
  • Außenmaß10,38 m

Gesamtfläche

  • EG75,7 m²
  • DG70,6 m²
  • Gesamt146,3 m²
  • Außenmaß9,48 m
  • Kniestock100 cm
  • Dachneigung42°

Großzügiger Klassiker elegant umgesetzt.

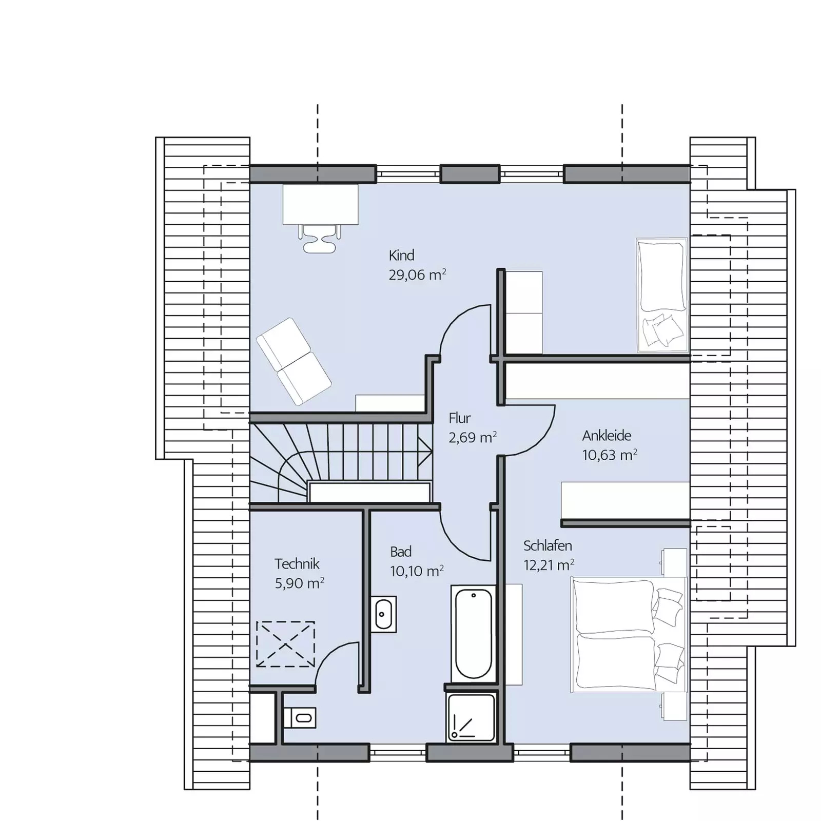
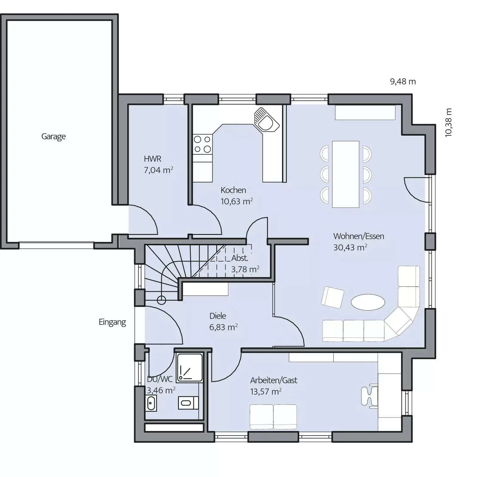
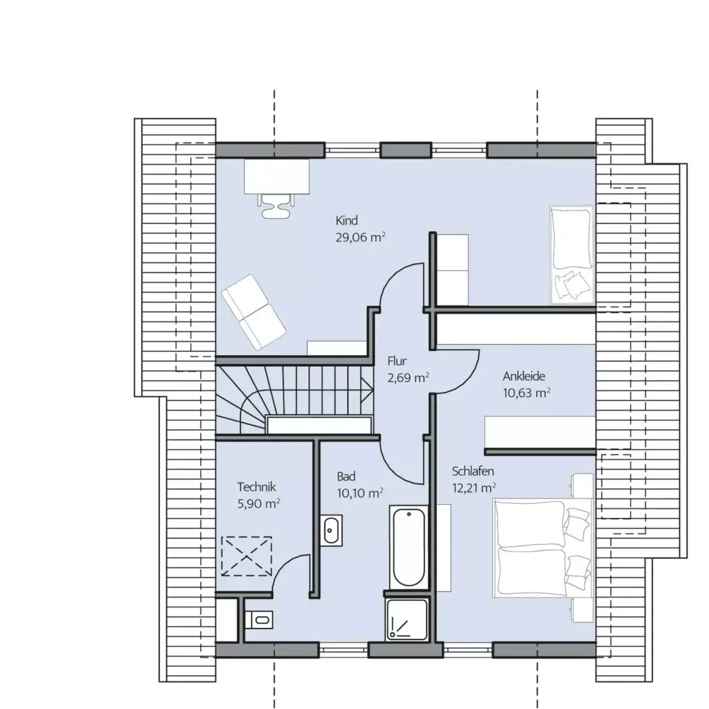
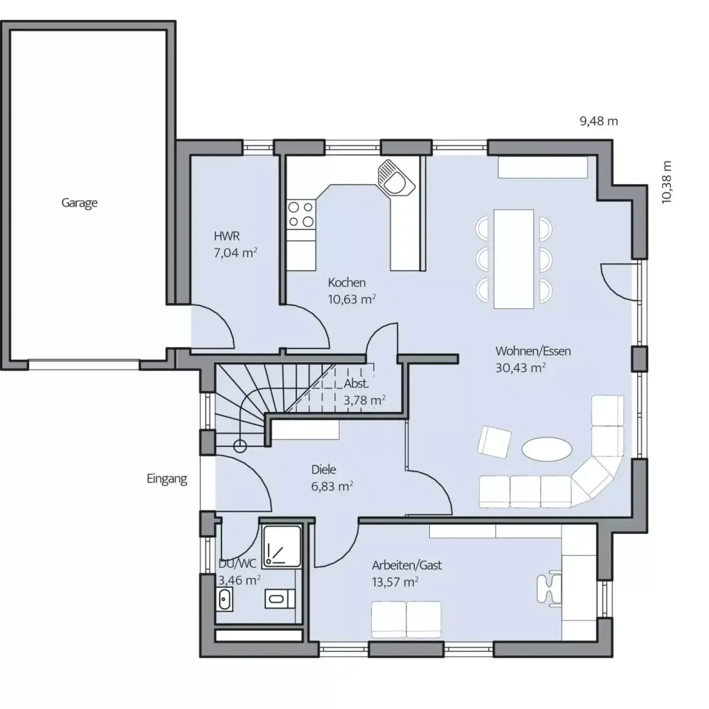
Im klassisch-traditionellen Stil gehalten, bietet das Haus der Familie Verhoeven viel Raum für eine dreiköpfige Familie und einen Reserveraum, der in Verbindung mit dem Gäste-Bad auch später ein altersgerechtes Wohnen auf einer Ebene ermöglicht. Der weiße Putz, kombiniert mit der geradlinige Fenstergeometrie und den anthrazitfarbenen Akzenten, sorgt für eine geschmackvolle Eleganz, während die bodentiefen Fenster viel gemütliches Licht ins Haus lassen. Auf der Eingangsseite befindet sich eine angebaute Garage, die Terrasse verläuft L-förmig um das Haus. Im Inneren präsentiert sich das kompakt gehaltene Heim der Verhoevens auf 132 m² als wahres Platzwunder – und das ohne Keller! Wohnraum, Küche und Essplatz gehen offen ineinander über und werden ergänzt durch einen Extraraum für Gäste, Büro oder das spätere Schlafzimmer sowie durch ein Gäste-Bad mit Dusche, einer Diele und einem trockenen Zugang zur Garage. Geschickt platzierte Wandsegmente sorgen für Stellfläche und Privatsphäre. Im Obergeschoss befinden sich das Kinderzimmer mit abgeteilter, gemütlicher Schlafnische, das Familienbad sowie das Elternschlafzimmer mit Ankleide. In einer Nische neben dem WC befindet sich der Technikraum, der gemeinsam mit der Abstellkammer unter der Treppe wertvollen Stauraum bietet.

Hinweis zur Flächenberechnung:
Alle dargestellten Flächen und Flächenberechnungen zu Wohnflächen (kurz WF) und Grundflächen (kurz GF) wurden gemäß der Verordnung zur Berechnung der Wohnfläche (Wohnflächenverordnung – Wo FlV) vom 25. November 2003 (BgBl. I S. 2346) ermittelt.

Immer an Ausstattung inklusive

Energie-effizient

Nachhaltig

gebaut

Langlebig & robust

Wert-beständig

Gesundes Raumklima

Zukunftssicher

Grundriss Erdgeschoss

Grundriss Erdgeschoss

Grundriss Dachgeschoss

Grundriss Dachgeschoss

Weitere Impressionen