Haus Vollrath

Eigenschaften

Wohnfläche

  • EG81,3 m²
  • DG71,7 m²
  • Gesamt153,0 m²
  • Außenmaß8,36 m

Gesamtfläche

  • EG82,8 m²
  • DG78,8 m²
  • Gesamt161,6 m²
  • Außenmaß11,86 m
  • Kniestock100 cm
  • Dachneigung50°

Puristisch und bestens durchdacht.

Reduzierte Formensprache, ein aufs Wesentliche reduziertes Satteldach und ein klares Farbkonzept – das ist Haus Vollrath, ein Vertreter moderner Bauhaus-Architektur. Seinen Bewohnern bietet das für eine urbane Lückenbebauung geeignete Haus ein interessantes Wohnkonzept, das den schlanken Baukörper mit ausgeklügelten Lösungen in ein behagliches Wohnambiente verwandelt. Die Belichtung des mit 8,36 x 11,86 m sehr schmalen Baukörpers erfolgt hauptsächlich über die Giebelseiten. Hier befinden sich im Obergeschoss raumhohe, durch asymmetrische Sprossen unterteilte Fenster, die im Erdgeschoss durch Lichtbänder und Fenstertüren ergänzt werden. Wohnbereich und Essplatz sind im hinteren Teil des Hauses quer zur Baukörperachse angeordnet. Die lang gezogene Küche ist über eine Schiebetür an den Essplatz angeschlossen und bietet viel Stauraum. Mit einer Gas-Brennwerttherme und einem Solarmodul ausgestattet, weist das Haus einen jährlichen Primärenergiebedarf auf, der mit 58,30 kWh/m²a bei 69 Prozent des maximal zulässigen Werts (83,48 kWh/m²a) liegt.

Hinweis zur Flächenberechnung:
Alle dargestellten Flächen und Flächenberechnungen zu Wohnflächen (kurz WF) und Grundflächen (kurz GF) wurden gemäß der Verordnung zur Berechnung der Wohnfläche (Wohnflächenverordnung – Wo FlV) vom 25. November 2003 (BgBl. I S. 2346) ermittelt.

Immer an Ausstattung inklusive

Energie-effizient

Nachhaltig

gebaut

Langlebig & robust

Wert-beständig

Gesundes Raumklima

Zukunftssicher

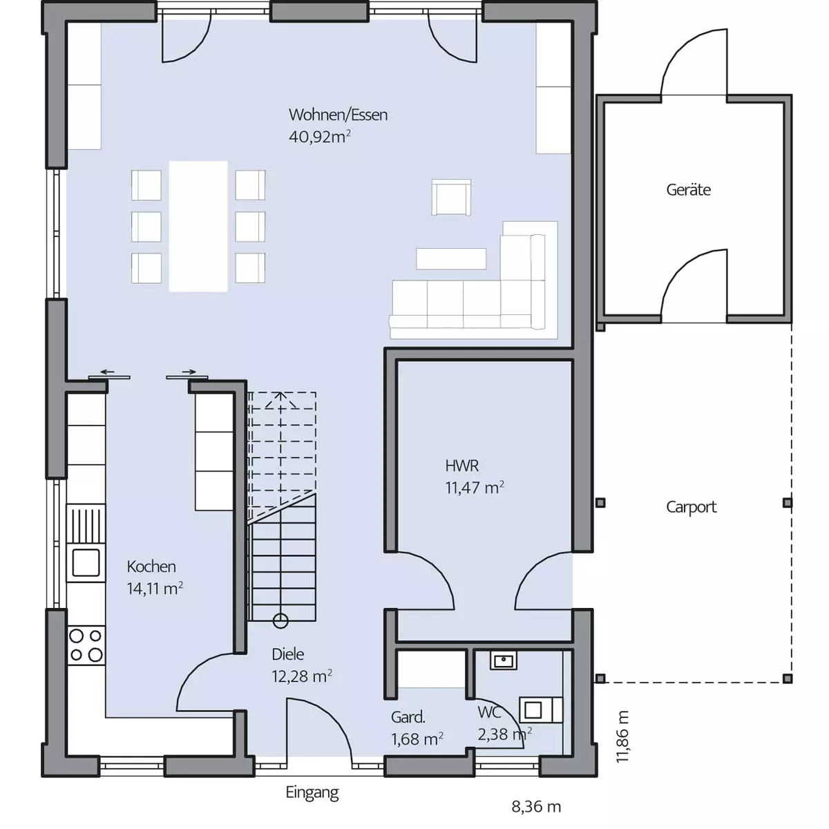
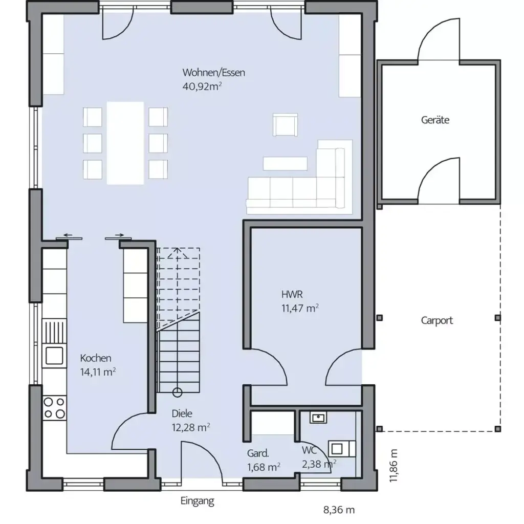
Grundriss Erdgeschoss

Grundriss Erdgeschoss

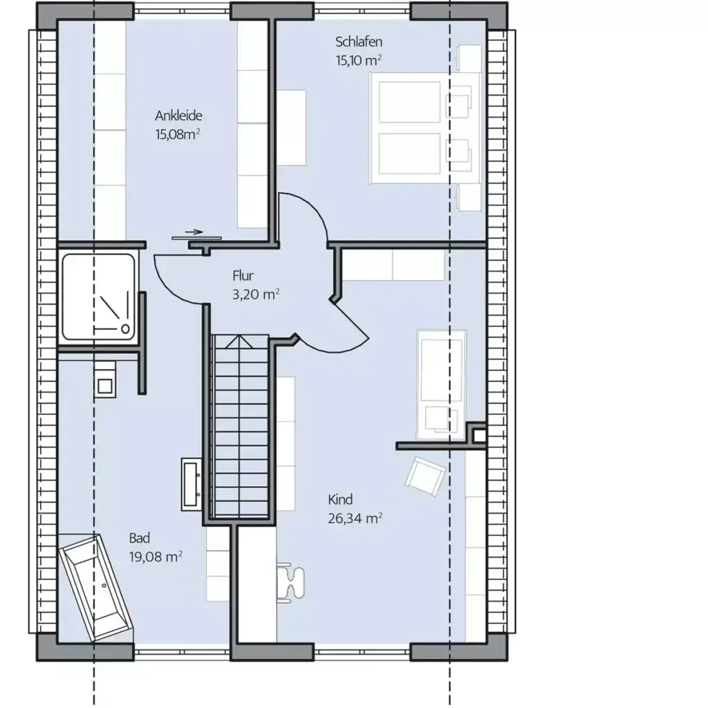
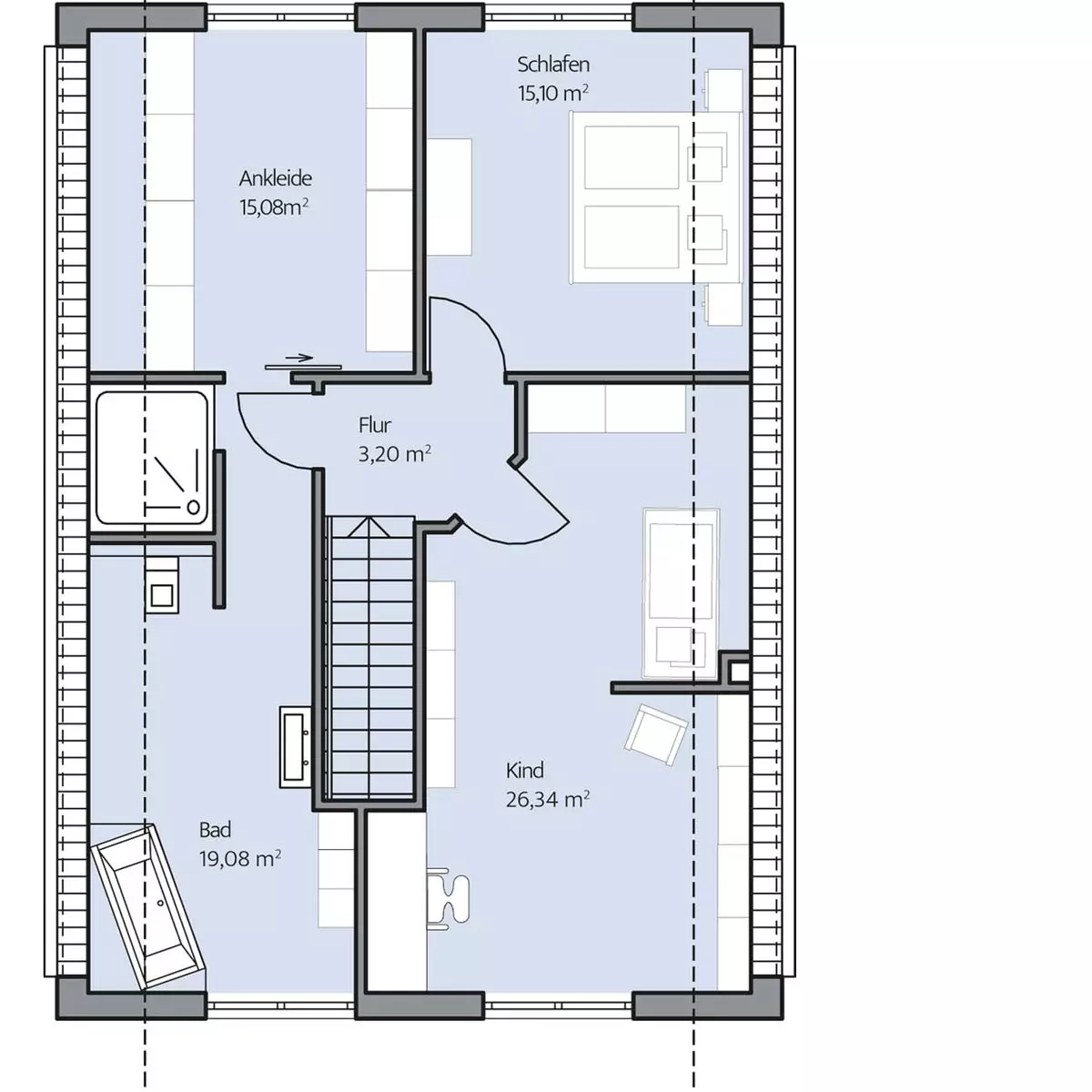
Grundriss Dachgeschoss

Grundriss Dachgeschoss

Weitere Impressionen