Haus Wagner

Eigenschaften

Wohnfläche

  • KG
  • EG85,1 m²
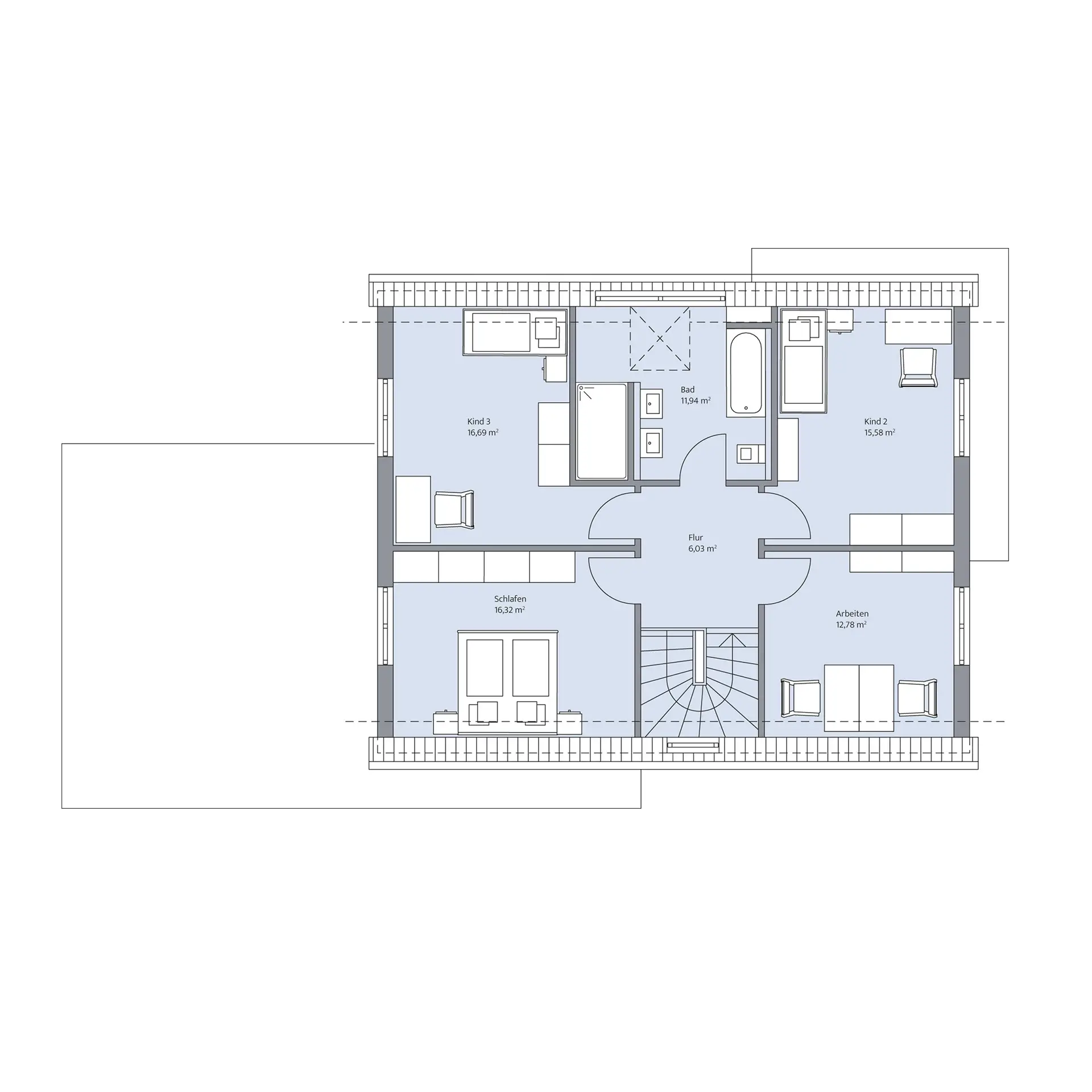
  • DG76,7 m²
  • Gesamt161,8 m²
  • Außenmaß12,12 m

Gesamtfläche

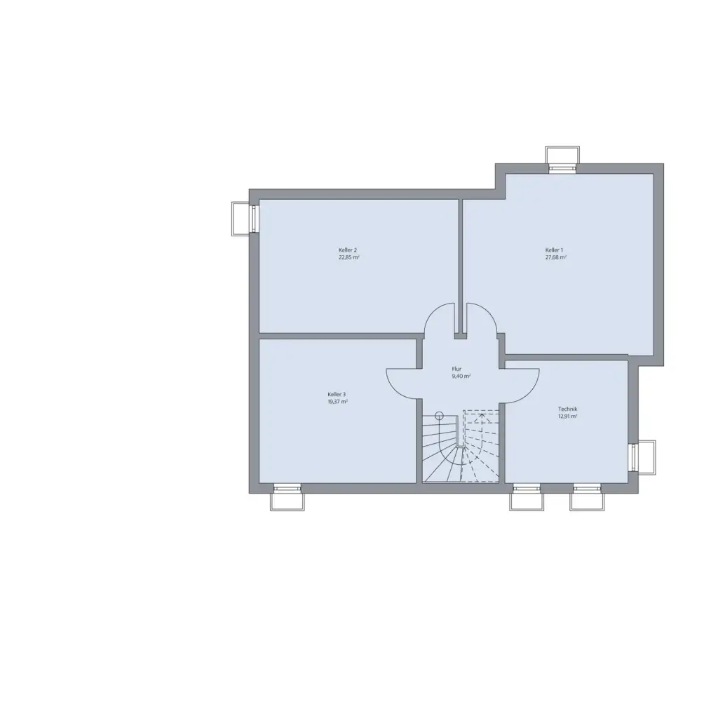
  • KG92,4 m²
  • EG85,1 m²
  • DG79,3 m²
  • Gesamt256,8 m²
  • Außenmaß9,62 m
  • Kniestock152 cm
  • Dachneigung35°

Bedarfsgerechtes Wohnen für alle Generationen.

Haus Wagner ist ein zweigeschossiges Wohnhaus mit Satteldach und voll unterkellert. Eigens für eine fünfköpfige Familie entworfen, in der ein Kind mit Mehrfachbehinderungen lebt, wurde das Erdgeschoss komplett bedarfsgerecht und barrierefrei gestaltet. Smarte architektonische Kunstgriffe lockern Fassade und Bauform auf, Weiß- und Grautöne erzeugen ein freundlich-dezentes Erscheinungsbild. Die angeschlossene Doppelgarage und das Kellergeschoss bieten reichlich Platz für Hobbys, Sport oder eine eigene Werkstatt. Das Erdgeschoss beherbergt neben einem knapp 49 m² großen Wohn-, Koch- und Essbereich auch ein Kinderzimmer sowie ein Duschbad. Helle Weißtöne, Fliesen und Küchenoberflächen in Anthrazit sowie Holzböden erzeugen ein angenehm aufgeräumtes Raumempfinden. Im Dachgeschoss finden zwei Kinder- und ein Schlafzimmer sowie ein Arbeitszimmer und ein vollwertiges Badezimmer Platz. Haus Wagner vereint auf sehr sympathische Weise den Pragmatismus der Barrierefreiheit mit der Individualität von Menschen mit Beeinträchtigungen.

Hinweis zur Flächenberechnung:
Alle dargestellten Flächen und Flächenberechnungen zu Wohnflächen (kurz WF) und Grundflächen (kurz GF) wurden gemäß der Verordnung zur Berechnung der Wohnfläche (Wohnflächenverordnung – Wo FlV) vom 25. November 2003 (BgBl. I S. 2346) ermittelt.

Immer an Ausstattung inklusive

Energie-effizient

Nachhaltig

gebaut

Langlebig & robust

Wert-beständig

Gesundes Raumklima

Zukunftssicher

Grundriss Erdgeschoss

Grundriss Erdgeschoss

Grundriss Dachgeschoss

Grundriss Dachgeschoss

Grundriss Kellergeschoss

Grundriss Kellergeschoss

Weitere Impressionen