Haus Westermann

Eigenschaften

Wohnfläche

  • EG75,6 m²
  • DG62,0 m²
  • Gesamt137,6 m²
  • Außenmaß9,99 m

Gesamtfläche

  • EG77,1 m²
  • DG68,2 m²
  • Gesamt145,3 m²
  • Außenmaß10,98 m
  • Kniestock140 cm
  • Dachneigung45°

Modernes Traumhaus mit besonderem Stil.

Das Haus Westermann zeigt, wie gut sich klassische Bauformen mit modernen Elementen mischen lassen und wie individuell man ein Architektenhaus auf den Geschmack der zukünftigen Bewohner abstimmen kann. Das Traumhaus von BAUMEISTER-HAUS besticht auf rund 136 m² Wohnfläche mit viel Stil und setzt innen wie außen auf ein Farbkonzept rund um Weiß, Grau und Holz. Einer der Hingucker ist sicherlich die wunderschöne puristische Kragarmtreppe mit ihren scheinbar schwebenden Stufen. Das Haus Westermann wird durch eine Luft-/Wasser-Wärmepumpe mit angeschlossener Fußbodenheizung versorgt.

Hinweis zur Flächenberechnung:
Alle dargestellten Flächen und Flächenberechnungen zu Wohnflächen (kurz WF) und Grundflächen (kurz GF) wurden gemäß der Verordnung zur Berechnung der Wohnfläche (Wohnflächenverordnung – Wo FlV) vom 25. November 2003 (BgBl. I S. 2346) ermittelt.

Immer an Ausstattung inklusive

Energie-effizient

Nachhaltig

gebaut

Langlebig & robust

Wert-beständig

Gesundes Raumklima

Zukunftssicher

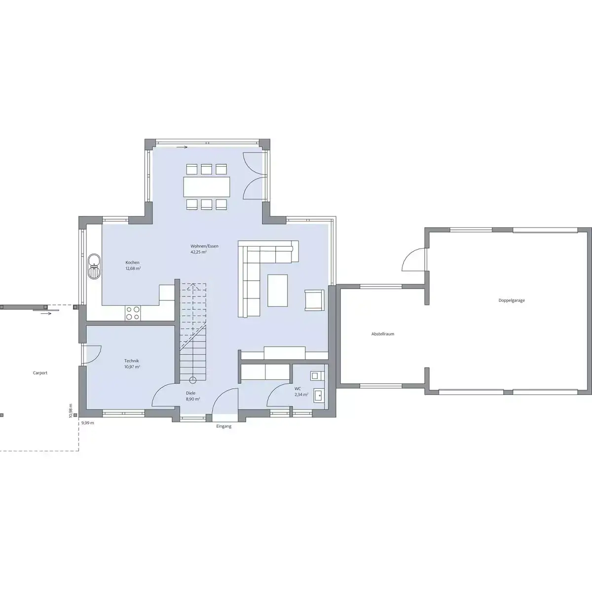
Grundriss Erdgeschoss

Grundriss Erdgeschoss

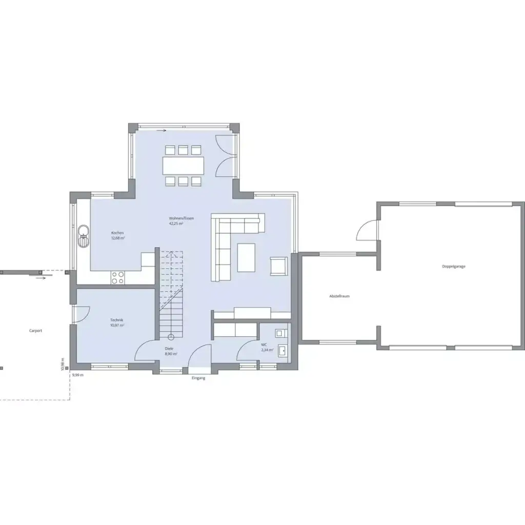
Grundriss Dachgeschoss

Grundriss Dachgeschoss

Weitere Impressionen