Haus Brede

Eigenschaften

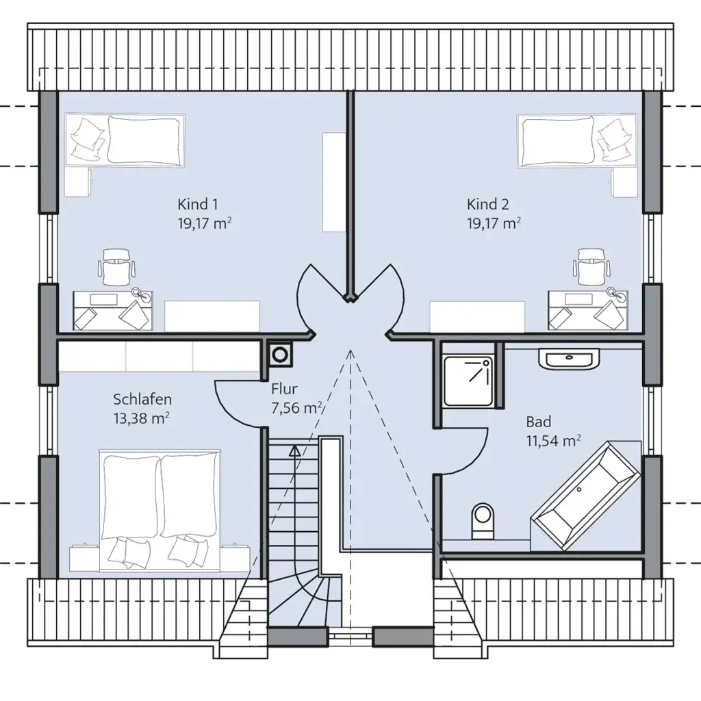
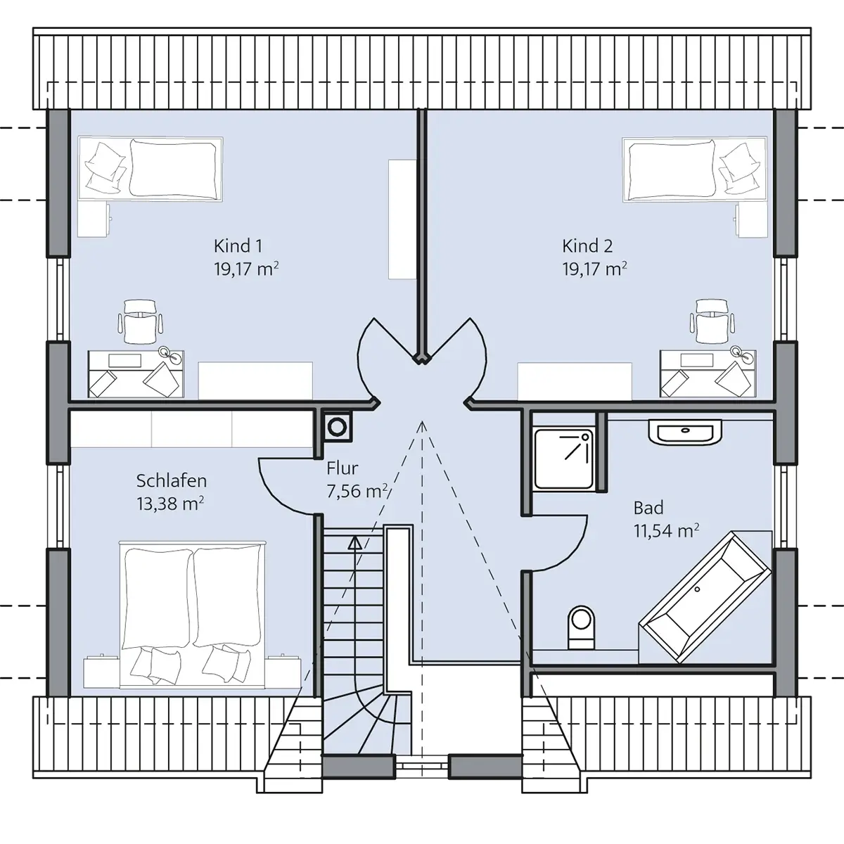
Wohnfläche

  • EG77,4 m²
  • DG59,9 m²
  • Gesamt137,3 m²

Gesamtfläche

  • EG79,4 m²
  • DG70,8 m²
  • Gesamt150,2 m²
  • Kniestock74 cm
  • Dachneigung45°

Eine nordische Schönheit mit lebendiger Seele.

Mit beeindruckender Lebendigkeit wird man von dem geschmackvollen Landhaus mit extravaganter Dachform empfangen. Am prominentesten präsentiert sich hierbei unumstritten der Friesengiebel mit seiner steilen Dachneigung. Stolz wie ein Turm ragt er empor und stellt sein Ziegelmauerwerk und sein großes Eingangstor zur Schau. Der Krüppelwalm an den Giebelseiten rundet das Gesamtbild in sich ab. Im Inneren harmonieren moderne Landhauselemente mit viel Licht und Glas. In diesem Entwurf treffen Tradition und Moderne aufeinander und unterhalten sich prächtig.

Hinweis zur Flächenberechnung:
Alle dargestellten Flächen und Flächenberechnungen zu Wohnflächen (kurz WF) und Grundflächen (kurz GF) wurden gemäß der Verordnung zur Berechnung der Wohnfläche (Wohnflächenverordnung – Wo FlV) vom 25. November 2003 (BgBl. I S. 2346) ermittelt.

Immer an Ausstattung inklusive

Energie-effizient

Nachhaltig

gebaut

Langlebig & robust

Wert-beständig

Gesundes Raumklima

Zukunftssicher

Grundriss Erdgeschoss

Grundriss Erdgeschoss

Grundriss Dachgeschoss

Grundriss Dachgeschoss

Weitere Impressionen